Your email has been sent.
South Tower 175 Bloor Street East 1,473 - 100,315 SF of 4-Star Office Space Available in Toronto, ON M4W 3T5


Highlights
- Heavy daytime foot and vehicular traffic
- Enclosed bike storage and underground parking with electric vehicle charging
- Fantastic proximity to Bloor-Yonge Station, fine dining, retail, and cultural landmarks like the Royal Ontario Museum
- Exposure to Church Street
- Certified BOMA Best Silver, the building prioritizes sustainability and tenant comfort
- Courtyard for outdoor gatherings
All Available Spaces(11)
Display Rental Rate as
- Space
- Size
- Term
- Rental Rate
- Space Use
- Build-Out
- Available
Commercial office space for lease located in Toronto, Ontario.
- Lease rate does not include utilities, property expenses or building services
- Mostly Open Floor Plan Layout
- Central Air Conditioning
- Partially Built-Out as Standard Office
- Can be combined with additional space(s) for up to 9,732 SF of adjacent space
- Natural light exposure
Commercial office space for lease located in Toronto, Ontario.
- Lease rate does not include utilities, property expenses or building services
- Mostly Open Floor Plan Layout
- Central Air Conditioning
- Partially Built-Out as Standard Office
- Can be combined with additional space(s) for up to 9,732 SF of adjacent space
- Natural light exposure
Ground floor shower facilities with lockers. Enclosed bike storage. 24/7 onsite security. Courtyard for outdoor gathering.
- Lease rate does not include utilities, property expenses or building services
- Mostly Open Floor Plan Layout
- Central Air Conditioning
- Bicycle Storage
- Retail amenities nearby
- Partially Built-Out as Standard Office
- Conference Rooms
- Kitchen
- Access to public transit
Ground floor shower facilities with lockers. Enclosed bike storage. 24/7 onsite security. Courtyard for outdoor gathering.
- Lease rate does not include utilities, property expenses or building services
- Mostly Open Floor Plan Layout
- 1 Conference Room
- Can be combined with additional space(s) for up to 9,244 SF of adjacent space
- Kitchen
- Access to public transit
- Partially Built-Out as Standard Office
- 2 Private Offices
- 10 Workstations
- Central Air Conditioning
- Bicycle Storage
- Retail amenities nearby
Ground floor shower facilities with lockers. Enclosed bike storage. 24/7 onsite security. Courtyard for outdoor gathering.
- Lease rate does not include utilities, property expenses or building services
- Mostly Open Floor Plan Layout
- 4 Conference Rooms
- Can be combined with additional space(s) for up to 9,244 SF of adjacent space
- Kitchen
- Access to public transit
- Partially Built-Out as Standard Office
- 5 Private Offices
- 24 Workstations
- Central Air Conditioning
- Bicycle Storage
- Retail amenities nearby
Ground floor shower facilities with lockers. Enclosed bike storage. 24/7 onsite security. Courtyard for outdoor gathering.
- Lease rate does not include utilities, property expenses or building services
- Mostly Open Floor Plan Layout
- Central Air Conditioning
- Bicycle Storage
- Retail amenities nearby
- Partially Built-Out as Standard Office
- Conference Rooms
- Kitchen
- Access to public transit
Ground floor shower facilities with lockers. Enclosed bike storage. 24/7 onsite security. Courtyard for outdoor gathering.
- Lease rate does not include utilities, property expenses or building services
- Mostly Open Floor Plan Layout
- Central Air Conditioning
- Bicycle Storage
- Retail amenities nearby
- Partially Built-Out as Standard Office
- Conference Rooms
- Kitchen
- Access to public transit
Ground floor shower facilities with lockers. Enclosed bike storage. 24/7 onsite security. Courtyard for outdoor gathering.
- Lease rate does not include utilities, property expenses or building services
- Mostly Open Floor Plan Layout
- Central Air Conditioning
- Bicycle Storage
- Access to public transit
- Partially Built-Out as Standard Office
- Conference Rooms
- Kitchen
- Onsite Parking
- Retail amenities nearby
Ground floor shower facilities with lockers. Enclosed bike storage. 24/7 onsite security. Courtyard for outdoor gathering.
- Lease rate does not include utilities, property expenses or building services
- Mostly Open Floor Plan Layout
- Central Air Conditioning
- Kitchen
- Onsite Parking
- Retail amenities nearby
- Partially Built-Out as Standard Office
- Conference Rooms
- Reception Area
- Bicycle Storage
- Access to public transit
Ground floor shower facilities with lockers. Enclosed bike storage. 24/7 onsite security. Courtyard for outdoor gathering.
- Lease rate does not include utilities, property expenses or building services
- Mostly Open Floor Plan Layout
- Can be combined with additional space(s) for up to 34,827 SF of adjacent space
- Reception Area
- Bicycle Storage
- Access to public transit
- Partially Built-Out as Standard Office
- Conference Rooms
- Central Air Conditioning
- Kitchen
- Onsite Parking
- Retail amenities nearby
Ground floor shower facilities with lockers. Enclosed bike storage. 24/7 onsite security. Courtyard for outdoor gathering.
- Lease rate does not include utilities, property expenses or building services
- Mostly Open Floor Plan Layout
- Can be combined with additional space(s) for up to 34,827 SF of adjacent space
- Reception Area
- Bicycle Storage
- Access to public transit
- Partially Built-Out as Standard Office
- Conference Rooms
- Central Air Conditioning
- Kitchen
- Onsite Parking
- Retail amenities nearby
| Space | Size | Term | Rental Rate | Space Use | Build-Out | Available |
| 3rd Floor, Ste 300 | 7,886 SF | 1-10 Years | $25.40 USD/SF/YR $2.12 USD/SF/MO $200,277 USD/YR $16,690 USD/MO | Office | Partial Build-Out | Now |
| 3rd Floor, Ste 304 | 1,846 SF | 1-10 Years | $25.40 USD/SF/YR $2.12 USD/SF/MO $46,882 USD/YR $3,907 USD/MO | Office | Partial Build-Out | Now |
| 4th Floor, Ste 400 | 17,776 SF | 3-10 Years | $25.40 USD/SF/YR $2.12 USD/SF/MO $451,449 USD/YR $37,621 USD/MO | Office | Partial Build-Out | Now |
| 7th Floor, Ste 701 | 2,727 SF | 3-10 Years | $25.40 USD/SF/YR $2.12 USD/SF/MO $69,256 USD/YR $5,771 USD/MO | Office | Partial Build-Out | Now |
| 7th Floor, Ste 702 | 6,517 SF | 3-10 Years | $25.40 USD/SF/YR $2.12 USD/SF/MO $165,509 USD/YR $13,792 USD/MO | Office | Partial Build-Out | Now |
| 10th Floor, Ste 1007 | 10,182 SF | 3-10 Years | $25.40 USD/SF/YR $2.12 USD/SF/MO $258,588 USD/YR $21,549 USD/MO | Office | Partial Build-Out | Now |
| 11th Floor, Ste 1105 | 1,473 SF | 3-10 Years | $25.40 USD/SF/YR $2.12 USD/SF/MO $37,409 USD/YR $3,117 USD/MO | Office | Partial Build-Out | 30 Days |
| 12th Floor, Ste 1202 | 6,214 SF | 3-10 Years | $25.40 USD/SF/YR $2.12 USD/SF/MO $157,814 USD/YR $13,151 USD/MO | Office | Partial Build-Out | Now |
| 14th Floor, Ste 1401 | 10,867 SF | 3-10 Years | $25.40 USD/SF/YR $2.12 USD/SF/MO $275,984 USD/YR $22,999 USD/MO | Office | Partial Build-Out | 30 Days |
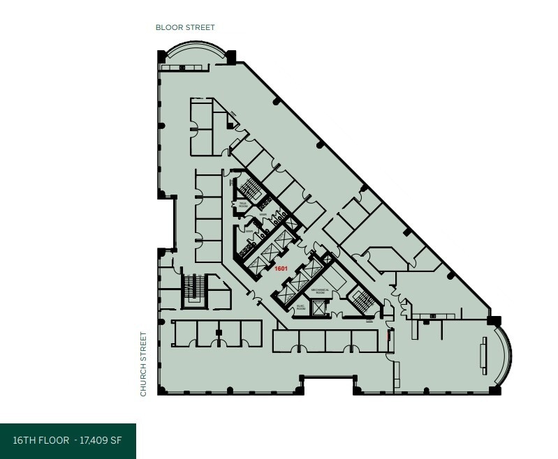
| 16th Floor, Ste 1600 | 17,409 SF | 3-10 Years | $25.40 USD/SF/YR $2.12 USD/SF/MO $442,129 USD/YR $36,844 USD/MO | Office | Partial Build-Out | Now |
| 17th Floor, Ste 1700 | 17,418 SF | 3-10 Years | $25.40 USD/SF/YR $2.12 USD/SF/MO $442,357 USD/YR $36,863 USD/MO | Office | Partial Build-Out | Now |
3rd Floor, Ste 300
| Size |
| 7,886 SF |
| Term |
| 1-10 Years |
| Rental Rate |
| $25.40 USD/SF/YR $2.12 USD/SF/MO $200,277 USD/YR $16,690 USD/MO |
| Space Use |
| Office |
| Build-Out |
| Partial Build-Out |
| Available |
| Now |
3rd Floor, Ste 304
| Size |
| 1,846 SF |
| Term |
| 1-10 Years |
| Rental Rate |
| $25.40 USD/SF/YR $2.12 USD/SF/MO $46,882 USD/YR $3,907 USD/MO |
| Space Use |
| Office |
| Build-Out |
| Partial Build-Out |
| Available |
| Now |
4th Floor, Ste 400
| Size |
| 17,776 SF |
| Term |
| 3-10 Years |
| Rental Rate |
| $25.40 USD/SF/YR $2.12 USD/SF/MO $451,449 USD/YR $37,621 USD/MO |
| Space Use |
| Office |
| Build-Out |
| Partial Build-Out |
| Available |
| Now |
7th Floor, Ste 701
| Size |
| 2,727 SF |
| Term |
| 3-10 Years |
| Rental Rate |
| $25.40 USD/SF/YR $2.12 USD/SF/MO $69,256 USD/YR $5,771 USD/MO |
| Space Use |
| Office |
| Build-Out |
| Partial Build-Out |
| Available |
| Now |
7th Floor, Ste 702
| Size |
| 6,517 SF |
| Term |
| 3-10 Years |
| Rental Rate |
| $25.40 USD/SF/YR $2.12 USD/SF/MO $165,509 USD/YR $13,792 USD/MO |
| Space Use |
| Office |
| Build-Out |
| Partial Build-Out |
| Available |
| Now |
10th Floor, Ste 1007
| Size |
| 10,182 SF |
| Term |
| 3-10 Years |
| Rental Rate |
| $25.40 USD/SF/YR $2.12 USD/SF/MO $258,588 USD/YR $21,549 USD/MO |
| Space Use |
| Office |
| Build-Out |
| Partial Build-Out |
| Available |
| Now |
11th Floor, Ste 1105
| Size |
| 1,473 SF |
| Term |
| 3-10 Years |
| Rental Rate |
| $25.40 USD/SF/YR $2.12 USD/SF/MO $37,409 USD/YR $3,117 USD/MO |
| Space Use |
| Office |
| Build-Out |
| Partial Build-Out |
| Available |
| 30 Days |
12th Floor, Ste 1202
| Size |
| 6,214 SF |
| Term |
| 3-10 Years |
| Rental Rate |
| $25.40 USD/SF/YR $2.12 USD/SF/MO $157,814 USD/YR $13,151 USD/MO |
| Space Use |
| Office |
| Build-Out |
| Partial Build-Out |
| Available |
| Now |
14th Floor, Ste 1401
| Size |
| 10,867 SF |
| Term |
| 3-10 Years |
| Rental Rate |
| $25.40 USD/SF/YR $2.12 USD/SF/MO $275,984 USD/YR $22,999 USD/MO |
| Space Use |
| Office |
| Build-Out |
| Partial Build-Out |
| Available |
| 30 Days |
16th Floor, Ste 1600
| Size |
| 17,409 SF |
| Term |
| 3-10 Years |
| Rental Rate |
| $25.40 USD/SF/YR $2.12 USD/SF/MO $442,129 USD/YR $36,844 USD/MO |
| Space Use |
| Office |
| Build-Out |
| Partial Build-Out |
| Available |
| Now |
17th Floor, Ste 1700
| Size |
| 17,418 SF |
| Term |
| 3-10 Years |
| Rental Rate |
| $25.40 USD/SF/YR $2.12 USD/SF/MO $442,357 USD/YR $36,863 USD/MO |
| Space Use |
| Office |
| Build-Out |
| Partial Build-Out |
| Available |
| Now |
3rd Floor, Ste 300
| Size | 7,886 SF |
| Term | 1-10 Years |
| Rental Rate | $25.40 USD/SF/YR |
| Space Use | Office |
| Build-Out | Partial Build-Out |
| Available | Now |
Commercial office space for lease located in Toronto, Ontario.
- Lease rate does not include utilities, property expenses or building services
- Partially Built-Out as Standard Office
- Mostly Open Floor Plan Layout
- Can be combined with additional space(s) for up to 9,732 SF of adjacent space
- Central Air Conditioning
- Natural light exposure
3rd Floor, Ste 304
| Size | 1,846 SF |
| Term | 1-10 Years |
| Rental Rate | $25.40 USD/SF/YR |
| Space Use | Office |
| Build-Out | Partial Build-Out |
| Available | Now |
Commercial office space for lease located in Toronto, Ontario.
- Lease rate does not include utilities, property expenses or building services
- Partially Built-Out as Standard Office
- Mostly Open Floor Plan Layout
- Can be combined with additional space(s) for up to 9,732 SF of adjacent space
- Central Air Conditioning
- Natural light exposure
4th Floor, Ste 400
| Size | 17,776 SF |
| Term | 3-10 Years |
| Rental Rate | $25.40 USD/SF/YR |
| Space Use | Office |
| Build-Out | Partial Build-Out |
| Available | Now |
Ground floor shower facilities with lockers. Enclosed bike storage. 24/7 onsite security. Courtyard for outdoor gathering.
- Lease rate does not include utilities, property expenses or building services
- Partially Built-Out as Standard Office
- Mostly Open Floor Plan Layout
- Conference Rooms
- Central Air Conditioning
- Kitchen
- Bicycle Storage
- Access to public transit
- Retail amenities nearby
7th Floor, Ste 701
| Size | 2,727 SF |
| Term | 3-10 Years |
| Rental Rate | $25.40 USD/SF/YR |
| Space Use | Office |
| Build-Out | Partial Build-Out |
| Available | Now |
Ground floor shower facilities with lockers. Enclosed bike storage. 24/7 onsite security. Courtyard for outdoor gathering.
- Lease rate does not include utilities, property expenses or building services
- Partially Built-Out as Standard Office
- Mostly Open Floor Plan Layout
- 2 Private Offices
- 1 Conference Room
- 10 Workstations
- Can be combined with additional space(s) for up to 9,244 SF of adjacent space
- Central Air Conditioning
- Kitchen
- Bicycle Storage
- Access to public transit
- Retail amenities nearby
7th Floor, Ste 702
| Size | 6,517 SF |
| Term | 3-10 Years |
| Rental Rate | $25.40 USD/SF/YR |
| Space Use | Office |
| Build-Out | Partial Build-Out |
| Available | Now |
Ground floor shower facilities with lockers. Enclosed bike storage. 24/7 onsite security. Courtyard for outdoor gathering.
- Lease rate does not include utilities, property expenses or building services
- Partially Built-Out as Standard Office
- Mostly Open Floor Plan Layout
- 5 Private Offices
- 4 Conference Rooms
- 24 Workstations
- Can be combined with additional space(s) for up to 9,244 SF of adjacent space
- Central Air Conditioning
- Kitchen
- Bicycle Storage
- Access to public transit
- Retail amenities nearby
10th Floor, Ste 1007
| Size | 10,182 SF |
| Term | 3-10 Years |
| Rental Rate | $25.40 USD/SF/YR |
| Space Use | Office |
| Build-Out | Partial Build-Out |
| Available | Now |
Ground floor shower facilities with lockers. Enclosed bike storage. 24/7 onsite security. Courtyard for outdoor gathering.
- Lease rate does not include utilities, property expenses or building services
- Partially Built-Out as Standard Office
- Mostly Open Floor Plan Layout
- Conference Rooms
- Central Air Conditioning
- Kitchen
- Bicycle Storage
- Access to public transit
- Retail amenities nearby
11th Floor, Ste 1105
| Size | 1,473 SF |
| Term | 3-10 Years |
| Rental Rate | $25.40 USD/SF/YR |
| Space Use | Office |
| Build-Out | Partial Build-Out |
| Available | 30 Days |
Ground floor shower facilities with lockers. Enclosed bike storage. 24/7 onsite security. Courtyard for outdoor gathering.
- Lease rate does not include utilities, property expenses or building services
- Partially Built-Out as Standard Office
- Mostly Open Floor Plan Layout
- Conference Rooms
- Central Air Conditioning
- Kitchen
- Bicycle Storage
- Access to public transit
- Retail amenities nearby
12th Floor, Ste 1202
| Size | 6,214 SF |
| Term | 3-10 Years |
| Rental Rate | $25.40 USD/SF/YR |
| Space Use | Office |
| Build-Out | Partial Build-Out |
| Available | Now |
Ground floor shower facilities with lockers. Enclosed bike storage. 24/7 onsite security. Courtyard for outdoor gathering.
- Lease rate does not include utilities, property expenses or building services
- Partially Built-Out as Standard Office
- Mostly Open Floor Plan Layout
- Conference Rooms
- Central Air Conditioning
- Kitchen
- Bicycle Storage
- Onsite Parking
- Access to public transit
- Retail amenities nearby
14th Floor, Ste 1401
| Size | 10,867 SF |
| Term | 3-10 Years |
| Rental Rate | $25.40 USD/SF/YR |
| Space Use | Office |
| Build-Out | Partial Build-Out |
| Available | 30 Days |
Ground floor shower facilities with lockers. Enclosed bike storage. 24/7 onsite security. Courtyard for outdoor gathering.
- Lease rate does not include utilities, property expenses or building services
- Partially Built-Out as Standard Office
- Mostly Open Floor Plan Layout
- Conference Rooms
- Central Air Conditioning
- Reception Area
- Kitchen
- Bicycle Storage
- Onsite Parking
- Access to public transit
- Retail amenities nearby
16th Floor, Ste 1600
| Size | 17,409 SF |
| Term | 3-10 Years |
| Rental Rate | $25.40 USD/SF/YR |
| Space Use | Office |
| Build-Out | Partial Build-Out |
| Available | Now |
Ground floor shower facilities with lockers. Enclosed bike storage. 24/7 onsite security. Courtyard for outdoor gathering.
- Lease rate does not include utilities, property expenses or building services
- Partially Built-Out as Standard Office
- Mostly Open Floor Plan Layout
- Conference Rooms
- Can be combined with additional space(s) for up to 34,827 SF of adjacent space
- Central Air Conditioning
- Reception Area
- Kitchen
- Bicycle Storage
- Onsite Parking
- Access to public transit
- Retail amenities nearby
17th Floor, Ste 1700
| Size | 17,418 SF |
| Term | 3-10 Years |
| Rental Rate | $25.40 USD/SF/YR |
| Space Use | Office |
| Build-Out | Partial Build-Out |
| Available | Now |
Ground floor shower facilities with lockers. Enclosed bike storage. 24/7 onsite security. Courtyard for outdoor gathering.
- Lease rate does not include utilities, property expenses or building services
- Partially Built-Out as Standard Office
- Mostly Open Floor Plan Layout
- Conference Rooms
- Can be combined with additional space(s) for up to 34,827 SF of adjacent space
- Central Air Conditioning
- Reception Area
- Kitchen
- Bicycle Storage
- Onsite Parking
- Access to public transit
- Retail amenities nearby
Property Overview
Situated on Bloor Street East at Church Street, 175 Bloor is in the heart of an amenity-rich urban neighbourhood. Its proximity to transit, shops, restaurants and everyday conveniences, makes it a well-connected workspace solution catering to all types of knowledgebased organizations. With two high-rise office towers linked by an expansive lobby, 175 Bloor offers a distinctive environment for connectivity and creativity.
- Banking
- Bus Line
- Controlled Access
- Conferencing Facility
- Restaurant
- Security System
- LEED Certified - Gold
- Air Conditioning
Property Facts
Sustainability
Sustainability
LEED Certification Led by the Canada Green Building Council (CAGBC), the Leadership in Energy and Environmental Design (LEED) is a green building certification program focused on the design, construction, operation, and maintenance of green buildings, homes, and neighborhoods, which aims to help building owners and operators be environmentally responsible and use resources efficiently. LEED certification is a globally recognized symbol of sustainability achievement and leadership. To achieve LEED certification, a project earns points by adhering to prerequisites and credits that address carbon, energy, water, waste, transportation, materials, health and indoor environmental quality. Projects go through a verification and review process and are awarded points that correspond to a level of LEED certification: Platinum (80+ points) Gold (60-79 points) Silver (50-59 points) Certified (40-49 points)
Presented by
South Tower | 175 Bloor Street East
Hmm, there seems to have been an error sending your message. Please try again.
Thanks! Your message was sent.












