Your email has been sent.
265 Exchange Drive Corporate Center 265 Exchange Dr 1,156 - 14,983 SF of Office Space Available in Crystal Lake, IL 60014



Highlights
- Modified Gross Lease available at $24 PSF, all CAM and Taxes as well as Heat, AC, Water included in base rent
- Excellent curb appeal and extremely well maintained by professional building management
- Walking distance to Pingree Train Station
- Heat and A/C and Water included in Rent
- Generous Parking @ 8.5 spaces per 1,000 SF RSF
All Available Spaces(3)
Display Rental Rate as
- Space
- Size
- Term
- Rental Rate
- Space Use
- Condition
- Available
Suite LL_100 was completely renovated in 2023. Very affordable space offering a tremendous value in one of Crystal Lake's best located and most beautiful office buildings. Walking distance to the Crystal Lake Pingree train station. This space is significantly less expensive than other space in the building due to it being below grade but don't let that stop you from seeing it. It is a fantastic mostly open space with an abundance of natural light due full sized windows and extra large window wells. A Gross lease @ $14.00 per SF (or $7 PSF NNN) is available with no chargebacks at the end of the year for increasing maintenance expenses and real estate taxes. See the pictures and schedule a showing so you can see it for yourself! You won't find a better value for functional office space in the greater Crystal Lake area.
- Lease rate does not include utilities, property expenses or building services
- Mostly Open Floor Plan Layout
- 1 Conference Room
- Space is in Excellent Condition
- Fully Carpeted
- After Hours HVAC Available
- Fully Built-Out as Professional Services Office
- 3 Private Offices
- Finished Ceilings: 9’
- Central Air and Heating
- Natural Light
- Open-Plan
Smallest available space in one of Crystal Lake's premier office buildings. Suite 105 is fully furnished with 6 full sized workstations, one private office and a kitchenette. A gross lease is available at $2,200 per month plus utilities. Usable square footage is 965 SF and Rentable square footage is 1,165. No additional rent for operating expenses or taxes for the duration of the lease term.
- Listed rate may not include certain utilities, building services and property expenses
- 6 Workstations
- 1 Private Office
- Space is in Excellent Condition
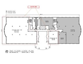
Beautifully finished and fully furnished office space with Reception Vestibule, 53 workstations, 2 private offices, Large Conference Room, and fully equipped kitchen with tables and seating included. Recently remodeled new LVT flooring. This prime second floor space with an abundance of natural light on 3 sides of the overall space. This is currently one of two spaces available at 265 Exchange Drive Corporate Center. See pictures and floor plan layout for Suite 206. This suite includes a separate 1,255 square foot fully built-out cafeteria and employee lounge area. A Modified Gross lease is available. Suite 206 is 8,979 RSF (7,493 USF) which includes common areas, foyer, common area bathrooms and amenities). Heat, Air Conditioning, and Water paid by Landlord, tenant only responsible for in-suite electric usage.
- Lease rate does not include utilities, property expenses or building services
- Mostly Open Floor Plan Layout
- 1 Conference Room
- Finished Ceilings: 8’6”
- Natural Light
- Fully built-out Kitchen and employee lounge area
- 1st Class interior office buildout
- Fully Built-Out as Standard Office
- 2 Private Offices
- 35 Workstations
- Space is in Excellent Condition
- Abundance of Natural Light on 3 sides of the space
- Large common area bathrooms on each floor
| Space | Size | Term | Rental Rate | Space Use | Condition | Available |
| Lower Level, Ste 100 | 4,848 SF | 5-7 Years | $7.00 /SF/YR $0.58 /SF/MO $33,936 /YR $2,828 /MO | Office | Full Build-Out | Now |
| 1st Floor, Ste 105 | 1,156 SF | 5 Years | $16.00 /SF/YR $1.33 /SF/MO $18,496 /YR $1,541 /MO | Office | - | Now |
| 2nd Floor, Ste 206 | 8,979 SF | 5-7 Years | $15.00 /SF/YR $1.25 /SF/MO $134,685 /YR $11,224 /MO | Office | Full Build-Out | Now |
Lower Level, Ste 100
| Size |
| 4,848 SF |
| Term |
| 5-7 Years |
| Rental Rate |
| $7.00 /SF/YR $0.58 /SF/MO $33,936 /YR $2,828 /MO |
| Space Use |
| Office |
| Condition |
| Full Build-Out |
| Available |
| Now |
1st Floor, Ste 105
| Size |
| 1,156 SF |
| Term |
| 5 Years |
| Rental Rate |
| $16.00 /SF/YR $1.33 /SF/MO $18,496 /YR $1,541 /MO |
| Space Use |
| Office |
| Condition |
| - |
| Available |
| Now |
2nd Floor, Ste 206
| Size |
| 8,979 SF |
| Term |
| 5-7 Years |
| Rental Rate |
| $15.00 /SF/YR $1.25 /SF/MO $134,685 /YR $11,224 /MO |
| Space Use |
| Office |
| Condition |
| Full Build-Out |
| Available |
| Now |
Lower Level, Ste 100
| Size | 4,848 SF |
| Term | 5-7 Years |
| Rental Rate | $7.00 /SF/YR |
| Space Use | Office |
| Condition | Full Build-Out |
| Available | Now |
Suite LL_100 was completely renovated in 2023. Very affordable space offering a tremendous value in one of Crystal Lake's best located and most beautiful office buildings. Walking distance to the Crystal Lake Pingree train station. This space is significantly less expensive than other space in the building due to it being below grade but don't let that stop you from seeing it. It is a fantastic mostly open space with an abundance of natural light due full sized windows and extra large window wells. A Gross lease @ $14.00 per SF (or $7 PSF NNN) is available with no chargebacks at the end of the year for increasing maintenance expenses and real estate taxes. See the pictures and schedule a showing so you can see it for yourself! You won't find a better value for functional office space in the greater Crystal Lake area.
- Lease rate does not include utilities, property expenses or building services
- Fully Built-Out as Professional Services Office
- Mostly Open Floor Plan Layout
- 3 Private Offices
- 1 Conference Room
- Finished Ceilings: 9’
- Space is in Excellent Condition
- Central Air and Heating
- Fully Carpeted
- Natural Light
- After Hours HVAC Available
- Open-Plan
1st Floor, Ste 105
| Size | 1,156 SF |
| Term | 5 Years |
| Rental Rate | $16.00 /SF/YR |
| Space Use | Office |
| Condition | - |
| Available | Now |
Smallest available space in one of Crystal Lake's premier office buildings. Suite 105 is fully furnished with 6 full sized workstations, one private office and a kitchenette. A gross lease is available at $2,200 per month plus utilities. Usable square footage is 965 SF and Rentable square footage is 1,165. No additional rent for operating expenses or taxes for the duration of the lease term.
- Listed rate may not include certain utilities, building services and property expenses
- 1 Private Office
- 6 Workstations
- Space is in Excellent Condition
2nd Floor, Ste 206
| Size | 8,979 SF |
| Term | 5-7 Years |
| Rental Rate | $15.00 /SF/YR |
| Space Use | Office |
| Condition | Full Build-Out |
| Available | Now |
Beautifully finished and fully furnished office space with Reception Vestibule, 53 workstations, 2 private offices, Large Conference Room, and fully equipped kitchen with tables and seating included. Recently remodeled new LVT flooring. This prime second floor space with an abundance of natural light on 3 sides of the overall space. This is currently one of two spaces available at 265 Exchange Drive Corporate Center. See pictures and floor plan layout for Suite 206. This suite includes a separate 1,255 square foot fully built-out cafeteria and employee lounge area. A Modified Gross lease is available. Suite 206 is 8,979 RSF (7,493 USF) which includes common areas, foyer, common area bathrooms and amenities). Heat, Air Conditioning, and Water paid by Landlord, tenant only responsible for in-suite electric usage.
- Lease rate does not include utilities, property expenses or building services
- Fully Built-Out as Standard Office
- Mostly Open Floor Plan Layout
- 2 Private Offices
- 1 Conference Room
- 35 Workstations
- Finished Ceilings: 8’6”
- Space is in Excellent Condition
- Natural Light
- Abundance of Natural Light on 3 sides of the space
- Fully built-out Kitchen and employee lounge area
- Large common area bathrooms on each floor
- 1st Class interior office buildout
Property Overview
265 Exchange Drive Corporate Center is just steps away from the Crystal Lake Pingree train station. This state of the art building has rare vacancies available for rent (4,800 RSF; 5,200 RSF, 9,000 RSF, and ). All suites have a first class buildout and are move-in ready. Lower Level Suite 100 is a brand new build-out and is being offered at $7.00 PSF NNN (or $14.00 gross). Heating, Air Conditioning, CAM & Taxes are included in gross lease option. The only utility that Tenant is responsible for is the separately metered electric for your own lights and what you plug into the wall (AC and Heat is paid for by the Landlord and is not on the Tenant's electric meter). All suites have a first rate level of interior office build-out. Parking is abundant. For more information (and pictures) click on the suite number link under the Available Spaces above. Call managing broker for your walk-thru showing today.
- 24 Hour Access
- Atrium
- Conferencing Facility
- Property Manager on Site
- Automatic Blinds
- Central Heating
- High Ceilings
- Recessed Lighting
- Air Conditioning
Property Facts
Select Tenants
- Floor
- Tenant Name
- Industry
- 1st
- AJ Gallagher Insurance
- Finance and Insurance
- Multiple
- AptarGroup
- Health Care and Social Assistance
- 1st
- Crystal Lake Tax & Financial
- Finance and Insurance
- 1st
- First American Title
- Finance and Insurance
- 2nd
- Masterpiece International
- Transportation and Warehousing
Presented by
MRM PROPERTIES LLC
265 Exchange Drive Corporate Center | 265 Exchange Dr
Hmm, there seems to have been an error sending your message. Please try again.
Thanks! Your message was sent.









