Log In/Sign Up
Your email has been sent.
3174 Ridge Rd - Eldoridge Plaza 1,232 - 2,464 SF Condo Units Offered at $431,200 - $1,000,000 Per Unit in McKinney, TX 75070



Investment Highlights
- Turnkey Finish Out Available For Purchase
- Building & Monument Signage available
- Close proximity to Methodist McKinney Hospital
- Conveniently located on the Frisco / McKinney Border
- Minutes from the Sam Rayburn Tollway
- Synergistic professional environment with a fully maintained landscape
Executive Summary
Located on the border of Frisco and McKinney, Eldoridge Plaza consists of 2 professional / medical office buildings. It is located on Ridge Road just south of the signalized intersection at Eldorado Parkway and Ridge Road and minutes from the major arteries including the Sam Rayburn Tollway, the Dallas North Tollway, and Preston Road. Methodist McKinney Hospital and the McKinney Sports Complex are in close proximity to Eldoridge Plaza. Call today for a tour! TURNKEY FINISH OUT AVAILABLE FOR PURCHASE
Data Room Click Here to Access
4 Units Available
- Unit
- Unit Size
- Condo Use
- Price
- NOI
| Sale Type | Investment or Owner User |
| Sale Type | Investment or Owner User |
Description
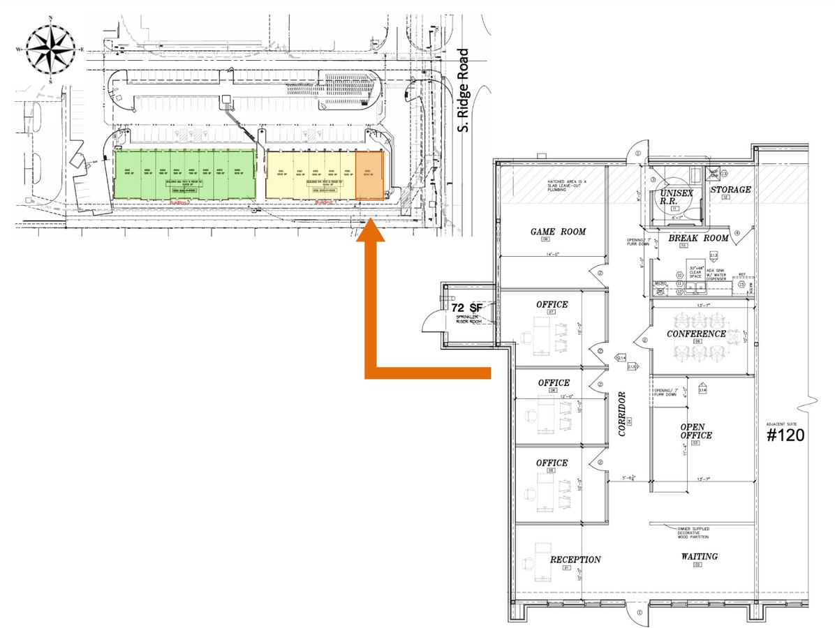
This corner professional office consists of approximately 2,402 SF. The stunning modern interior offers a very welcoming feel to both occupants and clients alike. This suite offers a large reception with waiting area, three private offices, a large open office perfect for workstations, one conference room, a game room (could be used as a training room or an additional open office), kitchen, storage closet, and a restroom. There is a secondary entrance / exit available at the rear of the suite. HVAC is Tenant controlled. Building and monument signage is available. Call today for a tour.
Sale Notes
Fully Finished Professional Office Available
Approx. 2,042 SF
$32 - $34 + NNN for Lease
Call for Sale Pricing
Approx. 2,042 SF
$32 - $34 + NNN for Lease
Call for Sale Pricing
| Sale Type | Investment or Owner User | Sale Conditions | Build to Suit |
| Sale Type | Investment or Owner User |
| Sale Conditions | Build to Suit |
Description
Discover a unique opportunity at Eldoridge Plaza to own a prime piece of real estate with excellent road exposure.
Unit Sizes: 1,232 - 2,464 Square Feet (Double Unit Configuration Available)
Don't miss out on securing your spot in this sought-after location, perfect for businesses seeking visibility and a professional, ready-to-use space. Contact us today to learn more and schedule a viewing.
Unit Sizes: 1,232 - 2,464 Square Feet (Double Unit Configuration Available)
Don't miss out on securing your spot in this sought-after location, perfect for businesses seeking visibility and a professional, ready-to-use space. Contact us today to learn more and schedule a viewing.
Sale Notes
Shell Space
Professional / Medical Offices Available
1,232 SF – 2,464 SF
$350 / SF - Sale
9.84/1000 SF (Parking Ratio)
Professional / Medical Offices Available
1,232 SF – 2,464 SF
$350 / SF - Sale
9.84/1000 SF (Parking Ratio)
| Sale Type | Investment or Owner User | Sale Conditions | Build to Suit, Building in Shell Condition |
| Sale Type | Investment or Owner User |
| Sale Conditions | Build to Suit, Building in Shell Condition |
Description
Discover a unique opportunity at Eldoridge Plaza to own a prime piece of real estate with excellent road exposure.
Unit Sizes: 1,232 - 2,464 Square Feet (Double Unit Configuration Available)
Don't miss out on securing your spot in this sought-after location, perfect for businesses seeking visibility and a professional, ready-to-use space. Contact us today to learn more and schedule a viewing.
Unit Sizes: 1,232 - 2,464 Square Feet (Double Unit Configuration Available)
Don't miss out on securing your spot in this sought-after location, perfect for businesses seeking visibility and a professional, ready-to-use space. Contact us today to learn more and schedule a viewing.
Sale Notes
Shell Space
Professional / Medical Offices Available
1,232 SF – 2,464 SF
$350 / SF - Sale
9.84/1000 SF (Parking Ratio)
Professional / Medical Offices Available
1,232 SF – 2,464 SF
$350 / SF - Sale
9.84/1000 SF (Parking Ratio)
| Sale Type | Investment or Owner User |
| Sale Type | Investment or Owner User |
Description
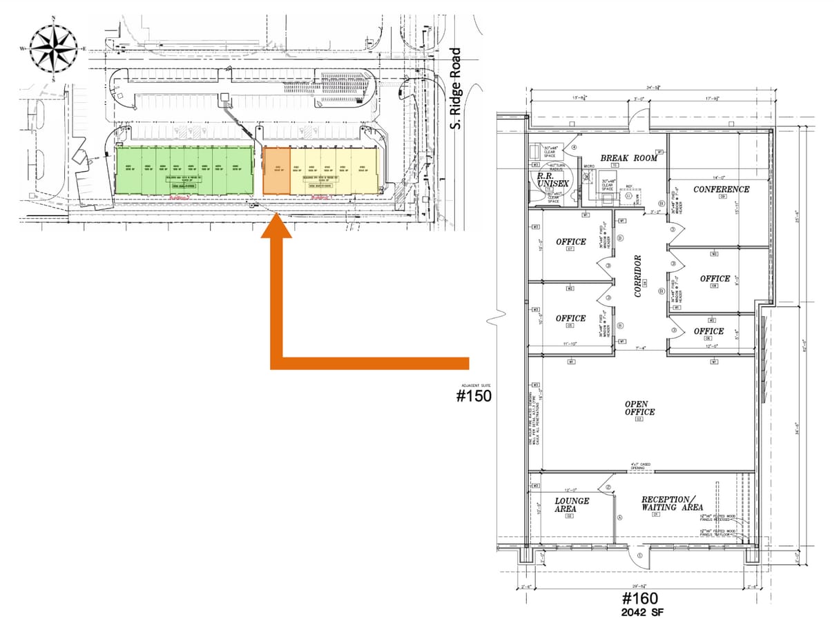
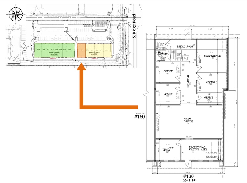
This corner professional office consists of approximately 2,042 SF. Enjoy this suite with its unique and upscale modern interior finishes. This suite offers a reception with waiting area with lounge area, four private offices, a large open office perfect for workstations, one conference room, kitchen, and a restroom with a shower. There is an additional rear entrance / exit at the rear of the suite. HVAC is Tenant controlled. Building and monument signage is available. Call today for a tour.
Sale Notes
Fully Finished Professional Office Available
Approx. 2,042 SF
$32 - $34 + NNN for Lease
Call for Sale Pricing
Approx. 2,042 SF
$32 - $34 + NNN for Lease
Call for Sale Pricing
| Unit | Unit Size | Condo Use | Price | NOI |
| Unit 110 | 2,042 SF | Office | $1,000,000 ($489.72/SF) | - |
| Unit 120 | 1,232 SF | Office/Medical | $431,200 ($350.00/SF) | - |
| Unit 130 | 2,464 SF | Office/Medical | $862,400 ($350.00/SF) | - |
| Unit 160 | 2,042 SF | Office | $950,000 ($465.23/SF) | - |
Unit 110
| Unit Size |
| 2,042 SF |
| Condo Use |
| Office |
| Price |
| $1,000,000 ($489.72/SF) |
| NOI |
| - |
Unit 120
| Unit Size |
| 1,232 SF |
| Condo Use |
| Office/Medical |
| Price |
| $431,200 ($350.00/SF) |
| NOI |
| - |
Unit 130
| Unit Size |
| 2,464 SF |
| Condo Use |
| Office/Medical |
| Price |
| $862,400 ($350.00/SF) |
| NOI |
| - |
Unit 160
| Unit Size |
| 2,042 SF |
| Condo Use |
| Office |
| Price |
| $950,000 ($465.23/SF) |
| NOI |
| - |
1 of 8
Videos
Matterport 3D Exterior
Matterport 3D Tour
Photos
Street View
Street
Map
Unit 110
| Unit Size | 2,042 SF |
| Condo Use | Office |
| Price | $1,000,000 ($489.72/SF) |
| NOI | - |
| Sale Type | Investment or Owner User |
| Description | |
| This corner professional office consists of approximately 2,402 SF. The stunning modern interior offers a very welcoming feel to both occupants and clients alike. This suite offers a large reception with waiting area, three private offices, a large open office perfect for workstations, one conference room, a game room (could be used as a training room or an additional open office), kitchen, storage closet, and a restroom. There is a secondary entrance / exit available at the rear of the suite. HVAC is Tenant controlled. Building and monument signage is available. Call today for a tour.</li></ul> | |
| Sale Notes | |
| Fully Finished Professional Office Available<br> Approx. 2,042 SF<br> $32 - $34 + NNN for Lease<br> Call for Sale Pricing</li></ul> |
1 of 1
Videos
Matterport 3D Exterior
Matterport 3D Tour
Photos
Street View
Street
Map
Unit 120
| Unit Size | 1,232 SF |
| Condo Use | Office/Medical |
| Price | $431,200 ($350.00/SF) |
| NOI | - |
| Sale Type | Investment or Owner User |
| Sale Conditions | Build to Suit |
| Description | |
| Discover a unique opportunity at Eldoridge Plaza to own a prime piece of real estate with excellent road exposure. <br> <br> Unit Sizes: 1,232 - 2,464 Square Feet (Double Unit Configuration Available)<br> <br> Don't miss out on securing your spot in this sought-after location, perfect for businesses seeking visibility and a professional, ready-to-use space. Contact us today to learn more and schedule a viewing.</li></ul> | |
| Sale Notes | |
| Shell Space<br> Professional / Medical Offices Available <br> 1,232 SF – 2,464 SF<br> $350 / SF - Sale<br> 9.84/1000 SF (Parking Ratio)</li></ul> |
1 of 1
Videos
Matterport 3D Exterior
Matterport 3D Tour
Photos
Street View
Street
Map
Unit 130
| Unit Size | 2,464 SF |
| Condo Use | Office/Medical |
| Price | $862,400 ($350.00/SF) |
| NOI | - |
| Sale Type | Investment or Owner User |
| Sale Conditions | Build to Suit, Building in Shell Condition |
| Description | |
| Discover a unique opportunity at Eldoridge Plaza to own a prime piece of real estate with excellent road exposure. <br> <br> Unit Sizes: 1,232 - 2,464 Square Feet (Double Unit Configuration Available)<br> <br> Don't miss out on securing your spot in this sought-after location, perfect for businesses seeking visibility and a professional, ready-to-use space. Contact us today to learn more and schedule a viewing.</li></ul> | |
| Sale Notes | |
| Shell Space<br> Professional / Medical Offices Available <br> 1,232 SF – 2,464 SF<br> $350 / SF - Sale <br> 9.84/1000 SF (Parking Ratio)</li></ul> |
1 of 9
Videos
Matterport 3D Exterior
Matterport 3D Tour
Photos
Street View
Street
Map
Unit 160
| Unit Size | 2,042 SF |
| Condo Use | Office |
| Price | $950,000 ($465.23/SF) |
| NOI | - |
| Sale Type | Investment or Owner User |
| Description | |
| This corner professional office consists of approximately 2,042 SF. Enjoy this suite with its unique and upscale modern interior finishes. This suite offers a reception with waiting area with lounge area, four private offices, a large open office perfect for workstations, one conference room, kitchen, and a restroom with a shower. There is an additional rear entrance / exit at the rear of the suite. HVAC is Tenant controlled. Building and monument signage is available. Call today for a tour.</li></ul> | |
| Sale Notes | |
| Fully Finished Professional Office Available<br> Approx. 2,042 SF<br> $32 - $34 + NNN for Lease<br> Call for Sale Pricing</li></ul> |
Property Facts
The following property facts and amenities apply to the entire building. Details for individual condo units may vary and are listed in the unit information above.
| Total Building Size | 10,878 SF | Typical Floor Size | 1,232 SF |
| Property Type | Office | Year Built | 2023 |
| Property Subtype | Medical | Lot Size | 2.37 AC |
| Building Class | B | Parking Ratio | 9.84/1,000 SF |
| Floors | 1 | ||
| Zoning | PD 1646 - Office/Medical/Dental | ||
| Total Building Size | 10,878 SF |
| Property Type | Office |
| Property Subtype | Medical |
| Building Class | B |
| Floors | 1 |
| Typical Floor Size | 1,232 SF |
| Year Built | 2023 |
| Lot Size | 2.37 AC |
| Parking Ratio | 9.84/1,000 SF |
| Zoning | PD 1646 - Office/Medical/Dental |
Amenities
- 24 Hour Access
- Signage
- Monument Signage
1 1
Moderately walkable
60/100
Moderately drivable
70/100
Moderately bikeable
60/100
1 of 6
Videos
Matterport 3D Exterior
Matterport 3D Tour
Photos
Street View
Street
Map
1 of 1
Presented by
3174 Ridge Rd - Eldoridge Plaza
Already a member? Log In
Hmm, there seems to have been an error sending your message. Please try again.
Thanks! Your message was sent.





