Log In/Sign Up
Your email has been sent.
Investment Highlights
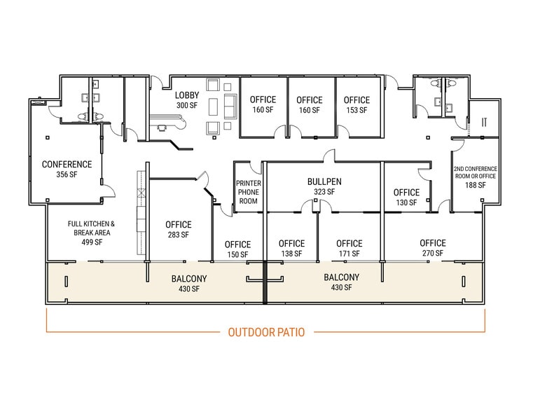
- Turnkey 4,981 RSF creative office condo with 10 private offices
- Full kitchen with range/oven plus four private restrooms and a shower; IT and storage closets support true plug-and-play.
- Prime RiNo location—walkable to breweries, coffee, restaurants; minutes to Downtown and 38th & Blake A-Line.
- Expansive private outdoor patio/balcony running the length of the suite—ideal for events, breakout space, and fresh-air work.
- Optional furniture package for immediate occupancy; unique client-facing touches(e.g., reception aquarium).
Executive Summary
Positioned at 3198 Blake Street in Denver’s RiNo Arts District, the condo is surrounded by walkable amenities—murals, breweries, coffee shops, restaurants, and creative businesses—within a highly visible, character-rich corridor. Downtown is just minutes away, the 38th & Blake A-Line station is nearby, and major routes like I-70 and I-25 are easily accessible, offering excellent connectivity for employees and clients alike. The building amenities include: EV charging station, secure bike storage, on-site gym and covered parking available for $200/month.
Data Room Click Here to Access
- Offering Memorandum
1 Unit Available
- Unit
- Unit Size
- Condo Use
- Price
- NOI
| Sale Type | Investment or Owner User |
| Sale Type | Investment or Owner User |
Description
Henry Group Real Estate is pleased to present 3198 Blake Unit 222 for sale or lease. This office condo at Factory Flats Apartments is a 4,981 RSF, fully built-out creative office condo featuring 10 private offices, a large conference room with wet bar, a dedicated printer room that can be converted to a phone room or a secondary conference room, a small bullpen, and a welcoming reception anchored by a salt-water aquarium. A full kitchen with range/oven and an entertainment area open to an expansive private outdoor patio/balcony that runs the length of the suite—ideal for events or breakout space. The layout also provides four private restrooms with Japanese toilets, a shower, storage and IT closets, and optional furniture for true plug-and-play occupancy.
Sale Notes
This turnkey creative office condo in the heart of RiNo presents a rare owner-user or investor opportunity, combining premium build-out quality with one of Denver’s most sought-after submarkets. With flexible leasing potential—from 130 SF suites to a full 4,981 RSF occupancy—the asset offers strong income upside and long-term value in a high-demand, walkable location.
| Unit | Unit Size | Condo Use | Price | NOI |
| Unit 222 | 4,981 SF | Office | Upon Request | - |
Unit 222
| Unit Size |
| 4,981 SF |
| Condo Use |
| Office |
| Price |
| Upon Request |
| NOI |
| - |
1 of 26
Videos
Matterport 3D Exterior
Matterport 3D Tour
Photos
Street View
Street
Map
Unit 222
| Unit Size | 4,981 SF |
| Condo Use | Office |
| Price | Upon Request |
| NOI | - |
| Sale Type | Investment or Owner User |
| Description | |
| Henry Group Real Estate is pleased to present 3198 Blake Unit 222 for sale or lease. This office condo at Factory Flats Apartments is a 4,981 RSF, fully built-out creative office condo featuring 10 private offices, a large conference room with wet bar, a dedicated printer room that can be converted to a phone room or a secondary conference room, a small bullpen, and a welcoming reception anchored by a salt-water aquarium. A full kitchen with range/oven and an entertainment area open to an expansive private outdoor patio/balcony that runs the length of the suite—ideal for events or breakout space. The layout also provides four private restrooms with Japanese toilets, a shower, storage and IT closets, and optional furniture for true plug-and-play occupancy.</li></ul> | |
| Sale Notes | |
| This turnkey creative office condo in the heart of RiNo presents a rare owner-user or investor opportunity, combining premium build-out quality with one of Denver’s most sought-after submarkets. With flexible leasing potential—from 130 SF suites to a full 4,981 RSF occupancy—the asset offers strong income upside and long-term value in a high-demand, walkable location.</li></ul> |
Property Facts
The following property facts and amenities apply to the entire building. Details for individual condo units may vary and are listed in the unit information above.
Amenities
Site Amenities
- 24 Hour Access
- Private Bathroom
Unit Mix Information
| Description | No. Units | Avg. Rent/Mo | SF |
|---|---|---|---|
| 1+1.5 | 6 | - | 1,188 |
| 2+2 | 18 | - | 1,221 - 1,456 |
1 1
Moderately walkable
70/100
Moderately drivable
70/100
Good public transit
70/100
Moderately bikeable
60/100
Major Tenant Information Click Here to Access
| TENANT | SF Occupied | LEASE END DATE |
|---|---|---|
| Platform Fitness |
-
|
Jan 0000
|
1 of 5
Videos
Matterport 3D Exterior
Matterport 3D Tour
Photos
Street View
Street
Map
1 of 1
Presented by
3198 Blake St - Factory Flats
Already a member? Log In
Hmm, there seems to have been an error sending your message. Please try again.
Thanks! Your message was sent.





