Log In/Sign Up
Enter your email to login or create a free account
This feature is unavailable at the moment.
We apologize, but the feature you are trying to access is currently unavailable. We are aware of this issue and our team is working hard to resolve the matter.
Please check back in a few minutes. We apologize for the inconvenience.
- LoopNet Team
This Property is no longer advertised on LoopNet.com.
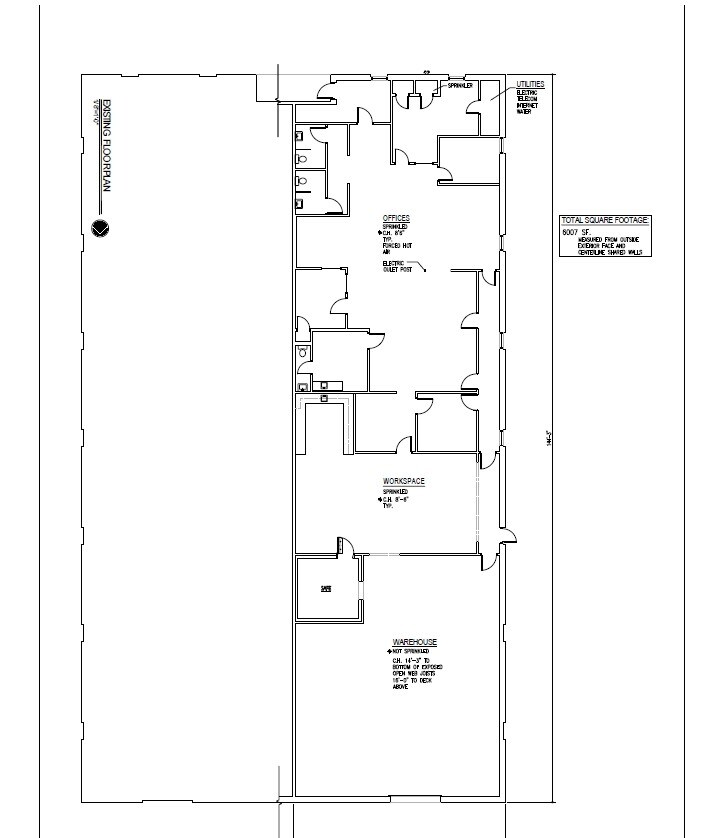
33 Freeway Dr
Cranston, RI 02920
Property For Lease

Property Overview
6,000 sf currently configured as Office / Warehouse (50/50). Masonry building, sprinklers, Large overhead door, M1 Zone Visible from Rt. 37, Excellent access to I-95 and I-295.
Property Facts
| Property Type | Flex | Rentable Building Area | 9,072 SF |
| Property Subtype | Light Manufacturing | Year Built | 1979 |
| Building Class | C |
| Property Type | Flex |
| Property Subtype | Light Manufacturing |
| Building Class | C |
| Rentable Building Area | 9,072 SF |
| Year Built | 1979 |
Features and Amenities
- Yard
- Storage Space
- Air Conditioning
Utilities
- Lighting - Fluorescent
- Gas - Natural
- Water - City
- Sewer - City
- Heating - Gas
Listing ID: 6764983
Date on Market: 4/13/2017
Last Updated:
Address: 33 Freeway Dr, Cranston, RI 02920
The Flex Property at 33 Freeway Dr, Cranston, RI 02920 is no longer being advertised on LoopNet.com. Contact the broker for information on availability.
FLEX PROPERTIES IN NEARBY NEIGHBORHOODS
- Downtown Providence Commercial Real Estate Properties
- Outer East Bay Commercial Real Estate Properties
- Washington Park Commercial Real Estate Properties
- The Plains Commercial Real Estate Properties
- Lower South Providence Commercial Real Estate Properties
- College Hill Commercial Real Estate Properties
- Downtown Pawtucket Commercial Real Estate Properties
- Upper South Providence Commercial Real Estate Properties
- Olneyville Commercial Real Estate Properties
- Reservoir Commercial Real Estate Properties
- West End Providence Commercial Real Estate Properties
- Federal Hill Commercial Real Estate Properties
- Wayland Commercial Real Estate Properties
- Valley Commercial Real Estate Properties
- Wanskuck Commercial Real Estate Properties
NEARBY LISTINGS
- 735 Allens Ave, Providence RI
- 1324 Bald Hill Rd, Warwick RI
- 1455 Oaklawn Ave, Cranston RI
- 100 Midway Rd, Cranston RI
- 745 Jefferson Blvd, Warwick RI
- 111 Meadow St, Warwick RI
- 601 Cranston St, Providence RI
- 33 Plan Way, Warwick RI
- 44 Warren St, Providence RI
- 422 Post Rd, Warwick RI
- 299 Allens Ave, Providence RI
- 1515 Elmwood Ave, Cranston RI
- 166 Lavan St, Warwick RI
- 33 Plan Way, Warwick RI
- 960 Reservoir Ave, Cranston RI
1 of 1
Videos
Matterport 3D Exterior
Matterport 3D Tour
Photos
Street View
Street
Map

Link copied
Your LoopNet account has been created!
Thank you for your feedback.
Please Share Your Feedback
We welcome any feedback on how we can improve LoopNet to better serve your needs.X
{{ getErrorText(feedbackForm.starRating, "rating") }}
255 character limit ({{ remainingChars() }} charactercharacters remainingover)
{{ getErrorText(feedbackForm.msg, "rating") }}
{{ getErrorText(feedbackForm.fname, "first name") }}
{{ getErrorText(feedbackForm.lname, "last name") }}
{{ getErrorText(feedbackForm.phone, "phone number") }}
{{ getErrorText(feedbackForm.phonex, "phone extension") }}
{{ getErrorText(feedbackForm.email, "email address") }}
You can provide feedback any time using the Help button at the top of the page.