Log In/Sign Up
Your email has been sent.
33 W Jackson Blvd 1,100 SF Office Condo Unit Offered at $245,000 in Chicago, IL 60604



Investment Highlights
- Prime Chicago Loop location surrounded by major financial, legal, and corporate institutions.
Executive Summary
Office property with multiple office condos throughout. Spaces are fully built out and offer tons of natural lighting and convenient access to downtown Chicago.
1 Unit Available
- Unit
- Unit Size
- Condo Use
- Price
- NOI
| Sale Type | Owner User | APN/Parcel ID | 17-16-234-007-1008 |
| Sale Type | Owner User |
| APN/Parcel ID | 17-16-234-007-1008 |
Description
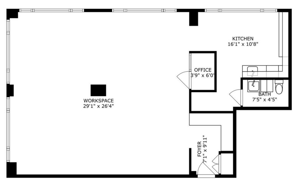
Condo sits above first floor with tons of natural lighting and a downtown Chicago location! Workspace makes of a majority of this suite; however, there is one private office, kitchen, and foyer.
Sale Notes
Office condo for sale ideal for legal, consulting, financial, or administrative uses.
| Unit | Unit Size | Condo Use | Price | NOI |
| Unit 200 | 1,100 SF | Office | $245,000 ($222.73/SF) | - |
Unit 200
| Unit Size |
| 1,100 SF |
| Condo Use |
| Office |
| Price |
| $245,000 ($222.73/SF) |
| NOI |
| - |
1 of 4
Videos
Matterport 3D Exterior
Matterport 3D Tour
Photos
Street View
Street
Map
Unit 200
| Unit Size | 1,100 SF |
| Condo Use | Office |
| Price | $245,000 ($222.73/SF) |
| NOI | - |
| Sale Type | Owner User |
| APN/Parcel ID | 17-16-234-007-1008 |
| Description | |
| Condo sits above first floor with tons of natural lighting and a downtown Chicago location! Workspace makes of a majority of this suite; however, there is one private office, kitchen, and foyer.</li></ul> | |
| Sale Notes | |
| Office condo for sale ideal for legal, consulting, financial, or administrative uses.</li></ul> |
Property Facts
The following property facts and amenities apply to the entire building. Details for individual condo units may vary and are listed in the unit information above.
| Total Building Size | 17,250 SF | Floors | 5 |
| Property Type | Office (Condo) | Typical Floor Size | 3,450 SF |
| Property Subtype | Loft/Creative Space | Year Built | 1910 |
| Building Class | C | Lot Size | 0.09 AC |
| Zoning | RBPD, Chicago - DC16 | ||
| Total Building Size | 17,250 SF |
| Property Type | Office (Condo) |
| Property Subtype | Loft/Creative Space |
| Building Class | C |
| Floors | 5 |
| Typical Floor Size | 3,450 SF |
| Year Built | 1910 |
| Lot Size | 0.09 AC |
| Zoning | RBPD, Chicago - DC16 |
Amenities
- Bus Line
- Commuter Rail
- Food Service
- Signage
1 1
Exceptionally walkable
100/100
Moderately drivable
70/100
Exceptional public transit
100/100
Exceptionally bikeable
90/100
1 of 6
Videos
Matterport 3D Exterior
Matterport 3D Tour
Photos
Street View
Street
Map
1 of 1
Presented by
33 W Jackson Blvd
Already a member? Log In
Hmm, there seems to have been an error sending your message. Please try again.
Thanks! Your message was sent.


