Log In/Sign Up
Your email has been sent.
375 Municipal Dr
Richardson, TX 75080
Richardson Medical Park · Office Property For Sale
·
48,963 SF


INVESTMENT HIGHLIGHTS
- Direct Access to Central Expressway
- Covered Parking
- Well Maintained Property with Mature Landscaping
PROPERTY FACTS
| Total Building Size | 48,963 SF | Floors | 2 |
| Property Type | Office | Typical Floor Size | 1,841 SF |
| Property Subtype | Medical | Year Built | 1981 |
| Building Class | C | Lot Size | 4.01 AC |
| Zoning | Medical Office - Professional office use | ||
| Total Building Size | 48,963 SF |
| Property Type | Office |
| Property Subtype | Medical |
| Building Class | C |
| Floors | 2 |
| Typical Floor Size | 1,841 SF |
| Year Built | 1981 |
| Lot Size | 4.01 AC |
| Zoning | Medical Office - Professional office use |
AMENITIES
- Controlled Access
- Fitness Center
- Air Conditioning
2 UNITS AVAILABLE
Unit 132
| Unit Size | 2,179 SF | Sale Type | Investment or Owner User |
| Condo Use | Office/Medical |
| Unit Size | 2,179 SF |
| Condo Use | Office/Medical |
| Sale Type | Investment or Owner User |
Floor Plan
1 of 1
VIDEOS
MATTERPORT 3D EXTERIOR
MATTERPORT 3D TOUR
PHOTOS
STREET VIEW
STREET
MAP
Unit 224
| Unit Size | 2,551 SF | Sale Type | Investment or Owner User |
| Condo Use | Office/Medical |
| Unit Size | 2,551 SF |
| Condo Use | Office/Medical |
| Sale Type | Investment or Owner User |
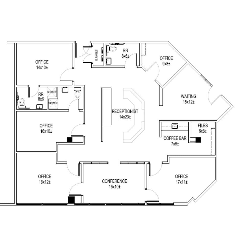
DESCRIPTION
Unit #224 is approximately 2,551 square feet and includes reception/waiting room, 4 spacious offices and conference room with floor to ceiling windows, 2 large workrooms with 3-4 work stations each and one with large file closet, coffee bar with under counter refrigerator, and restroom.
SALE NOTES
Suited for Professional Office and Medical Office Use
Floor Plan
1 of 1
VIDEOS
MATTERPORT 3D EXTERIOR
MATTERPORT 3D TOUR
PHOTOS
STREET VIEW
STREET
MAP
1 of 71
VIDEOS
MATTERPORT 3D EXTERIOR
MATTERPORT 3D TOUR
PHOTOS
STREET VIEW
STREET
MAP


