Your email has been sent.
Park Highlights
- Zoning: I-2 (heavy industrial)
- Excellent visibility & direct access to Loop 410. Less than one minute to/from I-35.
- Front-load configuration
- Move-in ready suites available (LED warehouse lighting, brand new office finishes)
- Fenced outside storage available
- Located minutes from downtown San Antonio and HEB's industrial campus.
Park Facts
Features and Amenities
- Fenced Lot
- Freeway Visibility
All Available Spaces(3)
Display Rental Rate as
- Space
- Size
- Term
- Rental Rate
- Space Use
- Build-Out
- Available
Position your operations at Macro Distribution Center – Building 2, a premier industrial facility strategically located in San Antonio’s thriving distribution corridor. This property offers exceptional functionality for logistics and warehousing, featuring a generous clear height of 22 feet and five dock-high doors equipped with pit levelers for efficient loading and unloading. A dedicated ramp and rear overhead doors enhance ventilation and operational flexibility. Suite 4518 delivers a balanced configuration of warehouse and office space, ideal for businesses seeking streamlined distribution capabilities with administrative convenience. The site’s proximity to major transportation arteries ensures seamless regional connectivity, supporting rapid access to I-35, I-10, and Loop 410 for efficient freight movement across Texas and beyond. San Antonio’s robust industrial market, coupled with its central location and growing population base, makes this an optimal choice for companies looking to expand or consolidate operations. Benefit from a business-friendly environment and strong labor pool while positioning your enterprise in a facility designed for performance and scalability.
- 1 Drive Bay
- 5 Loading Docks
- Five dock-high doors with pit levelers
- Dedicated office space
- Space is in Excellent Condition
- Strategic location
- 22-foot clear height
- Easy access to major highways
| Space | Size | Term | Rental Rate | Space Use | Build-Out | Available |
| 1st Floor - 4518 | 25,046 SF | Negotiable | Upon Request Upon Request Upon Request Upon Request | Industrial | Partial Build-Out | Now |
4502-4536 Macro - 1st Floor - 4518
- Space
- Size
- Term
- Rental Rate
- Space Use
- Build-Out
- Available
Contact Broker for Pricing
- Lease rate does not include utilities, property expenses or building services
- 2 Drive Ins
- Central Air Conditioning
- Dock Doors with Ramps: 2
- Total Office Space: 1,305 SF
- Includes 1,305 SF of dedicated office space
- 6 Loading Docks
- Dock Doors: 6
- Rail Doors: 2
| Space | Size | Term | Rental Rate | Space Use | Build-Out | Available |
| 1st Floor - 4519 | 20,000 SF | Negotiable | Upon Request Upon Request Upon Request Upon Request | Industrial | Full Build-Out | Now |
4501-4525 Macro - 1st Floor - 4519
- Space
- Size
- Term
- Rental Rate
- Space Use
- Build-Out
- Available
Contact Broker for Pricing
- Lease rate does not include utilities, property expenses or building services
- 1 Drive Bay
- Central Air Conditioning
- Includes 2,016 SF of dedicated office space
- 5 Loading Docks
| Space | Size | Term | Rental Rate | Space Use | Build-Out | Available |
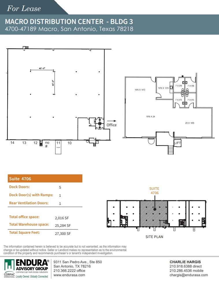
| 1st Floor - 4706 | 27,300 SF | Negotiable | Upon Request Upon Request Upon Request Upon Request | Industrial | Full Build-Out | Now |
4700-4718 Macro - 1st Floor - 4706
4502-4536 Macro - 1st Floor - 4518
| Size | 25,046 SF |
| Term | Negotiable |
| Rental Rate | Upon Request |
| Space Use | Industrial |
| Build-Out | Partial Build-Out |
| Available | Now |
Position your operations at Macro Distribution Center – Building 2, a premier industrial facility strategically located in San Antonio’s thriving distribution corridor. This property offers exceptional functionality for logistics and warehousing, featuring a generous clear height of 22 feet and five dock-high doors equipped with pit levelers for efficient loading and unloading. A dedicated ramp and rear overhead doors enhance ventilation and operational flexibility. Suite 4518 delivers a balanced configuration of warehouse and office space, ideal for businesses seeking streamlined distribution capabilities with administrative convenience. The site’s proximity to major transportation arteries ensures seamless regional connectivity, supporting rapid access to I-35, I-10, and Loop 410 for efficient freight movement across Texas and beyond. San Antonio’s robust industrial market, coupled with its central location and growing population base, makes this an optimal choice for companies looking to expand or consolidate operations. Benefit from a business-friendly environment and strong labor pool while positioning your enterprise in a facility designed for performance and scalability.
- 1 Drive Bay
- Space is in Excellent Condition
- 5 Loading Docks
- Strategic location
- Five dock-high doors with pit levelers
- 22-foot clear height
- Dedicated office space
- Easy access to major highways
4501-4525 Macro - 1st Floor - 4519
| Size | 20,000 SF |
| Term | Negotiable |
| Rental Rate | Upon Request |
| Space Use | Industrial |
| Build-Out | Full Build-Out |
| Available | Now |
Contact Broker for Pricing
- Lease rate does not include utilities, property expenses or building services
- Includes 1,305 SF of dedicated office space
- 2 Drive Ins
- 6 Loading Docks
- Central Air Conditioning
- Dock Doors: 6
- Dock Doors with Ramps: 2
- Rail Doors: 2
- Total Office Space: 1,305 SF
4700-4718 Macro - 1st Floor - 4706
| Size | 27,300 SF |
| Term | Negotiable |
| Rental Rate | Upon Request |
| Space Use | Industrial |
| Build-Out | Full Build-Out |
| Available | Now |
Contact Broker for Pricing
- Lease rate does not include utilities, property expenses or building services
- Includes 2,016 SF of dedicated office space
- 1 Drive Bay
- 5 Loading Docks
- Central Air Conditioning
Park Overview
Macro Distribution Center is located near the intersection of Interstate 35 and Loop 410 in Northeast San Antonio. Within service area of Fort Sam Houston & the San Antonio Military Medical Center and Rittiman Distribution Area as well. The project offers immediate interstate access and functional front-load configurations. Located minutes from downtown San Antonio and HEB's industrial campus.
Presented by
Macro Distribution Center | San Antonio, TX 78218
Hmm, there seems to have been an error sending your message. Please try again.
Thanks! Your message was sent.









