Your email has been sent.
Park Highlights
- Embrace the stunning views of the Saddleback Mountains and Newport Beach by leasing modern office space at Koll Center Newport West Tower.
- Amenities abound, including a brand-new fitness center, EV charging, an on-site restaurant, expansive window lines, and high ceilings.
- Enjoy the landscaped courtyard between the West and East Towers, which features a trellis, circular bar, landscaping, fire pits, seating, and games.
- Located in the heart of Orange County near UC Irvine and UCI Health Hospital, with quick access to major freeways, PCH, and John Wayne Airport.
- Nearby popular restaurants, shops, and hotels include Extended Stay, Whole Foods, Costco, and In-and-Out Burger.
- Just minutes from world-famous Southern California destinations like Fashion Park and beaches such as Newport, Laguna, Huntington, and Balboa.
Park Facts
| Total Space Available | 85,795 SF | Park Type | Office Park |
| Max. Contiguous | 8,817 SF |
| Total Space Available | 85,795 SF |
| Max. Contiguous | 8,817 SF |
| Park Type | Office Park |
All Available Spaces(13)
Display Rental Rate as
- Space
- Size
- Term
- Rental Rate
- Space Use
- Condition
- Available
Market-ready suite featuring four perimeter offices, a glass conference room, a break room, and an open area.
- Fits 7 - 22 People
- Can be combined with additional space(s) for up to 8,817 SF of adjacent space
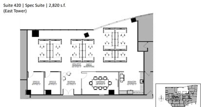
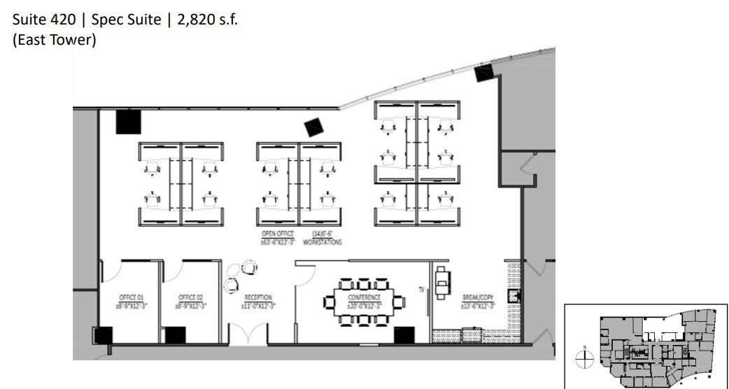
Market-ready creative spec suite featuring a glass conference room, two offices, an open break area, and a large open area.
- Open Floor Plan Layout
- 2 Private Offices
- 14 Workstations
- Can be combined with additional space(s) for up to 8,817 SF of adjacent space
- Print/Copy Room
- Fits 8 - 23 People
- 1 Conference Room
- Space is in Excellent Condition
- Central Air Conditioning
Corner suite with expansive glass line, conference room, 2 offices, break room, and open space.
- Fits 9 - 27 People
- Can be combined with additional space(s) for up to 8,817 SF of adjacent space
Dedicated reception, large conference room, seven perimeter offices, break room, work room, telco room, and large open area.
- Mostly Open Floor Plan Layout
- 7 Private Offices
- Reception Area
- Fits 22 - 69 People
- 1 Conference Room
- Kitchen
| Space | Size | Term | Rental Rate | Space Use | Condition | Available |
| 4th Floor, Ste 405 | 2,675 SF | Negotiable | Upon Request Upon Request Upon Request Upon Request | Office | Spec Suite | Now |
| 4th Floor, Ste 420 | 2,853 SF | Negotiable | Upon Request Upon Request Upon Request Upon Request | Office | Spec Suite | Now |
| 4th Floor, Ste 440 | 3,289 SF | Negotiable | Upon Request Upon Request Upon Request Upon Request | Office | - | July 01, 2026 |
| 5th Floor, Ste 550 | 8,574 SF | Negotiable | Upon Request Upon Request Upon Request Upon Request | Office | - | Now |
5000 Birch St - 4th Floor - Ste 405
5000 Birch St - 4th Floor - Ste 420
5000 Birch St - 4th Floor - Ste 440
5000 Birch St - 5th Floor - Ste 550
- Space
- Size
- Term
- Rental Rate
- Space Use
- Condition
- Available
Double door entry off elevator featuring a large conference room, 12 offices, and a large open area.
- Fits 25 - 80 People
- 1 Conference Room
- 12 Private Offices
7 perimeter offices and open area.
- Fits 10 - 31 People
Double door entry off elevator featuring dedicated reception, large break room, nine perimeter offices, work room, storage, and open area.
- Fully Built-Out as Standard Office
- 9 Private Offices
- Can be combined with additional space(s) for up to 7,182 SF of adjacent space
- Kitchen
- Fits 16 - 49 People
- Conference Rooms
- Reception Area
Suite is in design ready, shell condition.
- Can be combined with additional space(s) for up to 7,182 SF of adjacent space
Double door entry off elevator with picturesque views.
- Rate includes utilities, building services and property expenses
- Fits 33 - 106 People
Highly creative suite featuring double door entry off elevator, two large glass conference rooms, open break room, three private offices, two huddle rooms and large open area with panoramic views.
- Fully Built-Out as Standard Office
- 3 Private Offices
- Can be combined with additional space(s) for up to 8,338 SF of adjacent space
- Fits 14 - 45 People
- 4 Conference Rooms
Conference room, 8 offices, kitchen and open space.
- Fits 14 - 45 People
- Space is in Excellent Condition
- 8 Private Offices
Conference room, six offices, and break room.
- Rate includes utilities, building services and property expenses
- Fits 7 - 23 People
- 1 Conference Room
- Fully Built-Out as Standard Office
- 6 Private Offices
- Can be combined with additional space(s) for up to 8,338 SF of adjacent space
-Highly improved full-floor penthouse space with panoramic views -The only high-rise penthouse space available in Newport Beach -Offering building top signage -Panoramic views -VIP parking in the adjacent structure and convenient surface parking -Available immediately and ready for immediate occupancy
- Office intensive layout
- Space is in Excellent Condition
- Fits 51 - 164 People
| Space | Size | Term | Rental Rate | Space Use | Condition | Available |
| 5th Floor, Ste 5000 | 9,918 SF | Negotiable | Upon Request Upon Request Upon Request Upon Request | Office | Full Build-Out | Now |
| 6th Floor, Ste 6050 | 3,863 SF | Negotiable | Upon Request Upon Request Upon Request Upon Request | Office | - | December 01, 2026 |
| 7th Floor, Ste 7000 | 6,076 SF | Negotiable | Upon Request Upon Request Upon Request Upon Request | Office | Full Build-Out | Now |
| 7th Floor, Ste 7800 | 1,106 SF | Negotiable | Upon Request Upon Request Upon Request Upon Request | Office | Shell Space | Now |
| 8th Floor, Ste 8500 | 13,139 SF | Negotiable | Upon Request Upon Request Upon Request Upon Request | Office | - | December 01, 2026 |
| 9th Floor, Ste 9000 | 5,551 SF | Negotiable | Upon Request Upon Request Upon Request Upon Request | Office | Full Build-Out | Now |
| 9th Floor, Ste 9200 | 5,572 SF | Negotiable | Upon Request Upon Request Upon Request Upon Request | Office | - | Now |
| 9th Floor, Ste 9500 | 2,787 SF | Negotiable | Upon Request Upon Request Upon Request Upon Request | Office | Full Build-Out | Now |
| 10th Floor, Ste 1000 | 20,392 SF | Negotiable | Upon Request Upon Request Upon Request Upon Request | Office | Full Build-Out | Now |
5000 Birch St - 5th Floor - Ste 5000
5000 Birch St - 6th Floor - Ste 6050
5000 Birch St - 7th Floor - Ste 7000
5000 Birch St - 7th Floor - Ste 7800
5000 Birch St - 8th Floor - Ste 8500
5000 Birch St - 9th Floor - Ste 9000
5000 Birch St - 9th Floor - Ste 9200
5000 Birch St - 9th Floor - Ste 9500
5000 Birch St - 10th Floor - Ste 1000
5000 Birch St - 4th Floor - Ste 405
| Size | 2,675 SF |
| Term | Negotiable |
| Rental Rate | Upon Request |
| Space Use | Office |
| Condition | Spec Suite |
| Available | Now |
Market-ready suite featuring four perimeter offices, a glass conference room, a break room, and an open area.
- Fits 7 - 22 People
- Can be combined with additional space(s) for up to 8,817 SF of adjacent space
5000 Birch St - 4th Floor - Ste 420
| Size | 2,853 SF |
| Term | Negotiable |
| Rental Rate | Upon Request |
| Space Use | Office |
| Condition | Spec Suite |
| Available | Now |
Market-ready creative spec suite featuring a glass conference room, two offices, an open break area, and a large open area.
- Open Floor Plan Layout
- Fits 8 - 23 People
- 2 Private Offices
- 1 Conference Room
- 14 Workstations
- Space is in Excellent Condition
- Can be combined with additional space(s) for up to 8,817 SF of adjacent space
- Central Air Conditioning
- Print/Copy Room
5000 Birch St - 4th Floor - Ste 440
| Size | 3,289 SF |
| Term | Negotiable |
| Rental Rate | Upon Request |
| Space Use | Office |
| Condition | - |
| Available | July 01, 2026 |
Corner suite with expansive glass line, conference room, 2 offices, break room, and open space.
- Fits 9 - 27 People
- Can be combined with additional space(s) for up to 8,817 SF of adjacent space
5000 Birch St - 5th Floor - Ste 550
| Size | 8,574 SF |
| Term | Negotiable |
| Rental Rate | Upon Request |
| Space Use | Office |
| Condition | - |
| Available | Now |
Dedicated reception, large conference room, seven perimeter offices, break room, work room, telco room, and large open area.
- Mostly Open Floor Plan Layout
- Fits 22 - 69 People
- 7 Private Offices
- 1 Conference Room
- Reception Area
- Kitchen
5000 Birch St - 5th Floor - Ste 5000
| Size | 9,918 SF |
| Term | Negotiable |
| Rental Rate | Upon Request |
| Space Use | Office |
| Condition | Full Build-Out |
| Available | Now |
Double door entry off elevator featuring a large conference room, 12 offices, and a large open area.
- Fits 25 - 80 People
- 12 Private Offices
- 1 Conference Room
5000 Birch St - 6th Floor - Ste 6050
| Size | 3,863 SF |
| Term | Negotiable |
| Rental Rate | Upon Request |
| Space Use | Office |
| Condition | - |
| Available | December 01, 2026 |
7 perimeter offices and open area.
- Fits 10 - 31 People
5000 Birch St - 7th Floor - Ste 7000
| Size | 6,076 SF |
| Term | Negotiable |
| Rental Rate | Upon Request |
| Space Use | Office |
| Condition | Full Build-Out |
| Available | Now |
Double door entry off elevator featuring dedicated reception, large break room, nine perimeter offices, work room, storage, and open area.
- Fully Built-Out as Standard Office
- Fits 16 - 49 People
- 9 Private Offices
- Conference Rooms
- Can be combined with additional space(s) for up to 7,182 SF of adjacent space
- Reception Area
- Kitchen
5000 Birch St - 7th Floor - Ste 7800
| Size | 1,106 SF |
| Term | Negotiable |
| Rental Rate | Upon Request |
| Space Use | Office |
| Condition | Shell Space |
| Available | Now |
Suite is in design ready, shell condition.
- Can be combined with additional space(s) for up to 7,182 SF of adjacent space
5000 Birch St - 8th Floor - Ste 8500
| Size | 13,139 SF |
| Term | Negotiable |
| Rental Rate | Upon Request |
| Space Use | Office |
| Condition | - |
| Available | December 01, 2026 |
Double door entry off elevator with picturesque views.
- Rate includes utilities, building services and property expenses
- Fits 33 - 106 People
5000 Birch St - 9th Floor - Ste 9000
| Size | 5,551 SF |
| Term | Negotiable |
| Rental Rate | Upon Request |
| Space Use | Office |
| Condition | Full Build-Out |
| Available | Now |
Highly creative suite featuring double door entry off elevator, two large glass conference rooms, open break room, three private offices, two huddle rooms and large open area with panoramic views.
- Fully Built-Out as Standard Office
- Fits 14 - 45 People
- 3 Private Offices
- 4 Conference Rooms
- Can be combined with additional space(s) for up to 8,338 SF of adjacent space
5000 Birch St - 9th Floor - Ste 9200
| Size | 5,572 SF |
| Term | Negotiable |
| Rental Rate | Upon Request |
| Space Use | Office |
| Condition | - |
| Available | Now |
Conference room, 8 offices, kitchen and open space.
- Fits 14 - 45 People
- 8 Private Offices
- Space is in Excellent Condition
5000 Birch St - 9th Floor - Ste 9500
| Size | 2,787 SF |
| Term | Negotiable |
| Rental Rate | Upon Request |
| Space Use | Office |
| Condition | Full Build-Out |
| Available | Now |
Conference room, six offices, and break room.
- Rate includes utilities, building services and property expenses
- Fully Built-Out as Standard Office
- Fits 7 - 23 People
- 6 Private Offices
- 1 Conference Room
- Can be combined with additional space(s) for up to 8,338 SF of adjacent space
5000 Birch St - 10th Floor - Ste 1000
| Size | 20,392 SF |
| Term | Negotiable |
| Rental Rate | Upon Request |
| Space Use | Office |
| Condition | Full Build-Out |
| Available | Now |
-Highly improved full-floor penthouse space with panoramic views -The only high-rise penthouse space available in Newport Beach -Offering building top signage -Panoramic views -VIP parking in the adjacent structure and convenient surface parking -Available immediately and ready for immediate occupancy
- Office intensive layout
- Fits 51 - 164 People
- Space is in Excellent Condition
Select Tenants at This Property
- Floor
- Tenant Name
- Industry
- 6th
- DTA
- -
- 10th
- FCA US LLC
- -
- 8th
- Harvey & Company LLC
- Finance and Insurance
- 8th
- Pence Wealth Management
- -
- 9th
- The Shipyard
- -
- 4th
- Vega Americas, Inc
- -
Park Overview
Koll Center Newport West Tower at 5000 Birch Street is a two-building Class A office project featuring a reflective glass-and-steel façade mirroring the beautiful Newport Beach landscape. An interior walkway connects the West Tower to the East Tower. A magnificent outdoor courtyard is equipped with an abundance of seating and pergolas, lushly landscaped for unrivaled ambiance. The grounds are thoughtfully curated and maintained with gardens, sidewalks, and pedestrian crosswalks, establishing the project’s superior design before entering the buildings. Tenants, employees, and visitors are greeted with an articulately constructed lobby with modern, high-end finishes. Moreover, the structures achieved the BOMA 360 designation in 2014 and hold both LEED Gold certification (since September 2018) and Energy Star 85 Points (as of November 2024). Ideally positioned in the heart of Orange County’s prestigious business district, the Koll Center Newport West Tower offers a prime location for companies seeking visibility, convenience, and lifestyle appeal. Located next to the University of California-Irvine, businesses can draw from a vibrant, highly educated community. The property has immediate access to the 73 and 55 Freeways, Interstate 405, and seamless connections to Pacific Coast Highway and Interstate 5, providing direct routes to Southern California’s coastline and the Greater Los Angeles area. John Wayne Airport is less than 4 miles away, making business travel and client visits exceptionally convenient. This location supports productivity and lifestyle as it is surrounded by a wide selection of restaurants, shopping centers, and top-tier lodging options. With world-renowned Southern California beaches such as Newport, Huntington, Laguna, and Balboa just minutes away, this workplace setting blends business with the best of coastal living.
Presented by
Koll Center Newport | Newport Beach, CA 92660
Hmm, there seems to have been an error sending your message. Please try again.
Thanks! Your message was sent.














