Your email has been sent.
Atrium on Bay 595 Bay St 1,618 - 591,243 SF of 4-Star Office Space Available in Toronto, ON M5G 1M6



Highlights
- 530 underground parking stalls.
- Direct PATH access to Dundas Station and Toronto Eaton Centre.
- Turnkey improvement allowances up to $126 PSF.
- One million square feet of integrated office and retail ecosystem.
- Flexible floor plates with contiguous options exceeding 90,000 SF.
- Rooftop patio and premium tenant amenities for work-life balance
All Available Spaces(22)
Display Rental Rate as
- Space
- Size
- Term
- Rental Rate
- Space Use
- Build-Out
- Available
Constructed in 1985, 595 Bay Street (14 floors), 40 Dundas Street W. (9 floors), and 20 Dundas Street W. (15 floors), is collectively 1,060,000 sq. ft Typical floor plate ranges from 25,000 to 90,000 square feet.
- Lease rate does not include utilities, property expenses or building services
- Open Floor Plan Layout
- Can be combined with additional space(s) for up to 132,158 SF of adjacent space
- High Ceilings
- Typical floor plate ranges from 25,000 to 90,000 s
- Partially Built-Out as Standard Office
- Finished Ceilings: 11’9”
- Central Air and Heating
- Atrium is Wired Certified Gold
595 Bay. Double glass door entrance off elevators. Open concept layout with modern bench style seating for 137 people. Features 2 boardrooms, 6 office/meeting rooms on glass overlooking atrium, a kitchenette with seating area, print/copy rooms, and LAN room. Contiguous with suites 403, 421B, and 502 for a total of 78,961 sq. ft. VT: https://cbre.qumucloud.com/view/595-Bay-Atrium-Suite-300B#/
- Lease rate does not include utilities, property expenses or building services
- Open Floor Plan Layout
- Can be combined with additional space(s) for up to 132,158 SF of adjacent space
- High Ceilings
- Typical floor plate ranges from 25,000 to 90,000 s
- Partially Built-Out as Standard Office
- Finished Ceilings: 11’9”
- Central Air and Heating
- Atrium is Wired Certified Gold
- Lease rate does not include utilities, property expenses or building services
- Mostly Open Floor Plan Layout
- Fully Built-Out as Standard Office
- Lease rate does not include utilities, property expenses or building services
- Open Floor Plan Layout
- Fully Built-Out as Standard Office
- Can be combined with additional space(s) for up to 132,158 SF of adjacent space
- Lease rate does not include utilities, property expenses or building services
- Open Floor Plan Layout
- Fully Built-Out as Standard Office
3D Video Tour: https://cbre.qumucloud.com/view/595-Bay-Atrium-Suite-403#/
- Lease rate does not include utilities, property expenses or building services
- Open Floor Plan Layout
- Fully Built-Out as Standard Office
- 3 Conference Rooms
Constructed in 1985, 595 Bay Street (14 floors), 40 Dundas Street W. (9 floors), and 20 Dundas Street W. (15 floors), is collectively 1,060,000 sq. ft Typical floor plate ranges from 25,000 to 90,000 square feet.
- Lease rate does not include utilities, property expenses or building services
- Open Floor Plan Layout
- Can be combined with additional space(s) for up to 241,569 SF of adjacent space
- High Ceilings
- Typical floor plate ranges from 25,000 to 90,000 s
- Partially Built-Out as Standard Office
- Finished Ceilings: 11’9”
- Central Air and Heating
- Atrium is Wired Certified Gold
- Lease rate does not include utilities, property expenses or building services
- Mostly Open Floor Plan Layout
- Fully Built-Out as Standard Office
- Can be combined with additional space(s) for up to 241,569 SF of adjacent space
- Lease rate does not include utilities, property expenses or building services
- Open Floor Plan Layout
- Fully Built-Out as Standard Office
- Can be combined with additional space(s) for up to 241,569 SF of adjacent space
- Lease rate does not include utilities, property expenses or building services
- Open Floor Plan Layout
- Fully Built-Out as Standard Office
- Can be combined with additional space(s) for up to 241,569 SF of adjacent space
Constructed in 1985, 595 Bay Street (14 floors), 40 Dundas Street W. (9 floors), and 20 Dundas Street W. (15 floors), is collectively 1,060,000 sq. ft Typical floor plate ranges from 25,000 to 90,000 square feet.
- Lease rate does not include utilities, property expenses or building services
- Open Floor Plan Layout
- Central Air and Heating
- Atrium is Wired Certified Gold
- Partially Built-Out as Standard Office
- Finished Ceilings: 11’9”
- High Ceilings
- Typical floor plate ranges from 25,000 to 90,000 s
Constructed in 1985, 595 Bay Street (14 floors), 40 Dundas Street W. (9 floors), and 20 Dundas Street W. (15 floors), is collectively 1,060,000 sq. ft Typical floor plate ranges from 25,000 to 90,000 square feet.
- Lease rate does not include utilities, property expenses or building services
- Open Floor Plan Layout
- Can be combined with additional space(s) for up to 76,271 SF of adjacent space
- High Ceilings
- Typical floor plate ranges from 25,000 to 90,000 s
- Partially Built-Out as Standard Office
- Finished Ceilings: 11’9”
- Central Air and Heating
- Atrium is Wired Certified Gold
- Lease rate does not include utilities, property expenses or building services
- Open Floor Plan Layout
- Fully Built-Out as Standard Office
- Can be combined with additional space(s) for up to 76,271 SF of adjacent space
- Lease rate does not include utilities, property expenses or building services
- Open Floor Plan Layout
- Fully Built-Out as Standard Office
- Can be combined with additional space(s) for up to 76,271 SF of adjacent space
- Lease rate does not include utilities, property expenses or building services
- Mostly Open Floor Plan Layout
- Fully Built-Out as Standard Office
- Can be combined with additional space(s) for up to 76,271 SF of adjacent space
- Lease rate does not include utilities, property expenses or building services
- Mostly Open Floor Plan Layout
- Fully Built-Out as Standard Office
Constructed in 1985, 595 Bay Street (14 floors), 40 Dundas Street W. (9 floors), and 20 Dundas Street W. (15 floors), is collectively 1,060,000 sq. ft Typical floor plate ranges from 25,000 to 90,000 square feet.
- Lease rate does not include utilities, property expenses or building services
- Open Floor Plan Layout
- Central Air and Heating
- Atrium is Wired Certified Gold
- Partially Built-Out as Standard Office
- Finished Ceilings: 11’9”
- High Ceilings
- Typical floor plate ranges from 25,000 to 90,000 s
595 Bay. Reception area with double glass door entrance off elevators. Features 5 boardrooms for 10 people each, and a large training room with 5 round tables directly off reception. The remainder of the suite is predominately open concept (168 seats), with a few offices/meeting rooms, a kitchenette with seating area, LAN room, and a print/copy room. East side of the suite overlooks the rooftop garden. All furniture including data cabling available at no cost. VT: https://cbre.qumucloud.com/view/595-Bay-Atrium-Suite-1100#/
- Lease rate does not include utilities, property expenses or building services
- Open Floor Plan Layout
- Central Air and Heating
- Atrium is Wired Certified Gold
- Partially Built-Out as Standard Office
- Finished Ceilings: 11’9”
- High Ceilings
- Typical floor plate ranges from 25,000 to 90,000 s
Constructed in 1985, 595 Bay Street (14 floors), 40 Dundas Street W. (9 floors), and 20 Dundas Street W. (15 floors), is collectively 1,060,000 sq. ft Typical floor plate ranges from 25,000 to 90,000 square feet.
- Lease rate does not include utilities, property expenses or building services
- Open Floor Plan Layout
- Central Air and Heating
- Atrium is Wired Certified Gold
- Partially Built-Out as Standard Office
- Finished Ceilings: 11’9”
- High Ceilings
- Typical floor plate ranges from 25,000 to 90,000 s
- Lease rate does not include utilities, property expenses or building services
- Open Floor Plan Layout
- Fully Built-Out as Standard Office
595 Bay. Full floor opportunity with reception and large café off elevators. Features 3 boardrooms with removeable partitions, 2 large training/team rooms, and a few additional offices/meeting rooms. Also includes workstations for 204 people, 2nd kitchenette with seating, multiple print/copy rooms, and soft seating throughout. North East corner views of rooftop garden. All furniture including data cabling available at no cost. VT: https://cbre.qumucloud.com/view/595-Bay-Atrium-Suite-1400#/
- Lease rate does not include utilities, property expenses or building services
- Open Floor Plan Layout
- Central Air and Heating
- Atrium is Wired Certified Gold
- Partially Built-Out as Standard Office
- Finished Ceilings: 11’9”
- High Ceilings
- Typical floor plate ranges from 25,000 to 90,000 s
Constructed in 1985, 595 Bay Street (14 floors), 40 Dundas Street W. (9 floors), and 20 Dundas Street W. (15 floors), is collectively 1,060,000 sq. ft Typical floor plate ranges from 25,000 to 90,000 square feet.
- Lease rate does not include utilities, property expenses or building services
- Open Floor Plan Layout
- Central Air and Heating
- Atrium is Wired Certified Gold
- Partially Built-Out as Standard Office
- Finished Ceilings: 11’9”
- High Ceilings
- Typical floor plate ranges from 25,000 to 90,000 s
| Space | Size | Term | Rental Rate | Space Use | Build-Out | Available |
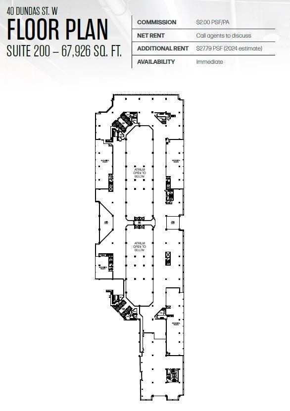
| 2nd Floor, Ste 200 | 67,926 SF | 1-10 Years | Upon Request Upon Request Upon Request Upon Request | Office | Partial Build-Out | Now |
| 3rd Floor, Ste 300B | 17,099 SF | 1-10 Years | Upon Request Upon Request Upon Request Upon Request | Office | Partial Build-Out | Now |
| 3rd Floor, Ste 323 | 2,439 SF | 1-10 Years | Upon Request Upon Request Upon Request Upon Request | Office | Full Build-Out | Now |
| 3rd Floor, Ste 331 | 47,133 SF | Negotiable | Upon Request Upon Request Upon Request Upon Request | Office | Full Build-Out | Now |
| 4th Floor, Ste 401 | 4,910 SF | Negotiable | Upon Request Upon Request Upon Request Upon Request | Office | Full Build-Out | Now |
| 4th Floor, Ste 403 | 12,419 SF | Negotiable | Upon Request Upon Request Upon Request Upon Request | Office | Full Build-Out | November 01, 2026 |
| 5th Floor, Ste 500 | 68,295 SF | 1-10 Years | Upon Request Upon Request Upon Request Upon Request | Office | Partial Build-Out | Now |
| 5th Floor, Ste 530 | 22,380 SF | 1-10 Years | Upon Request Upon Request Upon Request Upon Request | Office | Full Build-Out | September 01, 2026 |
| 6th Floor, Ste 600 | 91,241 SF | Negotiable | Upon Request Upon Request Upon Request Upon Request | Office | Full Build-Out | November 01, 2027 |
| 7th Floor, Ste 700 | 59,653 SF | Negotiable | Upon Request Upon Request Upon Request Upon Request | Office | Full Build-Out | November 01, 2026 |
| 8th Floor, Ste 804 | 11,009 SF | 1-10 Years | Upon Request Upon Request Upon Request Upon Request | Office | Partial Build-Out | Now |
| 9th Floor, Ste 900 | 59,279 SF | 1-10 Years | Upon Request Upon Request Upon Request Upon Request | Office | Partial Build-Out | Now |
| 9th Floor, Ste 900A | 7,594 SF | Negotiable | Upon Request Upon Request Upon Request Upon Request | Office | Full Build-Out | Now |
| 9th Floor, Ste 900B | 4,624 SF | Negotiable | Upon Request Upon Request Upon Request Upon Request | Office | Full Build-Out | Now |
| 9th Floor, Ste 910 | 4,774 SF | 1-10 Years | Upon Request Upon Request Upon Request Upon Request | Office | Full Build-Out | Now |
| 10th Floor, Ste 1030 | 10,033 SF | 1-10 Years | Upon Request Upon Request Upon Request Upon Request | Office | Full Build-Out | September 01, 2027 |
| 10th Floor, Ste 1036 | 5,114 SF | 1-10 Years | Upon Request Upon Request Upon Request Upon Request | Office | Partial Build-Out | Now |
| 11th Floor, Ste 1100 | 23,126 SF | 1-10 Years | Upon Request Upon Request Upon Request Upon Request | Office | Partial Build-Out | Now |
| 12th Floor, Ste 1200 | 11,410 SF | 1-10 Years | Upon Request Upon Request Upon Request Upon Request | Office | Partial Build-Out | Now |
| 12th Floor, Ste 1204 | 1,618 SF | Negotiable | Upon Request Upon Request Upon Request Upon Request | Office | Full Build-Out | Now |
| 14th Floor, Ste 1400 | 31,716 SF | 1-10 Years | Upon Request Upon Request Upon Request Upon Request | Office | Partial Build-Out | Now |
| 14th Floor, Ste 1401 | 27,451 SF | 1-10 Years | Upon Request Upon Request Upon Request Upon Request | Office | Partial Build-Out | Now |
2nd Floor, Ste 200
| Size |
| 67,926 SF |
| Term |
| 1-10 Years |
| Rental Rate |
| Upon Request Upon Request Upon Request Upon Request |
| Space Use |
| Office |
| Build-Out |
| Partial Build-Out |
| Available |
| Now |
3rd Floor, Ste 300B
| Size |
| 17,099 SF |
| Term |
| 1-10 Years |
| Rental Rate |
| Upon Request Upon Request Upon Request Upon Request |
| Space Use |
| Office |
| Build-Out |
| Partial Build-Out |
| Available |
| Now |
3rd Floor, Ste 323
| Size |
| 2,439 SF |
| Term |
| 1-10 Years |
| Rental Rate |
| Upon Request Upon Request Upon Request Upon Request |
| Space Use |
| Office |
| Build-Out |
| Full Build-Out |
| Available |
| Now |
3rd Floor, Ste 331
| Size |
| 47,133 SF |
| Term |
| Negotiable |
| Rental Rate |
| Upon Request Upon Request Upon Request Upon Request |
| Space Use |
| Office |
| Build-Out |
| Full Build-Out |
| Available |
| Now |
4th Floor, Ste 401
| Size |
| 4,910 SF |
| Term |
| Negotiable |
| Rental Rate |
| Upon Request Upon Request Upon Request Upon Request |
| Space Use |
| Office |
| Build-Out |
| Full Build-Out |
| Available |
| Now |
4th Floor, Ste 403
| Size |
| 12,419 SF |
| Term |
| Negotiable |
| Rental Rate |
| Upon Request Upon Request Upon Request Upon Request |
| Space Use |
| Office |
| Build-Out |
| Full Build-Out |
| Available |
| November 01, 2026 |
5th Floor, Ste 500
| Size |
| 68,295 SF |
| Term |
| 1-10 Years |
| Rental Rate |
| Upon Request Upon Request Upon Request Upon Request |
| Space Use |
| Office |
| Build-Out |
| Partial Build-Out |
| Available |
| Now |
5th Floor, Ste 530
| Size |
| 22,380 SF |
| Term |
| 1-10 Years |
| Rental Rate |
| Upon Request Upon Request Upon Request Upon Request |
| Space Use |
| Office |
| Build-Out |
| Full Build-Out |
| Available |
| September 01, 2026 |
6th Floor, Ste 600
| Size |
| 91,241 SF |
| Term |
| Negotiable |
| Rental Rate |
| Upon Request Upon Request Upon Request Upon Request |
| Space Use |
| Office |
| Build-Out |
| Full Build-Out |
| Available |
| November 01, 2027 |
7th Floor, Ste 700
| Size |
| 59,653 SF |
| Term |
| Negotiable |
| Rental Rate |
| Upon Request Upon Request Upon Request Upon Request |
| Space Use |
| Office |
| Build-Out |
| Full Build-Out |
| Available |
| November 01, 2026 |
8th Floor, Ste 804
| Size |
| 11,009 SF |
| Term |
| 1-10 Years |
| Rental Rate |
| Upon Request Upon Request Upon Request Upon Request |
| Space Use |
| Office |
| Build-Out |
| Partial Build-Out |
| Available |
| Now |
9th Floor, Ste 900
| Size |
| 59,279 SF |
| Term |
| 1-10 Years |
| Rental Rate |
| Upon Request Upon Request Upon Request Upon Request |
| Space Use |
| Office |
| Build-Out |
| Partial Build-Out |
| Available |
| Now |
9th Floor, Ste 900A
| Size |
| 7,594 SF |
| Term |
| Negotiable |
| Rental Rate |
| Upon Request Upon Request Upon Request Upon Request |
| Space Use |
| Office |
| Build-Out |
| Full Build-Out |
| Available |
| Now |
9th Floor, Ste 900B
| Size |
| 4,624 SF |
| Term |
| Negotiable |
| Rental Rate |
| Upon Request Upon Request Upon Request Upon Request |
| Space Use |
| Office |
| Build-Out |
| Full Build-Out |
| Available |
| Now |
9th Floor, Ste 910
| Size |
| 4,774 SF |
| Term |
| 1-10 Years |
| Rental Rate |
| Upon Request Upon Request Upon Request Upon Request |
| Space Use |
| Office |
| Build-Out |
| Full Build-Out |
| Available |
| Now |
10th Floor, Ste 1030
| Size |
| 10,033 SF |
| Term |
| 1-10 Years |
| Rental Rate |
| Upon Request Upon Request Upon Request Upon Request |
| Space Use |
| Office |
| Build-Out |
| Full Build-Out |
| Available |
| September 01, 2027 |
10th Floor, Ste 1036
| Size |
| 5,114 SF |
| Term |
| 1-10 Years |
| Rental Rate |
| Upon Request Upon Request Upon Request Upon Request |
| Space Use |
| Office |
| Build-Out |
| Partial Build-Out |
| Available |
| Now |
11th Floor, Ste 1100
| Size |
| 23,126 SF |
| Term |
| 1-10 Years |
| Rental Rate |
| Upon Request Upon Request Upon Request Upon Request |
| Space Use |
| Office |
| Build-Out |
| Partial Build-Out |
| Available |
| Now |
12th Floor, Ste 1200
| Size |
| 11,410 SF |
| Term |
| 1-10 Years |
| Rental Rate |
| Upon Request Upon Request Upon Request Upon Request |
| Space Use |
| Office |
| Build-Out |
| Partial Build-Out |
| Available |
| Now |
12th Floor, Ste 1204
| Size |
| 1,618 SF |
| Term |
| Negotiable |
| Rental Rate |
| Upon Request Upon Request Upon Request Upon Request |
| Space Use |
| Office |
| Build-Out |
| Full Build-Out |
| Available |
| Now |
14th Floor, Ste 1400
| Size |
| 31,716 SF |
| Term |
| 1-10 Years |
| Rental Rate |
| Upon Request Upon Request Upon Request Upon Request |
| Space Use |
| Office |
| Build-Out |
| Partial Build-Out |
| Available |
| Now |
14th Floor, Ste 1401
| Size |
| 27,451 SF |
| Term |
| 1-10 Years |
| Rental Rate |
| Upon Request Upon Request Upon Request Upon Request |
| Space Use |
| Office |
| Build-Out |
| Partial Build-Out |
| Available |
| Now |
2nd Floor, Ste 200
| Size | 67,926 SF |
| Term | 1-10 Years |
| Rental Rate | Upon Request |
| Space Use | Office |
| Build-Out | Partial Build-Out |
| Available | Now |
Constructed in 1985, 595 Bay Street (14 floors), 40 Dundas Street W. (9 floors), and 20 Dundas Street W. (15 floors), is collectively 1,060,000 sq. ft Typical floor plate ranges from 25,000 to 90,000 square feet.
- Lease rate does not include utilities, property expenses or building services
- Partially Built-Out as Standard Office
- Open Floor Plan Layout
- Finished Ceilings: 11’9”
- Can be combined with additional space(s) for up to 132,158 SF of adjacent space
- Central Air and Heating
- High Ceilings
- Atrium is Wired Certified Gold
- Typical floor plate ranges from 25,000 to 90,000 s
3rd Floor, Ste 300B
| Size | 17,099 SF |
| Term | 1-10 Years |
| Rental Rate | Upon Request |
| Space Use | Office |
| Build-Out | Partial Build-Out |
| Available | Now |
595 Bay. Double glass door entrance off elevators. Open concept layout with modern bench style seating for 137 people. Features 2 boardrooms, 6 office/meeting rooms on glass overlooking atrium, a kitchenette with seating area, print/copy rooms, and LAN room. Contiguous with suites 403, 421B, and 502 for a total of 78,961 sq. ft. VT: https://cbre.qumucloud.com/view/595-Bay-Atrium-Suite-300B#/
- Lease rate does not include utilities, property expenses or building services
- Partially Built-Out as Standard Office
- Open Floor Plan Layout
- Finished Ceilings: 11’9”
- Can be combined with additional space(s) for up to 132,158 SF of adjacent space
- Central Air and Heating
- High Ceilings
- Atrium is Wired Certified Gold
- Typical floor plate ranges from 25,000 to 90,000 s
3rd Floor, Ste 323
| Size | 2,439 SF |
| Term | 1-10 Years |
| Rental Rate | Upon Request |
| Space Use | Office |
| Build-Out | Full Build-Out |
| Available | Now |
- Lease rate does not include utilities, property expenses or building services
- Fully Built-Out as Standard Office
- Mostly Open Floor Plan Layout
3rd Floor, Ste 331
| Size | 47,133 SF |
| Term | Negotiable |
| Rental Rate | Upon Request |
| Space Use | Office |
| Build-Out | Full Build-Out |
| Available | Now |
- Lease rate does not include utilities, property expenses or building services
- Fully Built-Out as Standard Office
- Open Floor Plan Layout
- Can be combined with additional space(s) for up to 132,158 SF of adjacent space
4th Floor, Ste 401
| Size | 4,910 SF |
| Term | Negotiable |
| Rental Rate | Upon Request |
| Space Use | Office |
| Build-Out | Full Build-Out |
| Available | Now |
- Lease rate does not include utilities, property expenses or building services
- Fully Built-Out as Standard Office
- Open Floor Plan Layout
4th Floor, Ste 403
| Size | 12,419 SF |
| Term | Negotiable |
| Rental Rate | Upon Request |
| Space Use | Office |
| Build-Out | Full Build-Out |
| Available | November 01, 2026 |
3D Video Tour: https://cbre.qumucloud.com/view/595-Bay-Atrium-Suite-403#/
- Lease rate does not include utilities, property expenses or building services
- Fully Built-Out as Standard Office
- Open Floor Plan Layout
- 3 Conference Rooms
5th Floor, Ste 500
| Size | 68,295 SF |
| Term | 1-10 Years |
| Rental Rate | Upon Request |
| Space Use | Office |
| Build-Out | Partial Build-Out |
| Available | Now |
Constructed in 1985, 595 Bay Street (14 floors), 40 Dundas Street W. (9 floors), and 20 Dundas Street W. (15 floors), is collectively 1,060,000 sq. ft Typical floor plate ranges from 25,000 to 90,000 square feet.
- Lease rate does not include utilities, property expenses or building services
- Partially Built-Out as Standard Office
- Open Floor Plan Layout
- Finished Ceilings: 11’9”
- Can be combined with additional space(s) for up to 241,569 SF of adjacent space
- Central Air and Heating
- High Ceilings
- Atrium is Wired Certified Gold
- Typical floor plate ranges from 25,000 to 90,000 s
5th Floor, Ste 530
| Size | 22,380 SF |
| Term | 1-10 Years |
| Rental Rate | Upon Request |
| Space Use | Office |
| Build-Out | Full Build-Out |
| Available | September 01, 2026 |
- Lease rate does not include utilities, property expenses or building services
- Fully Built-Out as Standard Office
- Mostly Open Floor Plan Layout
- Can be combined with additional space(s) for up to 241,569 SF of adjacent space
6th Floor, Ste 600
| Size | 91,241 SF |
| Term | Negotiable |
| Rental Rate | Upon Request |
| Space Use | Office |
| Build-Out | Full Build-Out |
| Available | November 01, 2027 |
- Lease rate does not include utilities, property expenses or building services
- Fully Built-Out as Standard Office
- Open Floor Plan Layout
- Can be combined with additional space(s) for up to 241,569 SF of adjacent space
7th Floor, Ste 700
| Size | 59,653 SF |
| Term | Negotiable |
| Rental Rate | Upon Request |
| Space Use | Office |
| Build-Out | Full Build-Out |
| Available | November 01, 2026 |
- Lease rate does not include utilities, property expenses or building services
- Fully Built-Out as Standard Office
- Open Floor Plan Layout
- Can be combined with additional space(s) for up to 241,569 SF of adjacent space
8th Floor, Ste 804
| Size | 11,009 SF |
| Term | 1-10 Years |
| Rental Rate | Upon Request |
| Space Use | Office |
| Build-Out | Partial Build-Out |
| Available | Now |
Constructed in 1985, 595 Bay Street (14 floors), 40 Dundas Street W. (9 floors), and 20 Dundas Street W. (15 floors), is collectively 1,060,000 sq. ft Typical floor plate ranges from 25,000 to 90,000 square feet.
- Lease rate does not include utilities, property expenses or building services
- Partially Built-Out as Standard Office
- Open Floor Plan Layout
- Finished Ceilings: 11’9”
- Central Air and Heating
- High Ceilings
- Atrium is Wired Certified Gold
- Typical floor plate ranges from 25,000 to 90,000 s
9th Floor, Ste 900
| Size | 59,279 SF |
| Term | 1-10 Years |
| Rental Rate | Upon Request |
| Space Use | Office |
| Build-Out | Partial Build-Out |
| Available | Now |
Constructed in 1985, 595 Bay Street (14 floors), 40 Dundas Street W. (9 floors), and 20 Dundas Street W. (15 floors), is collectively 1,060,000 sq. ft Typical floor plate ranges from 25,000 to 90,000 square feet.
- Lease rate does not include utilities, property expenses or building services
- Partially Built-Out as Standard Office
- Open Floor Plan Layout
- Finished Ceilings: 11’9”
- Can be combined with additional space(s) for up to 76,271 SF of adjacent space
- Central Air and Heating
- High Ceilings
- Atrium is Wired Certified Gold
- Typical floor plate ranges from 25,000 to 90,000 s
9th Floor, Ste 900A
| Size | 7,594 SF |
| Term | Negotiable |
| Rental Rate | Upon Request |
| Space Use | Office |
| Build-Out | Full Build-Out |
| Available | Now |
- Lease rate does not include utilities, property expenses or building services
- Fully Built-Out as Standard Office
- Open Floor Plan Layout
- Can be combined with additional space(s) for up to 76,271 SF of adjacent space
9th Floor, Ste 900B
| Size | 4,624 SF |
| Term | Negotiable |
| Rental Rate | Upon Request |
| Space Use | Office |
| Build-Out | Full Build-Out |
| Available | Now |
- Lease rate does not include utilities, property expenses or building services
- Fully Built-Out as Standard Office
- Open Floor Plan Layout
- Can be combined with additional space(s) for up to 76,271 SF of adjacent space
9th Floor, Ste 910
| Size | 4,774 SF |
| Term | 1-10 Years |
| Rental Rate | Upon Request |
| Space Use | Office |
| Build-Out | Full Build-Out |
| Available | Now |
- Lease rate does not include utilities, property expenses or building services
- Fully Built-Out as Standard Office
- Mostly Open Floor Plan Layout
- Can be combined with additional space(s) for up to 76,271 SF of adjacent space
10th Floor, Ste 1030
| Size | 10,033 SF |
| Term | 1-10 Years |
| Rental Rate | Upon Request |
| Space Use | Office |
| Build-Out | Full Build-Out |
| Available | September 01, 2027 |
- Lease rate does not include utilities, property expenses or building services
- Fully Built-Out as Standard Office
- Mostly Open Floor Plan Layout
10th Floor, Ste 1036
| Size | 5,114 SF |
| Term | 1-10 Years |
| Rental Rate | Upon Request |
| Space Use | Office |
| Build-Out | Partial Build-Out |
| Available | Now |
Constructed in 1985, 595 Bay Street (14 floors), 40 Dundas Street W. (9 floors), and 20 Dundas Street W. (15 floors), is collectively 1,060,000 sq. ft Typical floor plate ranges from 25,000 to 90,000 square feet.
- Lease rate does not include utilities, property expenses or building services
- Partially Built-Out as Standard Office
- Open Floor Plan Layout
- Finished Ceilings: 11’9”
- Central Air and Heating
- High Ceilings
- Atrium is Wired Certified Gold
- Typical floor plate ranges from 25,000 to 90,000 s
11th Floor, Ste 1100
| Size | 23,126 SF |
| Term | 1-10 Years |
| Rental Rate | Upon Request |
| Space Use | Office |
| Build-Out | Partial Build-Out |
| Available | Now |
595 Bay. Reception area with double glass door entrance off elevators. Features 5 boardrooms for 10 people each, and a large training room with 5 round tables directly off reception. The remainder of the suite is predominately open concept (168 seats), with a few offices/meeting rooms, a kitchenette with seating area, LAN room, and a print/copy room. East side of the suite overlooks the rooftop garden. All furniture including data cabling available at no cost. VT: https://cbre.qumucloud.com/view/595-Bay-Atrium-Suite-1100#/
- Lease rate does not include utilities, property expenses or building services
- Partially Built-Out as Standard Office
- Open Floor Plan Layout
- Finished Ceilings: 11’9”
- Central Air and Heating
- High Ceilings
- Atrium is Wired Certified Gold
- Typical floor plate ranges from 25,000 to 90,000 s
12th Floor, Ste 1200
| Size | 11,410 SF |
| Term | 1-10 Years |
| Rental Rate | Upon Request |
| Space Use | Office |
| Build-Out | Partial Build-Out |
| Available | Now |
Constructed in 1985, 595 Bay Street (14 floors), 40 Dundas Street W. (9 floors), and 20 Dundas Street W. (15 floors), is collectively 1,060,000 sq. ft Typical floor plate ranges from 25,000 to 90,000 square feet.
- Lease rate does not include utilities, property expenses or building services
- Partially Built-Out as Standard Office
- Open Floor Plan Layout
- Finished Ceilings: 11’9”
- Central Air and Heating
- High Ceilings
- Atrium is Wired Certified Gold
- Typical floor plate ranges from 25,000 to 90,000 s
12th Floor, Ste 1204
| Size | 1,618 SF |
| Term | Negotiable |
| Rental Rate | Upon Request |
| Space Use | Office |
| Build-Out | Full Build-Out |
| Available | Now |
- Lease rate does not include utilities, property expenses or building services
- Fully Built-Out as Standard Office
- Open Floor Plan Layout
14th Floor, Ste 1400
| Size | 31,716 SF |
| Term | 1-10 Years |
| Rental Rate | Upon Request |
| Space Use | Office |
| Build-Out | Partial Build-Out |
| Available | Now |
595 Bay. Full floor opportunity with reception and large café off elevators. Features 3 boardrooms with removeable partitions, 2 large training/team rooms, and a few additional offices/meeting rooms. Also includes workstations for 204 people, 2nd kitchenette with seating, multiple print/copy rooms, and soft seating throughout. North East corner views of rooftop garden. All furniture including data cabling available at no cost. VT: https://cbre.qumucloud.com/view/595-Bay-Atrium-Suite-1400#/
- Lease rate does not include utilities, property expenses or building services
- Partially Built-Out as Standard Office
- Open Floor Plan Layout
- Finished Ceilings: 11’9”
- Central Air and Heating
- High Ceilings
- Atrium is Wired Certified Gold
- Typical floor plate ranges from 25,000 to 90,000 s
14th Floor, Ste 1401
| Size | 27,451 SF |
| Term | 1-10 Years |
| Rental Rate | Upon Request |
| Space Use | Office |
| Build-Out | Partial Build-Out |
| Available | Now |
Constructed in 1985, 595 Bay Street (14 floors), 40 Dundas Street W. (9 floors), and 20 Dundas Street W. (15 floors), is collectively 1,060,000 sq. ft Typical floor plate ranges from 25,000 to 90,000 square feet.
- Lease rate does not include utilities, property expenses or building services
- Partially Built-Out as Standard Office
- Open Floor Plan Layout
- Finished Ceilings: 11’9”
- Central Air and Heating
- High Ceilings
- Atrium is Wired Certified Gold
- Typical floor plate ranges from 25,000 to 90,000 s
Property Overview
Atrium at 595 Bay Street offers an unparalleled office experience in the heart of Toronto’s vibrant downtown core. This iconic Class A property spans over one million square feet of office and retail space, creating a dynamic ecosystem where business thrives. Featuring three interconnected towers with soaring multi-level atriums, Atrium delivers abundant natural light and flexible floor plates, including contiguous options up to 91,241 square feet, ideal for large-scale operations or phased growth strategies. Tenants benefit from direct PATH access to Dundas Station and a two-minute walk to Toronto Eaton Centre, ensuring seamless connectivity to transit and premier retail amenities. The property’s strategic location places you minutes from Union Station and major highways, while Billy Bishop Airport is just a short drive away. Atrium’s amenity-rich environment includes rooftop patios, a curated food hall, and a diverse mix of restaurants, shops, and services—all under one roof. With turnkey improvement allowances up to $126 PSF and a streamlined five-step customization process, Atrium empowers businesses to tailor their space for maximum efficiency and brand impact.
- Atrium
- Bus Line
- Food Court
- Metro/Subway
- Roof Terrace
- PATH
- Car Charging Station
- Bicycle Storage
- Air Conditioning
- On-Site Security Staff
Property Facts
Select Tenants
- Floor
- Tenant Name
- Industry
- Multiple
- CIBC
- Finance and Insurance
- 11th
- Hoffer Adler LLP
- Professional, Scientific, and Technical Services
- 7th
- Legal Aid Ontario
- Professional, Scientific, and Technical Services
- Multiple
- Ministry of the Attorney General (Ontario)
- Public Administration
- 15th
- Office of the Auditor General of Ontario
- Public Administration
- 10th
- Office Of The Chief Digital And Data Officer
- Public Administration
- 1st
- Red Lobster
- Accommodation and Food Services
- 4th
- Samsung
- Wholesaler
- 6th
- Simplii Financial
- Finance and Insurance
- 6th
- Thomson & Cummings
- Administrative and Support Services
Sustainability
Sustainability
LEED Certification Led by the Canada Green Building Council (CAGBC), the Leadership in Energy and Environmental Design (LEED) is a green building certification program focused on the design, construction, operation, and maintenance of green buildings, homes, and neighborhoods, which aims to help building owners and operators be environmentally responsible and use resources efficiently. LEED certification is a globally recognized symbol of sustainability achievement and leadership. To achieve LEED certification, a project earns points by adhering to prerequisites and credits that address carbon, energy, water, waste, transportation, materials, health and indoor environmental quality. Projects go through a verification and review process and are awarded points that correspond to a level of LEED certification: Platinum (80+ points) Gold (60-79 points) Silver (50-59 points) Certified (40-49 points)
Presented by
Company Not Provided
Atrium on Bay | 595 Bay St
Hmm, there seems to have been an error sending your message. Please try again.
Thanks! Your message was sent.











































