Log In/Sign Up
Your email has been sent.
618 E Ramseur St - Custom Stone Building 3,910 SF Office/Retail Condo Unit Offered at $2,400,000 in Durham, NC 27701



Investment Highlights
- Just minutes to Duke University, Research Triangle Park, the new Apple RTP Campus and RDU Airport.
- Nestled amongst numerous restaurants/breweries and an easy walk to the Durham Bulls ballpark.
Executive Summary
Maverick Partners is pleased to present this unique opportunity to acquire a 100% leased single-tenant NNN investment property in one of the region's hottest sub-markets. Seller has executed a 10-year absolute net lease with no owner responsibilities. Originally constructed in the 1930's, this historic structure was completely gut renovated in 2020. The opportunity represents a 39% condo interest in the aggregate property and includes common access to ample on-site parking.
1 Unit Available
- Unit
- Unit Size
- Condo Use
- Price
- NOI
| Sale Type | Investment | Cap Rate | 5.95% |
| Sale Status | Under Contract |
| Sale Type | Investment |
| Sale Status | Under Contract |
| Cap Rate | 5.95% |
Description
Premium Downtown Durham location. Just minutes to Duke University, Research Triangle Park, the new Apple RTP
Campus and RDU Airport. Nestled amongst numerous restaurants/breweries and an easy walk to the
Durham Bulls ballpark. Ample on-site surface parking.
Campus and RDU Airport. Nestled amongst numerous restaurants/breweries and an easy walk to the
Durham Bulls ballpark. Ample on-site surface parking.
Sale Notes
Absolute NNN investment opportunity - office condo. 10 year NNN lease w/two 5-year options. 2.5% annual escalations.
| Unit | Unit Size | Condo Use | Price | NOI |
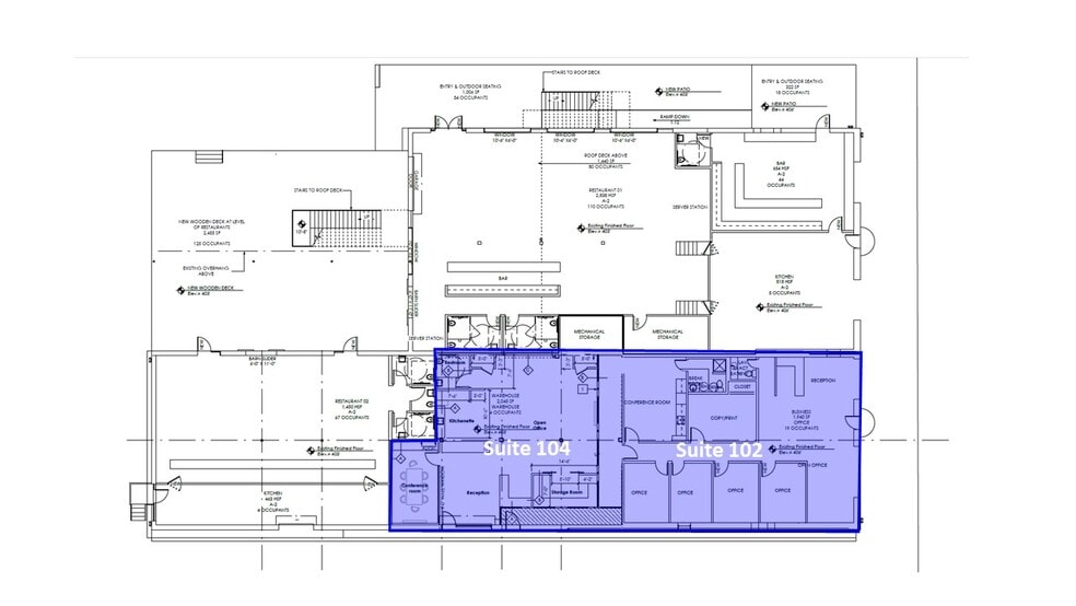
| Unit 102 & 104 | 3,910 SF | Office/Retail | $2,400,000 ($613.81/SF) | $142,715 |
Unit 102 & 104
| Unit Size |
| 3,910 SF |
| Condo Use |
| Office/Retail |
| Price |
| $2,400,000 ($613.81/SF) |
| NOI |
| $142,715 |
1 of 11
Videos
Matterport 3D Exterior
Matterport 3D Tour
Photos
Street View
Street
Map
Unit 102 & 104
| Unit Size | 3,910 SF |
| Condo Use | Office/Retail |
| Price | $2,400,000 ($613.81/SF) |
| NOI | $142,715 |
| Sale Type | Investment |
| Sale Status | Under Contract |
| Cap Rate | 5.95% |
| Description | |
| Premium Downtown Durham location. Just minutes to Duke University, Research Triangle Park, the new Apple RTP<br> Campus and RDU Airport. Nestled amongst numerous restaurants/breweries and an easy walk to the<br> Durham Bulls ballpark. Ample on-site surface parking.</li></ul> | |
| Sale Notes | |
| Absolute NNN investment opportunity - office condo. 10 year NNN lease w/two 5-year options. 2.5% annual escalations.</li></ul> |
Property Facts Under Contract
The following property facts apply to the entire building. Details for individual condo units may vary and are listed in the unit information above.
| Total Building Size | 10,606 SF | Year Built | 1925 |
| Property Type | Office (Condo) | Lot Size | 0.92 AC |
| Building Class | B | Parking Ratio | 3.77/1,000 SF |
| Floors | 1 | Opportunity Zone |
Yes
|
| Typical Floor Size | 10,606 SF | ||
| Zoning | I2 | ||
| Total Building Size | 10,606 SF |
| Property Type | Office (Condo) |
| Building Class | B |
| Floors | 1 |
| Typical Floor Size | 10,606 SF |
| Year Built | 1925 |
| Lot Size | 0.92 AC |
| Parking Ratio | 3.77/1,000 SF |
| Opportunity Zone |
Yes |
| Zoning | I2 |
Moderately walkable
70/100
Very drivable
80/100
Some public transit
40/100
Fairly bikeable
50/100
1 of 6
Videos
Matterport 3D Exterior
Matterport 3D Tour
Photos
Street View
Street
Map
Presented by
618 E Ramseur St - Custom Stone Building
Already a member? Log In
Hmm, there seems to have been an error sending your message. Please try again.
Thanks! Your message was sent.



