Your email has been sent.
800 Second Ave
New York, NY 10017
Office/Medical Property For Lease
·
1,800 SF


Highlights
- Near Transit
- Turnkey office/medical space
- Natural Light
Property Overview
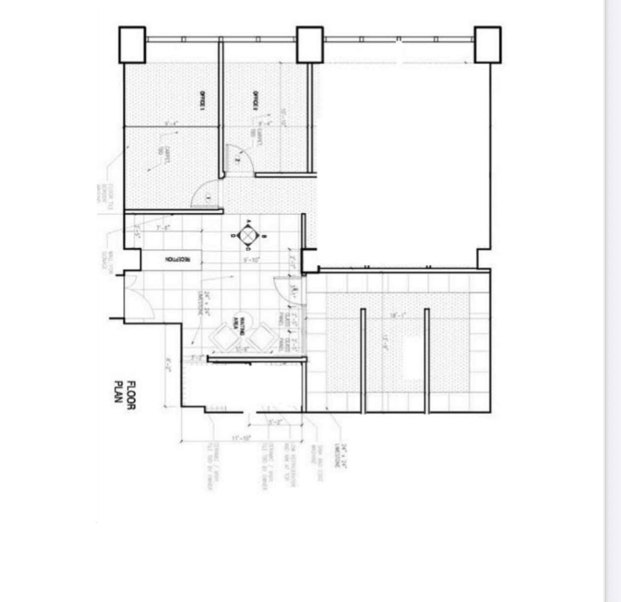
Prime Midtown East pre-built space available in a prestigious office building with a modern, fully attended lobby. Previously a physical therapist office, This move-in-ready space is ideal for medical practices, administrative offices, or any other professional use. With neighboring tenants including diplomatic missions and its close proximity to the UN Headquarters, it could be a perfect fit for consular offices or international organizations. The layout includes two spacious offices or exam rooms, a large conference room, a welcoming reception area, a designated printer/copy room, a wet pantry/kitchenette, and an open bullpen. The space features excellent natural light, expansive windows, and wide-open views. Conveniently located just steps from the subway and public transportation, with easy access to Grand Central. If you’re seeking a turnkey office solution in Midtown, this space is an outstanding opportunity.
- Bus Line
- Controlled Access
- Commuter Rail
- Food Service
- Metro/Subway
- Restaurant
- Central Heating
- Air Conditioning
