Log In/Sign Up
Your email has been sent.
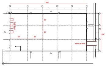
BTS 8880 Evergreen Blvd NW 32,500 SF Vacant 4-Star Industrial Building Coon Rapids, MN 55433 For Sale



Investment Highlights
- 5 minutes from Hwy 694
- 26 minutes from St. Paul CBD
- 24 minutes away from CBD Minneapolis
- 34 minutes away from MSP Airport
Property Facts
| Sale Type | Investment or Owner User | Construction Status | Proposed |
| Sale Condition | Build to Suit | Rentable Building Area | 32,500 SF |
| Property Type | Industrial | No. Stories | 1 |
| Property Subtype | Truck Terminal | Clear Ceiling Height | 22’ |
| Building Class | B | No. Dock-High Doors/Loading | 4 |
| Lot Size | 3.25 AC | No. Drive In / Grade-Level Doors | 1 |
| Zoning | I - Industrial District Zoning | ||
| Sale Type | Investment or Owner User |
| Sale Condition | Build to Suit |
| Property Type | Industrial |
| Property Subtype | Truck Terminal |
| Building Class | B |
| Lot Size | 3.25 AC |
| Construction Status | Proposed |
| Rentable Building Area | 32,500 SF |
| No. Stories | 1 |
| Clear Ceiling Height | 22’ |
| No. Dock-High Doors/Loading | 4 |
| No. Drive In / Grade-Level Doors | 1 |
| Zoning | I - Industrial District Zoning |
Space Availability
- Space
- Size
- Space Use
- Build-Out
- Available
| Space | Size | Space Use | Build-Out | Available |
| 1st Floor | 32,500 SF | Industrial | Shell Space | Now |
1st Floor
| Size |
| 32,500 SF |
| Space Use |
| Industrial |
| Build-Out |
| Shell Space |
| Available |
| Now |
1 of 2
Videos
Matterport 3D Exterior
Matterport 3D Tour
Photos
Street View
Street
Map
1st Floor
| Size | 32,500 SF |
| Space Use | Industrial |
| Build-Out | Shell Space |
| Available | Now |
1 1
Fairly walkable
40/100
Exceptionally drivable
100/100
Minimal public transit
10/100
Moderately bikeable
60/100
Property Taxes
| Parcel Number | 36-31-24-31-0016 | Improvements Assessment | $0 |
| Land Assessment | $395,000 | Total Assessment | $395,000 |
Property Taxes
Parcel Number
36-31-24-31-0016
Land Assessment
$395,000
Improvements Assessment
$0
Total Assessment
$395,000
1 of 5
Videos
Matterport 3D Exterior
Matterport 3D Tour
Photos
Street View
Street
Map
1 of 1
Presented by
BTS | 8880 Evergreen Blvd NW
Already a member? Log In
Hmm, there seems to have been an error sending your message. Please try again.
Thanks! Your message was sent.



