Property Record
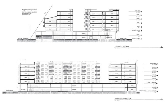
2 Pierce Ave, San Jose, CA 95110
Property Detail
2 Pierce Ave
264-32-088
TRACT 10226 THE PIERCE BOOK 875 PAGE 19 PAGE 20 LOT 1
Multifamilydwelling
SANTA CLARA
C3
California
D Areas with possible but undetermined flood hazards.
1
2024
2 AC
2025
South Market
501700
South Bay/San Jose
243,344 SF
San Jose-Sunnyvale-Santa Clara, CA
NEARBY LISTINGS FOR SALE OR LEASE
DEMOGRAPHICS near 2 Pierce Ave
1 mile
3 mile
5 mile
2025 Total Population
43,720
268,415
685,271
2030 Population
45,324
274,326
698,310
Pop Growth 2025-2030
+ 3.67%
+ 2.20%
+ 1.90%
Average Age
35
38
39
2025 Total Households
15,833
91,259
223,733
HH Growth 2025-2030
+ 4.37%
+ 2.47%
+ 2.11%
Median Household Inc
$93,050
$109,070
$121,901
Avg Household Size
2.40
2.70
2.90
2025 Avg HH Vehicles
2.00
2.00
2.00
Median Home Value
$997,040
$1,037,990
$1,057,784
Median Year Built
1975
1973
1973
Nearby Places
Map Layers
Listings with unknown addresses are not visible on the map
- Restaurants
- Banks
- Shops
- Fitness
- Groceries
PUBLIC TRANSPORTATION
COMMUTER RAIL
Drive
Walk
Distance
3 min
1.4 mi
Drive
Walk
Distance
3 min
1.4 mi
AIRPORT
Norman Y Mineta San Jose International
Drive
Walk
Distance
Norman Y Mineta San Jose International
8 min
3.9 mi
Metro Oakland International
Drive
Walk
Distance
Metro Oakland International
48 min
36.6 mi
San Francisco International
Drive
Walk
Distance
San Francisco International
46 min
36.7 mi
Freight Ports
Port of Redwood City
Drive
Walk
Distance
Port of Redwood City
31 min
23.5 mi
SALE & LEASE HISTORY
LISTING DATE
SALE/LEASE
Nearby Properties
Address
Land Use
TOTAL SIZE
Lot Size
Zoning
Address
Land Use
TOTAL SIZE
Lot Size
Zoning
2.50 AC
DC
Address
Land Use
TOTAL SIZE
Lot Size
Zoning
1.73 AC
DC
Address
Land Use
TOTAL SIZE
Lot Size
Zoning
837,391 SF
1.42 AC
DC
Address
Land Use
TOTAL SIZE
Lot Size
Zoning
557,448 SF
1.46 AC
DC
Address
Land Use
TOTAL SIZE
Lot Size
Zoning
333,472 SF
1.24 AC
APD
Address
Land Use
TOTAL SIZE
Lot Size
Zoning
289,503 SF
0.97 AC
DC
Address
Land Use
TOTAL SIZE
Lot Size
Zoning
330,927 SF
2.35 AC
M1
Address
Land Use
TOTAL SIZE
Lot Size
Zoning
445,687 SF
6.44 AC
A(PD)
Address
Land Use
TOTAL SIZE
Lot Size
Zoning
340,000 SF
0.65 AC
CG(PD
Address
Land Use
TOTAL SIZE
Lot Size
Zoning
381,000 SF
1.40 AC
DC
Address
Land Use
TOTAL SIZE
Lot Size
Zoning
11.96 AC
M4
Address
Land Use
TOTAL SIZE
Lot Size
Zoning
491,622 SF
4.18 AC
A(PD)
Address
Land Use
TOTAL SIZE
Lot Size
Zoning
286,350 SF
0.80 AC
C
Address
Land Use
TOTAL SIZE
Lot Size
Zoning
1.16 AC
R1BD
Address
Land Use
TOTAL SIZE
Lot Size
Zoning
279,230 SF
1.69 AC
C3H
Address
Land Use
TOTAL SIZE
Lot Size
Zoning
226,000 SF
0.82 AC
DC
Address
Land Use
TOTAL SIZE
Lot Size
Zoning
348,754 SF
1.58 AC
DC
Address
Land Use
TOTAL SIZE
Lot Size
Zoning
300,000 SF
1.66 AC
DC
Address
Land Use
TOTAL SIZE
Lot Size
Zoning
315,000 SF
0.71 AC
CG
Address
Land Use
TOTAL SIZE
Lot Size
Zoning
469,773 SF
7.02 AC
APD
Address
Land Use
TOTAL SIZE
Lot Size
Zoning
320,986 SF
0.78 AC
CG-PD
Address
Land Use
TOTAL SIZE
Lot Size
Zoning
350,000 SF
2.09 AC
CG
Address
Land Use
TOTAL SIZE
Lot Size
Zoning
166,696 SF
2.68 AC
APDCI
Address
Land Use
TOTAL SIZE
Lot Size
Zoning
302,148 SF
4.43 AC
APD
Address
Land Use
TOTAL SIZE
Lot Size
Zoning
367,087 SF
0.95 AC
DC
Address
Land Use
TOTAL SIZE
Lot Size
Zoning
2.41 AC
APD
Address
Land Use
TOTAL SIZE
Lot Size
Zoning
2.11 AC
A(PD)
Address
Land Use
TOTAL SIZE
Lot Size
Zoning
233,709 SF
3.87 AC
APD
Address
Land Use
TOTAL SIZE
Lot Size
Zoning
100 SF
5.31 AC
IP
Address
Land Use
TOTAL SIZE
Lot Size
Zoning
385,823 SF
1.21 AC
CP








