Your email has been sent.
11755 Wilshire 11755 Wilshire Blvd 1,035 - 9,090 SF of 4-Star Retail Space Available in Los Angeles, CA 90025



Highlights
- Prime restaurant and retail spaces with high visibility on Wilshire Boulevard.
- Exceptional exposure to over 40,000 cars daily, with access to over 1 million RSF of neighboring office users and 60,000 local residents.
- 3/1,000 parking ratio in covered seven-level parking structure in addition to metered street parking.
- Opportunity to establish a destination restaurant featuring ±2,507 RSF of kitchen/dining space and an exclusive ±1,100 RSF patio.
- Competitive tenant improvement allowance available for tenants with strong credit.
- Access the 405/10 freeways with ease.
All Available Spaces(5)
Display Rental Rate as
- Space
- Size
- Term
- Rental Rate
- Space Use
- Build-Out
- Available
Opportunity to establish a destination restaurant featuring ±2,507 RSF of kitchen/dining space and an exclusive ±1,100 RSF patio.
- Fully Built-Out as a Restaurant or Café Space
- Space is in Excellent Condition
• 2,912 SF space – previously occupied by a gym user • Potential to capitalize on residual build-out value • High ceilings, open layout, and excellent natural light • Street-level visibility along Wilshire Blvd • Easy access for clients with 3/1,000 SF covered parking • Direct synergy with Pilates Platinum, an upscale boutique fitness operator within the project
- Fully Built-Out as Standard Retail Space
- Space is in Excellent Condition
- Highly Desirable End Cap Space
Wilshire Blvd street front retail available with a 60-day notice.
- Fully Built-Out as a Restaurant or Café Space
- Space is in Excellent Condition
- Located in-line with other retail
Wilshire Blvd street front retail or restaurant available now.
- Fully Built-Out as a Restaurant or Café Space
- Space is in Excellent Condition
- Located in-line with other retail
Wilshire Blvd street front retail or restaurant available now.
- Fully Built-Out as a Restaurant or Café Space
- Space is in Excellent Condition
- Highly Desirable End Cap Space
| Space | Size | Term | Rental Rate | Space Use | Build-Out | Available |
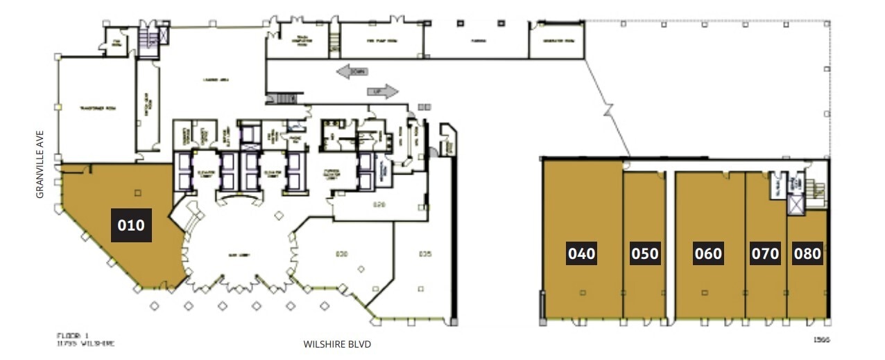
| Ground, Ste 010 | 2,507 SF | Negotiable | Upon Request Upon Request Upon Request Upon Request | Retail | Full Build-Out | Pending |
| Ground, Ste 040 | 2,912 SF | Negotiable | Upon Request Upon Request Upon Request Upon Request | Retail | Full Build-Out | Now |
| Ground, Ste 050 | 1,377 SF | Negotiable | Upon Request Upon Request Upon Request Upon Request | Retail | Full Build-Out | Now |
| Ground, Ste 070 | 1,259 SF | Negotiable | Upon Request Upon Request Upon Request Upon Request | Retail | Full Build-Out | Pending |
| Ground, Ste 080 | 1,035 SF | Negotiable | Upon Request Upon Request Upon Request Upon Request | Retail | Full Build-Out | Pending |
Ground, Ste 010
| Size |
| 2,507 SF |
| Term |
| Negotiable |
| Rental Rate |
| Upon Request Upon Request Upon Request Upon Request |
| Space Use |
| Retail |
| Build-Out |
| Full Build-Out |
| Available |
| Pending |
Ground, Ste 040
| Size |
| 2,912 SF |
| Term |
| Negotiable |
| Rental Rate |
| Upon Request Upon Request Upon Request Upon Request |
| Space Use |
| Retail |
| Build-Out |
| Full Build-Out |
| Available |
| Now |
Ground, Ste 050
| Size |
| 1,377 SF |
| Term |
| Negotiable |
| Rental Rate |
| Upon Request Upon Request Upon Request Upon Request |
| Space Use |
| Retail |
| Build-Out |
| Full Build-Out |
| Available |
| Now |
Ground, Ste 070
| Size |
| 1,259 SF |
| Term |
| Negotiable |
| Rental Rate |
| Upon Request Upon Request Upon Request Upon Request |
| Space Use |
| Retail |
| Build-Out |
| Full Build-Out |
| Available |
| Pending |
Ground, Ste 080
| Size |
| 1,035 SF |
| Term |
| Negotiable |
| Rental Rate |
| Upon Request Upon Request Upon Request Upon Request |
| Space Use |
| Retail |
| Build-Out |
| Full Build-Out |
| Available |
| Pending |
Ground, Ste 010
| Size | 2,507 SF |
| Term | Negotiable |
| Rental Rate | Upon Request |
| Space Use | Retail |
| Build-Out | Full Build-Out |
| Available | Pending |
Opportunity to establish a destination restaurant featuring ±2,507 RSF of kitchen/dining space and an exclusive ±1,100 RSF patio.
- Fully Built-Out as a Restaurant or Café Space
- Space is in Excellent Condition
Ground, Ste 040
| Size | 2,912 SF |
| Term | Negotiable |
| Rental Rate | Upon Request |
| Space Use | Retail |
| Build-Out | Full Build-Out |
| Available | Now |
• 2,912 SF space – previously occupied by a gym user • Potential to capitalize on residual build-out value • High ceilings, open layout, and excellent natural light • Street-level visibility along Wilshire Blvd • Easy access for clients with 3/1,000 SF covered parking • Direct synergy with Pilates Platinum, an upscale boutique fitness operator within the project
- Fully Built-Out as Standard Retail Space
- Highly Desirable End Cap Space
- Space is in Excellent Condition
Ground, Ste 050
| Size | 1,377 SF |
| Term | Negotiable |
| Rental Rate | Upon Request |
| Space Use | Retail |
| Build-Out | Full Build-Out |
| Available | Now |
Wilshire Blvd street front retail available with a 60-day notice.
- Fully Built-Out as a Restaurant or Café Space
- Located in-line with other retail
- Space is in Excellent Condition
Ground, Ste 070
| Size | 1,259 SF |
| Term | Negotiable |
| Rental Rate | Upon Request |
| Space Use | Retail |
| Build-Out | Full Build-Out |
| Available | Pending |
Wilshire Blvd street front retail or restaurant available now.
- Fully Built-Out as a Restaurant or Café Space
- Located in-line with other retail
- Space is in Excellent Condition
Ground, Ste 080
| Size | 1,035 SF |
| Term | Negotiable |
| Rental Rate | Upon Request |
| Space Use | Retail |
| Build-Out | Full Build-Out |
| Available | Pending |
Wilshire Blvd street front retail or restaurant available now.
- Fully Built-Out as a Restaurant or Café Space
- Highly Desirable End Cap Space
- Space is in Excellent Condition
Property Facts
Sustainability
Sustainability
LEED Certification Developed by the U.S. Green Building Council (USGBC), the Leadership in Energy and Environmental Design (LEED) is a green building certification program focused on the design, construction, operation, and maintenance of green buildings, homes, and neighborhoods, which aims to help building owners and operators be environmentally responsible and use resources efficiently. LEED certification is a globally recognized symbol of sustainability achievement and leadership. To achieve LEED certification, a project earns points by adhering to prerequisites and credits that address carbon, energy, water, waste, transportation, materials, health and indoor environmental quality. Projects go through a verification and review process and are awarded points that correspond to a level of LEED certification: Platinum (80+ points) Gold (60-79 points) Silver (50-59 points) Certified (40-49 points)
ENERGY STAR® Energy Star is a program run by the U.S. Environmental Protection Agency (EPA) and U.S. Department of Energy (DOE) that promotes energy efficiency and provides simple, credible, and unbiased information that consumers and businesses rely on to make well-informed decisions. Thousands of industrial, commercial, utility, state, and local organizations partner with the EPA to deliver cost-saving energy efficiency solutions that protect the climate while improving air quality and protecting public health. The Energy Star score compares a building’s energy performance to similar buildings nationwide and accounts for differences in operating conditions, regional weather data, and other important considerations. Certification is given on an annual basis, so a building must maintain its high performance to be certified year to year. To be eligible for Energy Star certification, a building must earn a score of 75 or higher on EPA’s 1 – 100 scale, indicating that it performs better than at least 75 percent of similar buildings nationwide. This 1 – 100 Energy Star score is based on the actual, measured energy use of a building and is calculated within EPA’s Energy Star Portfolio Manager tool.
Property Overview
11755 Wilshire offers an inspiring and elegant workspace in the heart of Downtown Brentwood. Our deluxe suites and comfortable interiors create a warm and welcoming atmosphere, perfect for fostering creativity and productivity. With convenient access to a myriad of local amenities, you can enjoy a vibrant working lifestyle. Join our community of tenants and experience the perfect balance of sophistication and comfort.
- Fitness Center
- Energy Star Labeled
- Wheelchair Accessible
- Central Heating
- Air Conditioning
- Smoke Detector
Nearby Major Retailers
Presented by
11755 Wilshire | 11755 Wilshire Blvd
Hmm, there seems to have been an error sending your message. Please try again.
Thanks! Your message was sent.






