Enter your email to login or create a free account
This feature is unavailable at the moment.
We apologize, but the feature you are trying to access is currently unavailable. We are aware of this issue and our team is working hard to resolve the matter.
Please check back in a few minutes. We apologize for the inconvenience.
- LoopNet Team
1293 N Service Rd E
Oakville, ON L6H 1A7
Property For Lease

Highlights
- Freestanding industrial building with modern finishes.
- Excellent highway access to QEW and Hwy 403.
- Surrounded by retail, fitness, and dining amenities.
- Three dock-level doors and one drive-in for flexible shipping.
- E2 zoning supports diverse industrial uses.
Property Overview
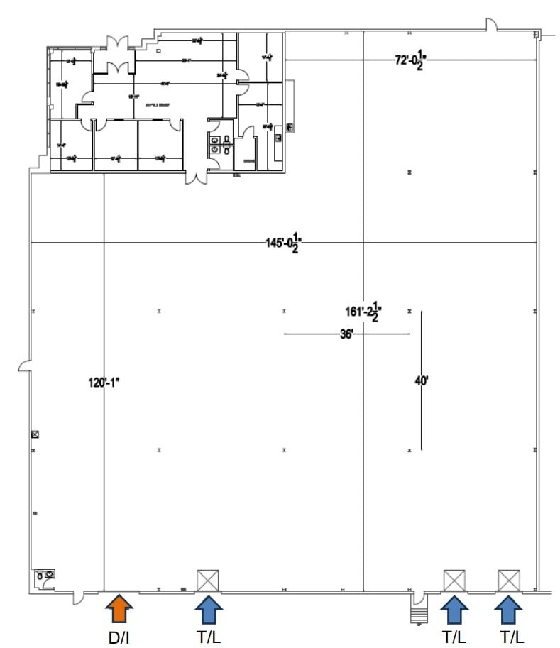
Located in one of Oakville’s most accessible industrial corridors, 1293 North Service Road East offers a highly functional freestanding warehouse with a modern design and strategic location. The building spans 23,403 sq. ft. and includes 2,714 sq. ft. of office space, making it ideal for businesses seeking a balanced mix of administrative and operational areas. The property features three dock-level doors and one drive-in door, supported by a 24-foot clear height and E2 zoning, which accommodates a wide range of industrial uses. Its location provides immediate access to the QEW and Highway 403, facilitating efficient regional and cross-border logistics. The landlord is offering six months of fixturing for tenants committing to a minimum five-year term, adding value and flexibility for incoming occupants. Surrounding amenities include major retailers, fitness centers, restaurants, and medical services, contributing to a vibrant business environment. Nearby destinations such as Whole Foods, Starbucks, Longo’s, and Orangetheory Fitness enhance employee convenience and lifestyle appeal. The site is also minutes from downtown Oakville and within reach of Toronto, Hamilton, and the U.S. border via major highways.
Property Facts
| Property Type | Industrial | Rentable Building Area | 51,494 SF |
| Property Subtype | Warehouse | Year Built | 1995 |
| Property Type | Industrial |
| Property Subtype | Warehouse |
| Rentable Building Area | 51,494 SF |
| Year Built | 1995 |
Listing ID: 38006588
Date on Market: 10/9/2025
Last Updated:
Address: 1293 N Service Rd E, Oakville, ON L6H 1A7
The Industrial Property at 1293 N Service Rd E, Oakville, ON L6H 1A7 is no longer being advertised on LoopNet.com. Contact the broker for information on availability.
INDUSTRIAL PROPERTIES IN NEARBY NEIGHBORHOODS
- Churchill Meadows/Erin Mills Commercial Real Estate Properties
- Burlington East Commercial Real Estate Properties
- Meadowvale Commercial Real Estate Properties
- Clarkson/Lorne Park Commercial Real Estate Properties
- Port Credit Commercial Real Estate Properties
- Cooksville Commercial Real Estate Properties
- Bronte Commercial Real Estate Properties
NEARBY LISTINGS
- 700 Dorval Dr, Oakville ON
- 4181 Sladeview Cres, Mississauga ON
- 4020B Sladeview Cres, Mississauga ON
- 250 Wyecroft Rd, Oakville ON
- 2650 Royal Windsor Dr, Mississauga ON
- 3800A Laird Rd, Mississauga ON
- 4160 Sladeview Cres, Mississauga ON
- 4170 Sladeview Cres, Mississauga ON
- 4160 Sladeview Cres, Mississauga ON
- 3615 Laird Rd, Mississauga ON
- 4100 Sladeview Cres, Mississauga ON
- 3755 Laird Rd, Mississauga ON
- 4060A Sladeview Cres, Mississauga ON
- 3490 Laird Rd, Mississauga ON
