Log In/Sign Up
Your email has been sent.
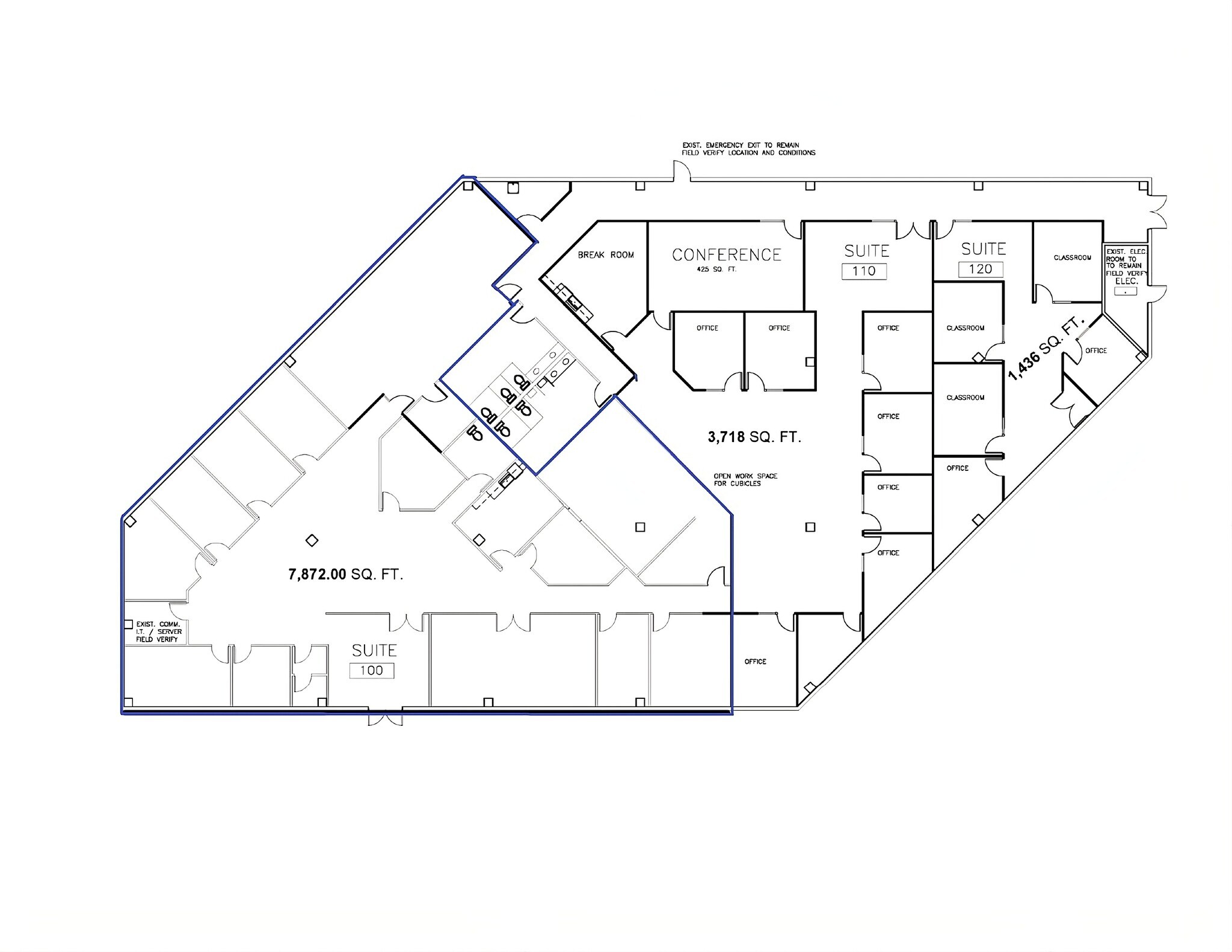
1610 Corporate Ct
Irving, TX 75038
Corporate Court · Office Property For Lease
·
13,026 SF


Highlights
- Located in the heart of Las Colinas
- High efficient floor plan
Property Overview
1610 Corporate is a single-story 14,630 SF that was built in 1982. It is conveniently situated near President George Bush and John Carpenter Freeway along Corporate Drive and Gateway Drive. Amenities in the area include Water Street, Toyota Music Factory, and the Irving Convention Center.
- Controlled Access
- Reception
- Air Conditioning
Property Facts
Building Type
Office
Year Built
1982
Building Height
1 Story
Building Size
14,630 SF
Building Class
B
Typical Floor Size
13,026 SF
Parking
23 Surface Parking Spaces
1 of 55
Videos
Matterport 3D Exterior
Matterport 3D Tour
Photos
Street View
Street
Map
