Your email has been sent.
Citigroup Center 201 S Biscayne Blvd 2,145 - 205,555 SF of 5-Star Office Space Available in Miami, FL 33131



Highlights
- 34-story trophy office tower in the heart of Downtown Miami offers unobstructed, beautiful views of Biscayne Bay, Miami Beach and Key Biscayne.
- Adjacent to the Bayfront Park and minutes to South Beach, Miami International Airport (MIA) and Coral Gables, which is only 12 mile distance.
- Metromover station across the street with access to All Aboard Florida MiamiCentral Station and Miami Metrorail system.
- Concierge, restaurants, adjoins first class hotel, 61,000 square feet of meeting space, first-class catering and business services.
- Citigroup Center hosts national tenants such as Citbank and Morgan Stanley.
All Available Spaces(19)
Display Rental Rate as
- Space
- Size
- Term
- Rental Rate
- Space Use
- Build-Out
- Available
Unparalleled Exclusive Views.
- Rate includes utilities, building services and property expenses
- Office intensive layout
- Can be combined with additional space(s) for up to 48,942 SF of adjacent space
- Fully Built-Out as Standard Office
- Space is in Excellent Condition
- Natural Light
Unparalleled Exclusive Views.
- Rate includes utilities, building services and property expenses
- Space is in Excellent Condition
- Natural Light
- Office intensive layout
- Can be combined with additional space(s) for up to 48,942 SF of adjacent space
- Rate includes utilities, building services and property expenses
- Space is in Excellent Condition
- Rate includes utilities, building services and property expenses
- Space is in Excellent Condition
- Fully Built-Out as Standard Office
Unparalleled Exclusive Views.
- Rate includes utilities, building services and property expenses
- Space is in Excellent Condition
- Office intensive layout
- Natural Light
See Link to Virtual Tour: https://my.matterport.com/show/?m=nyqNXyC2iWN
- Rate includes utilities, building services and property expenses
- Mostly Open Floor Plan Layout
- Natural Light
- Fully Built-Out as Standard Office
- Space is in Excellent Condition
Unparalleled Exclusive Views.
- Rate includes utilities, building services and property expenses
- Natural Light
- Mostly Open Floor Plan Layout
Brand new move-in ready SPEC suite! See Virtual Tour: https://my.matterport.com/show/?m=nayDRyQSr8H
- Rate includes utilities, building services and property expenses
- Space is in Excellent Condition
- Mostly Open Floor Plan Layout
- Natural Light
Unparalleled Exclusive Views.
- Rate includes utilities, building services and property expenses
- Mostly Open Floor Plan Layout
- Natural Light
- Fully Built-Out as Standard Office
- Space is in Excellent Condition
Unparalleled Exclusive Views.
- Rate includes utilities, building services and property expenses
- Mostly Open Floor Plan Layout
- Natural Light
- Fully Built-Out as Standard Office
- Space is in Excellent Condition
Unparalleled Exclusive Views.
- Rate includes utilities, building services and property expenses
- Space is in Excellent Condition
- Natural Light
- Office intensive layout
- Can be combined with additional space(s) for up to 73,413 SF of adjacent space
Unparalleled Exclusive Views.
- Rate includes utilities, building services and property expenses
- Space is in Excellent Condition
- Natural Light
- Office intensive layout
- Can be combined with additional space(s) for up to 73,413 SF of adjacent space
Unparalleled Exclusive Views.
- Rate includes utilities, building services and property expenses
- Office intensive layout
- Natural Light
- Fully Built-Out as Standard Office
- Can be combined with additional space(s) for up to 73,413 SF of adjacent space
Unparalleled Exclusive Views.
- Rate includes utilities, building services and property expenses
- Office intensive layout
- Fully Built-Out as Standard Office
- Natural Light
- Rate includes utilities, building services and property expenses
- Space is in Excellent Condition
- Fully Built-Out as Standard Office
Unparalleled Exclusive Views
- Rate includes utilities, building services and property expenses
- Space is in Excellent Condition
- Fully Built-Out as Standard Office
Unparalleled Exclusive Views.
- Rate includes utilities, building services and property expenses
- Office intensive layout
- Natural Light
- Fully Built-Out as Standard Office
- Space is in Excellent Condition
- Rate includes utilities, building services and property expenses
- Space is in Excellent Condition
- Fully Built-Out as Standard Office
Unparalleled Exclusive Views.
- Rate includes utilities, building services and property expenses
- Natural Light
- Mostly Open Floor Plan Layout
| Space | Size | Term | Rental Rate | Space Use | Build-Out | Available |
| 3rd Floor, Ste 300 | 10,000-24,471 SF | Negotiable | $60.00 /SF/YR $5.00 /SF/MO $1,468,260 /YR $122,355 /MO | Office | Full Build-Out | Now |
| 4th Floor, Ste 400 | 10,000-24,471 SF | 5-10 Years | $60.00 /SF/YR $5.00 /SF/MO $1,468,260 /YR $122,355 /MO | Office | Shell Space | 120 Days |
| 7th Floor, Ste 700 | 3,678 SF | Negotiable | $74.00 /SF/YR $6.17 /SF/MO $272,172 /YR $22,681 /MO | Office | - | December 01, 2026 |
| 7th Floor, Ste 720 | 4,156 SF | Negotiable | $74.00 /SF/YR $6.17 /SF/MO $307,544 /YR $25,629 /MO | Office | Full Build-Out | November 01, 2026 |
| 12th Floor, Ste 1240 | 3,536 SF | Negotiable | $72.00 /SF/YR $6.00 /SF/MO $254,592 /YR $21,216 /MO | Office | Spec Suite | Now |
| 13th Floor, Ste 1310 | 5,301 SF | 5-10 Years | $72.00 /SF/YR $6.00 /SF/MO $381,672 /YR $31,806 /MO | Office | Full Build-Out | 30 Days |
| 13th Floor, Ste 1330 | 2,145 SF | Negotiable | $72.00 /SF/YR $6.00 /SF/MO $154,440 /YR $12,870 /MO | Office | Spec Suite | Now |
| 13th Floor, Ste 1340 | 2,949 SF | 5-10 Years | $72.00 /SF/YR $6.00 /SF/MO $212,328 /YR $17,694 /MO | Office | Spec Suite | 60 Days |
| 14th Floor, Ste 1420 | 3,217-5,365 SF | Negotiable | $74.00 /SF/YR $6.17 /SF/MO $397,010 /YR $33,084 /MO | Office | Full Build-Out | Now |
| 14th Floor, Ste 1430 | 2,148-5,365 SF | Negotiable | $74.00 /SF/YR $6.17 /SF/MO $397,010 /YR $33,084 /MO | Office | Full Build-Out | Now |
| 15th Floor, Ste 1500 | 10,000-24,471 SF | 5-10 Years | $69.00 /SF/YR $5.75 /SF/MO $1,688,499 /YR $140,708 /MO | Office | Shell Space | 30 Days |
| 16th Floor, Ste 1600 | 10,000-24,471 SF | 5-10 Years | $69.00 /SF/YR $5.75 /SF/MO $1,688,499 /YR $140,708 /MO | Office | Shell Space | 30 Days |
| 17th Floor, Ste 1700 | 10,000-24,471 SF | 5-10 Years | $69.00 /SF/YR $5.75 /SF/MO $1,688,499 /YR $140,708 /MO | Office | Full Build-Out | 30 Days |
| 18th Floor, Ste 1850 | 5,000-6,714 SF | 5-10 Years | $72.00 /SF/YR $6.00 /SF/MO $483,408 /YR $40,284 /MO | Office | Full Build-Out | 30 Days |
| 21st Floor, Ste 2140 | 5,000-6,556 SF | Negotiable | $72.00 /SF/YR $6.00 /SF/MO $472,032 /YR $39,336 /MO | Office | Full Build-Out | Now |
| 25th Floor, Ste 2540 | 2,711 SF | Negotiable | $72.00 /SF/YR $6.00 /SF/MO $195,192 /YR $16,266 /MO | Office | Full Build-Out | Now |
| 26th Floor, Ste 2620 | 4,554 SF | Negotiable | $72.00 /SF/YR $6.00 /SF/MO $327,888 /YR $27,324 /MO | Office | Full Build-Out | Now |
| 26th Floor, Ste 2650 | 5,013 SF | Negotiable | $74.00 /SF/YR $6.17 /SF/MO $370,962 /YR $30,914 /MO | Office | Full Build-Out | October 01, 2026 |
| 27th Floor, Ste 2700 | 10,000-25,157 SF | Negotiable | $71.00 /SF/YR $5.92 /SF/MO $1,786,147 /YR $148,846 /MO | Office | Spec Suite | Now |
3rd Floor, Ste 300
| Size |
| 10,000-24,471 SF |
| Term |
| Negotiable |
| Rental Rate |
| $60.00 /SF/YR $5.00 /SF/MO $1,468,260 /YR $122,355 /MO |
| Space Use |
| Office |
| Build-Out |
| Full Build-Out |
| Available |
| Now |
4th Floor, Ste 400
| Size |
| 10,000-24,471 SF |
| Term |
| 5-10 Years |
| Rental Rate |
| $60.00 /SF/YR $5.00 /SF/MO $1,468,260 /YR $122,355 /MO |
| Space Use |
| Office |
| Build-Out |
| Shell Space |
| Available |
| 120 Days |
7th Floor, Ste 700
| Size |
| 3,678 SF |
| Term |
| Negotiable |
| Rental Rate |
| $74.00 /SF/YR $6.17 /SF/MO $272,172 /YR $22,681 /MO |
| Space Use |
| Office |
| Build-Out |
| - |
| Available |
| December 01, 2026 |
7th Floor, Ste 720
| Size |
| 4,156 SF |
| Term |
| Negotiable |
| Rental Rate |
| $74.00 /SF/YR $6.17 /SF/MO $307,544 /YR $25,629 /MO |
| Space Use |
| Office |
| Build-Out |
| Full Build-Out |
| Available |
| November 01, 2026 |
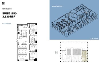
12th Floor, Ste 1240
| Size |
| 3,536 SF |
| Term |
| Negotiable |
| Rental Rate |
| $72.00 /SF/YR $6.00 /SF/MO $254,592 /YR $21,216 /MO |
| Space Use |
| Office |
| Build-Out |
| Spec Suite |
| Available |
| Now |
13th Floor, Ste 1310
| Size |
| 5,301 SF |
| Term |
| 5-10 Years |
| Rental Rate |
| $72.00 /SF/YR $6.00 /SF/MO $381,672 /YR $31,806 /MO |
| Space Use |
| Office |
| Build-Out |
| Full Build-Out |
| Available |
| 30 Days |
13th Floor, Ste 1330
| Size |
| 2,145 SF |
| Term |
| Negotiable |
| Rental Rate |
| $72.00 /SF/YR $6.00 /SF/MO $154,440 /YR $12,870 /MO |
| Space Use |
| Office |
| Build-Out |
| Spec Suite |
| Available |
| Now |
13th Floor, Ste 1340
| Size |
| 2,949 SF |
| Term |
| 5-10 Years |
| Rental Rate |
| $72.00 /SF/YR $6.00 /SF/MO $212,328 /YR $17,694 /MO |
| Space Use |
| Office |
| Build-Out |
| Spec Suite |
| Available |
| 60 Days |
14th Floor, Ste 1420
| Size |
| 3,217-5,365 SF |
| Term |
| Negotiable |
| Rental Rate |
| $74.00 /SF/YR $6.17 /SF/MO $397,010 /YR $33,084 /MO |
| Space Use |
| Office |
| Build-Out |
| Full Build-Out |
| Available |
| Now |
14th Floor, Ste 1430
| Size |
| 2,148-5,365 SF |
| Term |
| Negotiable |
| Rental Rate |
| $74.00 /SF/YR $6.17 /SF/MO $397,010 /YR $33,084 /MO |
| Space Use |
| Office |
| Build-Out |
| Full Build-Out |
| Available |
| Now |
15th Floor, Ste 1500
| Size |
| 10,000-24,471 SF |
| Term |
| 5-10 Years |
| Rental Rate |
| $69.00 /SF/YR $5.75 /SF/MO $1,688,499 /YR $140,708 /MO |
| Space Use |
| Office |
| Build-Out |
| Shell Space |
| Available |
| 30 Days |
16th Floor, Ste 1600
| Size |
| 10,000-24,471 SF |
| Term |
| 5-10 Years |
| Rental Rate |
| $69.00 /SF/YR $5.75 /SF/MO $1,688,499 /YR $140,708 /MO |
| Space Use |
| Office |
| Build-Out |
| Shell Space |
| Available |
| 30 Days |
17th Floor, Ste 1700
| Size |
| 10,000-24,471 SF |
| Term |
| 5-10 Years |
| Rental Rate |
| $69.00 /SF/YR $5.75 /SF/MO $1,688,499 /YR $140,708 /MO |
| Space Use |
| Office |
| Build-Out |
| Full Build-Out |
| Available |
| 30 Days |
18th Floor, Ste 1850
| Size |
| 5,000-6,714 SF |
| Term |
| 5-10 Years |
| Rental Rate |
| $72.00 /SF/YR $6.00 /SF/MO $483,408 /YR $40,284 /MO |
| Space Use |
| Office |
| Build-Out |
| Full Build-Out |
| Available |
| 30 Days |
21st Floor, Ste 2140
| Size |
| 5,000-6,556 SF |
| Term |
| Negotiable |
| Rental Rate |
| $72.00 /SF/YR $6.00 /SF/MO $472,032 /YR $39,336 /MO |
| Space Use |
| Office |
| Build-Out |
| Full Build-Out |
| Available |
| Now |
25th Floor, Ste 2540
| Size |
| 2,711 SF |
| Term |
| Negotiable |
| Rental Rate |
| $72.00 /SF/YR $6.00 /SF/MO $195,192 /YR $16,266 /MO |
| Space Use |
| Office |
| Build-Out |
| Full Build-Out |
| Available |
| Now |
26th Floor, Ste 2620
| Size |
| 4,554 SF |
| Term |
| Negotiable |
| Rental Rate |
| $72.00 /SF/YR $6.00 /SF/MO $327,888 /YR $27,324 /MO |
| Space Use |
| Office |
| Build-Out |
| Full Build-Out |
| Available |
| Now |
26th Floor, Ste 2650
| Size |
| 5,013 SF |
| Term |
| Negotiable |
| Rental Rate |
| $74.00 /SF/YR $6.17 /SF/MO $370,962 /YR $30,914 /MO |
| Space Use |
| Office |
| Build-Out |
| Full Build-Out |
| Available |
| October 01, 2026 |
27th Floor, Ste 2700
| Size |
| 10,000-25,157 SF |
| Term |
| Negotiable |
| Rental Rate |
| $71.00 /SF/YR $5.92 /SF/MO $1,786,147 /YR $148,846 /MO |
| Space Use |
| Office |
| Build-Out |
| Spec Suite |
| Available |
| Now |
3rd Floor, Ste 300
| Size | 10,000-24,471 SF |
| Term | Negotiable |
| Rental Rate | $60.00 /SF/YR |
| Space Use | Office |
| Build-Out | Full Build-Out |
| Available | Now |
Unparalleled Exclusive Views.
- Rate includes utilities, building services and property expenses
- Fully Built-Out as Standard Office
- Office intensive layout
- Space is in Excellent Condition
- Can be combined with additional space(s) for up to 48,942 SF of adjacent space
- Natural Light
4th Floor, Ste 400
| Size | 10,000-24,471 SF |
| Term | 5-10 Years |
| Rental Rate | $60.00 /SF/YR |
| Space Use | Office |
| Build-Out | Shell Space |
| Available | 120 Days |
Unparalleled Exclusive Views.
- Rate includes utilities, building services and property expenses
- Office intensive layout
- Space is in Excellent Condition
- Can be combined with additional space(s) for up to 48,942 SF of adjacent space
- Natural Light
7th Floor, Ste 700
| Size | 3,678 SF |
| Term | Negotiable |
| Rental Rate | $74.00 /SF/YR |
| Space Use | Office |
| Build-Out | - |
| Available | December 01, 2026 |
- Rate includes utilities, building services and property expenses
- Space is in Excellent Condition
7th Floor, Ste 720
| Size | 4,156 SF |
| Term | Negotiable |
| Rental Rate | $74.00 /SF/YR |
| Space Use | Office |
| Build-Out | Full Build-Out |
| Available | November 01, 2026 |
- Rate includes utilities, building services and property expenses
- Fully Built-Out as Standard Office
- Space is in Excellent Condition
12th Floor, Ste 1240
| Size | 3,536 SF |
| Term | Negotiable |
| Rental Rate | $72.00 /SF/YR |
| Space Use | Office |
| Build-Out | Spec Suite |
| Available | Now |
Unparalleled Exclusive Views.
- Rate includes utilities, building services and property expenses
- Office intensive layout
- Space is in Excellent Condition
- Natural Light
13th Floor, Ste 1310
| Size | 5,301 SF |
| Term | 5-10 Years |
| Rental Rate | $72.00 /SF/YR |
| Space Use | Office |
| Build-Out | Full Build-Out |
| Available | 30 Days |
See Link to Virtual Tour: https://my.matterport.com/show/?m=nyqNXyC2iWN
- Rate includes utilities, building services and property expenses
- Fully Built-Out as Standard Office
- Mostly Open Floor Plan Layout
- Space is in Excellent Condition
- Natural Light
13th Floor, Ste 1330
| Size | 2,145 SF |
| Term | Negotiable |
| Rental Rate | $72.00 /SF/YR |
| Space Use | Office |
| Build-Out | Spec Suite |
| Available | Now |
Unparalleled Exclusive Views.
- Rate includes utilities, building services and property expenses
- Mostly Open Floor Plan Layout
- Natural Light
13th Floor, Ste 1340
| Size | 2,949 SF |
| Term | 5-10 Years |
| Rental Rate | $72.00 /SF/YR |
| Space Use | Office |
| Build-Out | Spec Suite |
| Available | 60 Days |
Brand new move-in ready SPEC suite! See Virtual Tour: https://my.matterport.com/show/?m=nayDRyQSr8H
- Rate includes utilities, building services and property expenses
- Mostly Open Floor Plan Layout
- Space is in Excellent Condition
- Natural Light
14th Floor, Ste 1420
| Size | 3,217-5,365 SF |
| Term | Negotiable |
| Rental Rate | $74.00 /SF/YR |
| Space Use | Office |
| Build-Out | Full Build-Out |
| Available | Now |
Unparalleled Exclusive Views.
- Rate includes utilities, building services and property expenses
- Fully Built-Out as Standard Office
- Mostly Open Floor Plan Layout
- Space is in Excellent Condition
- Natural Light
14th Floor, Ste 1430
| Size | 2,148-5,365 SF |
| Term | Negotiable |
| Rental Rate | $74.00 /SF/YR |
| Space Use | Office |
| Build-Out | Full Build-Out |
| Available | Now |
Unparalleled Exclusive Views.
- Rate includes utilities, building services and property expenses
- Fully Built-Out as Standard Office
- Mostly Open Floor Plan Layout
- Space is in Excellent Condition
- Natural Light
15th Floor, Ste 1500
| Size | 10,000-24,471 SF |
| Term | 5-10 Years |
| Rental Rate | $69.00 /SF/YR |
| Space Use | Office |
| Build-Out | Shell Space |
| Available | 30 Days |
Unparalleled Exclusive Views.
- Rate includes utilities, building services and property expenses
- Office intensive layout
- Space is in Excellent Condition
- Can be combined with additional space(s) for up to 73,413 SF of adjacent space
- Natural Light
16th Floor, Ste 1600
| Size | 10,000-24,471 SF |
| Term | 5-10 Years |
| Rental Rate | $69.00 /SF/YR |
| Space Use | Office |
| Build-Out | Shell Space |
| Available | 30 Days |
Unparalleled Exclusive Views.
- Rate includes utilities, building services and property expenses
- Office intensive layout
- Space is in Excellent Condition
- Can be combined with additional space(s) for up to 73,413 SF of adjacent space
- Natural Light
17th Floor, Ste 1700
| Size | 10,000-24,471 SF |
| Term | 5-10 Years |
| Rental Rate | $69.00 /SF/YR |
| Space Use | Office |
| Build-Out | Full Build-Out |
| Available | 30 Days |
Unparalleled Exclusive Views.
- Rate includes utilities, building services and property expenses
- Fully Built-Out as Standard Office
- Office intensive layout
- Can be combined with additional space(s) for up to 73,413 SF of adjacent space
- Natural Light
18th Floor, Ste 1850
| Size | 5,000-6,714 SF |
| Term | 5-10 Years |
| Rental Rate | $72.00 /SF/YR |
| Space Use | Office |
| Build-Out | Full Build-Out |
| Available | 30 Days |
Unparalleled Exclusive Views.
- Rate includes utilities, building services and property expenses
- Fully Built-Out as Standard Office
- Office intensive layout
- Natural Light
21st Floor, Ste 2140
| Size | 5,000-6,556 SF |
| Term | Negotiable |
| Rental Rate | $72.00 /SF/YR |
| Space Use | Office |
| Build-Out | Full Build-Out |
| Available | Now |
- Rate includes utilities, building services and property expenses
- Fully Built-Out as Standard Office
- Space is in Excellent Condition
25th Floor, Ste 2540
| Size | 2,711 SF |
| Term | Negotiable |
| Rental Rate | $72.00 /SF/YR |
| Space Use | Office |
| Build-Out | Full Build-Out |
| Available | Now |
Unparalleled Exclusive Views
- Rate includes utilities, building services and property expenses
- Fully Built-Out as Standard Office
- Space is in Excellent Condition
26th Floor, Ste 2620
| Size | 4,554 SF |
| Term | Negotiable |
| Rental Rate | $72.00 /SF/YR |
| Space Use | Office |
| Build-Out | Full Build-Out |
| Available | Now |
Unparalleled Exclusive Views.
- Rate includes utilities, building services and property expenses
- Fully Built-Out as Standard Office
- Office intensive layout
- Space is in Excellent Condition
- Natural Light
26th Floor, Ste 2650
| Size | 5,013 SF |
| Term | Negotiable |
| Rental Rate | $74.00 /SF/YR |
| Space Use | Office |
| Build-Out | Full Build-Out |
| Available | October 01, 2026 |
- Rate includes utilities, building services and property expenses
- Fully Built-Out as Standard Office
- Space is in Excellent Condition
27th Floor, Ste 2700
| Size | 10,000-25,157 SF |
| Term | Negotiable |
| Rental Rate | $71.00 /SF/YR |
| Space Use | Office |
| Build-Out | Spec Suite |
| Available | Now |
Unparalleled Exclusive Views.
- Rate includes utilities, building services and property expenses
- Mostly Open Floor Plan Layout
- Natural Light
Property Overview
Citigroup Center is a 34-story Class A office building with spectacular views of Biscayne Bay. The Citigroup Center is the second largest Class A office building in the State of Florida and features an enhanced multi-tenant monument sign fronting Biscayne Boulevard, on-site property management, nine-level parking garage with designated visitor parking, and 16 high speed elevators servicing 34 floors. It is also connected to the "Four Star" Intercontinental Hotel and tenants can utilize the hotel amenities including fine and casual dining, conference rooms, fitness center, full service spa, florist, Starbucks, fed-ex store, outdoor and interior seating, restaurant/lounge, and a poolside café. In addition, the tower is immediately adjacent to Bayfront Park, and is unobstructed when looking at the skyline from Miami Beach to the east. There was a $20 million renovation of the building including a brand-new building entrance with porte-cochere and valet drop-off located on Chopin Plaza, a modernized glass curtain wall system replacing the existing North and West facades, a completely redesigned Lobby with new, modern finishes and refurbished elevator cabs, and a state-of-the art, tenant exclusive conference center.
- 24 Hour Access
- Bus Line
- Conferencing Facility
- Fitness Center
- Property Manager on Site
- Restaurant
- Signage
- Waterfront
- Wheelchair Accessible
- Reception
- Storage Space
- Natural Light
- Open-Plan
- Secure Storage
- Wi-Fi
- Air Conditioning
- Smoke Detector
Property Facts
Select Tenants
- Floor
- Tenant Name
- Industry
- Multiple
- Citibank
- Finance and Insurance
- 34th
- Duane Morris LLP
- Professional, Scientific, and Technical Services
- 24th
- Harvard Maintenance
- Services
- 25th
- Hughes Hubbard & Reed LLP
- Professional, Scientific, and Technical Services
- 26th
- Jones, Walker, Waechter, Poitevent, Carrere & Dene
- Professional, Scientific, and Technical Services
- 27th
- Kluger, Kaplan, Silverman, Katzen & Levine, P.L.
- Professional, Scientific, and Technical Services
- Multiple
- Morgan Stanley
- Finance and Insurance
- 28th
- Regus
- Real Estate
- Multiple
- Shook, Hardy & Bacon L.L.P
- Professional, Scientific, and Technical Services
- Multiple
- Vitas Healthcare
- Health Care and Social Assistance
Sustainability
Sustainability
LEED Certification Developed by the U.S. Green Building Council (USGBC), the Leadership in Energy and Environmental Design (LEED) is a green building certification program focused on the design, construction, operation, and maintenance of green buildings, homes, and neighborhoods, which aims to help building owners and operators be environmentally responsible and use resources efficiently. LEED certification is a globally recognized symbol of sustainability achievement and leadership. To achieve LEED certification, a project earns points by adhering to prerequisites and credits that address carbon, energy, water, waste, transportation, materials, health and indoor environmental quality. Projects go through a verification and review process and are awarded points that correspond to a level of LEED certification: Platinum (80+ points) Gold (60-79 points) Silver (50-59 points) Certified (40-49 points)
Presented by
Citigroup Center | 201 S Biscayne Blvd
Hmm, there seems to have been an error sending your message. Please try again.
Thanks! Your message was sent.












































