Your email has been sent.
Livingston Place South Tower 222 3rd Ave SW 6,711 - 127,429 SF of 4-Star Office Space Available in Calgary, AB T2P 0B4



Highlights
- Excellent building infrastructure.
- A-Class office tower with large, efficient floor plating.
- Centered between the central business district and the popular Eau Claire Market.
All Available Spaces(9)
Display Rental Rate as
- Space
- Size
- Term
- Rental Rate
- Space Use
- Build-Out
- Available
Newly refurbished with high end finishes. Move-in ready; available immediately.
- Lease rate does not include utilities, property expenses or building services
- 47 Private Offices
- Space is in Excellent Condition
- Security System
- Emergency Lighting
- High end glass doors.
- 4 escalator units servicing the man and+ 15 levels
- Fully Built-Out as Standard Office
- 4 Conference Rooms
- Kitchen
- Natural Light
- Accent Lighting
- Large windows with beautiful views.
- Kitchen space.
Modern 14,150 square foot office space available May 1st, 2026.
- Lease rate does not include utilities, property expenses or building services
- 36 Private Offices
- Space is in Excellent Condition
- Natural Light
- Includes boardroom.
- Fully Built-Out as Standard Office
- 2 Conference Rooms
- Reception Area
- Includes two kitchens.
- Ample natural light.
21 offices, kitchen, file storage and boardroom. Available immediately.
- Lease rate does not include utilities, property expenses or building services
- 21 Private Offices
- Secure Storage
- Emergency Lighting
- Accent Lighting
- Office intensive layout.
- Fully Built-Out as Standard Office
- Kitchen
- Natural Light
- Trading Floor
- New development.
- Ample natural light.
Fully white boxed space. Ready for tenant improvements. Available now.
- Lease rate does not include utilities, property expenses or building services
- Secure Storage
- Emergency Lighting
- High end glass doors.
- Ample natural light.
- Open Floor Plan Layout
- Natural Light
- Accent Lighting
- Secure storage space.
Fully white boxed space , ready for tenant improvements. Available now.
- Lease rate does not include utilities, property expenses or building services
- Security System
- Emergency Lighting
- High end glass doors.
- Open Floor Plan Layout
- Natural Light
- Accent Lighting
- Ample natural light.
6,722 square foot office space with 6 offices, boardroom, meeting room, kitchen, open area, and a reception.
- Lease rate does not include utilities, property expenses or building services
- Open Floor Plan Layout
- Conference Rooms
- Reception Area
- Emergency Lighting
- Meeting room and reception available.
- Fully Built-Out as Standard Office
- 6 Private Offices
- Central Air and Heating
- Natural Light
- Ample natural light.
Fully white boxed space - ready for tenant improvements. Available immediately.
- Lease rate does not include utilities, property expenses or building services
- Central Air and Heating
- Emergency Lighting
- Open Floor Plan Layout
- Natural Light
- Ample natural light.
Space to be demised featuring kitchen and 22 offices. Available immediately.
- Lease rate does not include utilities, property expenses or building services
- 22 Private Offices
- Kitchen
- Emergency Lighting
- Kitchen area.
- Fully Built-Out as Standard Office
- Central Air and Heating
- Natural Light
- Ample natural light.
Currently 2 separate units. Suite 1810 - Kitchen, 1 office and open plan. Suite 1820 - 12 offices, boardroom, and kitchen. Available now.
- Lease rate does not include utilities, property expenses or building services
- Mostly Open Floor Plan Layout
- 1 Conference Room
- Kitchen
- Emergency Lighting
- Open plan.
- Fully Built-Out as Standard Office
- 28 Private Offices
- Central Air and Heating
- Natural Light
- Kitchen.
- Natural light.
| Space | Size | Term | Rental Rate | Space Use | Build-Out | Available |
| 3rd Floor, Ste 300 | 22,629 SF | Negotiable | Upon Request Upon Request Upon Request Upon Request | Office | Full Build-Out | Now |
| 4th Floor, Ste 440 | 14,150 SF | Negotiable | Upon Request Upon Request Upon Request Upon Request | Office | Full Build-Out | Now |
| 4th Floor, Ste 450 | 8,651 SF | Negotiable | Upon Request Upon Request Upon Request Upon Request | Office | Full Build-Out | Now |
| 5th Floor, Ste 550 | 12,847 SF | Negotiable | Upon Request Upon Request Upon Request Upon Request | Office | Shell Space | Now |
| 6th Floor, Ste 600 | 22,860 SF | Negotiable | Upon Request Upon Request Upon Request Upon Request | Office | Shell Space | Now |
| 10th Floor, Ste 1024 | 6,711-6,722 SF | Negotiable | Upon Request Upon Request Upon Request Upon Request | Office | Full Build-Out | September 01, 2026 |
| 10th Floor, Ste 1040 | 8,140 SF | Negotiable | Upon Request Upon Request Upon Request Upon Request | Office | Shell Space | Now |
| 14th Floor, Ste 1410 | 11,735 SF | Negotiable | Upon Request Upon Request Upon Request Upon Request | Office | Full Build-Out | Now |
| 18th Floor, Ste 1800 | 19,695 SF | Negotiable | Upon Request Upon Request Upon Request Upon Request | Office | Full Build-Out | Now |
3rd Floor, Ste 300
| Size |
| 22,629 SF |
| Term |
| Negotiable |
| Rental Rate |
| Upon Request Upon Request Upon Request Upon Request |
| Space Use |
| Office |
| Build-Out |
| Full Build-Out |
| Available |
| Now |
4th Floor, Ste 440
| Size |
| 14,150 SF |
| Term |
| Negotiable |
| Rental Rate |
| Upon Request Upon Request Upon Request Upon Request |
| Space Use |
| Office |
| Build-Out |
| Full Build-Out |
| Available |
| Now |
4th Floor, Ste 450
| Size |
| 8,651 SF |
| Term |
| Negotiable |
| Rental Rate |
| Upon Request Upon Request Upon Request Upon Request |
| Space Use |
| Office |
| Build-Out |
| Full Build-Out |
| Available |
| Now |
5th Floor, Ste 550
| Size |
| 12,847 SF |
| Term |
| Negotiable |
| Rental Rate |
| Upon Request Upon Request Upon Request Upon Request |
| Space Use |
| Office |
| Build-Out |
| Shell Space |
| Available |
| Now |
6th Floor, Ste 600
| Size |
| 22,860 SF |
| Term |
| Negotiable |
| Rental Rate |
| Upon Request Upon Request Upon Request Upon Request |
| Space Use |
| Office |
| Build-Out |
| Shell Space |
| Available |
| Now |
10th Floor, Ste 1024
| Size |
| 6,711-6,722 SF |
| Term |
| Negotiable |
| Rental Rate |
| Upon Request Upon Request Upon Request Upon Request |
| Space Use |
| Office |
| Build-Out |
| Full Build-Out |
| Available |
| September 01, 2026 |
10th Floor, Ste 1040
| Size |
| 8,140 SF |
| Term |
| Negotiable |
| Rental Rate |
| Upon Request Upon Request Upon Request Upon Request |
| Space Use |
| Office |
| Build-Out |
| Shell Space |
| Available |
| Now |
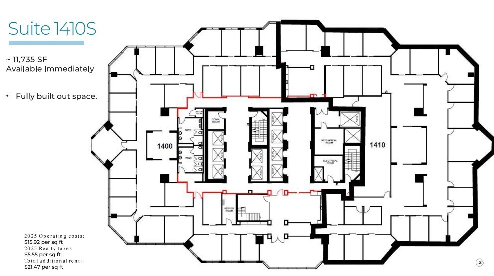
14th Floor, Ste 1410
| Size |
| 11,735 SF |
| Term |
| Negotiable |
| Rental Rate |
| Upon Request Upon Request Upon Request Upon Request |
| Space Use |
| Office |
| Build-Out |
| Full Build-Out |
| Available |
| Now |
18th Floor, Ste 1800
| Size |
| 19,695 SF |
| Term |
| Negotiable |
| Rental Rate |
| Upon Request Upon Request Upon Request Upon Request |
| Space Use |
| Office |
| Build-Out |
| Full Build-Out |
| Available |
| Now |
3rd Floor, Ste 300
| Size | 22,629 SF |
| Term | Negotiable |
| Rental Rate | Upon Request |
| Space Use | Office |
| Build-Out | Full Build-Out |
| Available | Now |
Newly refurbished with high end finishes. Move-in ready; available immediately.
- Lease rate does not include utilities, property expenses or building services
- Fully Built-Out as Standard Office
- 47 Private Offices
- 4 Conference Rooms
- Space is in Excellent Condition
- Kitchen
- Security System
- Natural Light
- Emergency Lighting
- Accent Lighting
- High end glass doors.
- Large windows with beautiful views.
- 4 escalator units servicing the man and+ 15 levels
- Kitchen space.
4th Floor, Ste 440
| Size | 14,150 SF |
| Term | Negotiable |
| Rental Rate | Upon Request |
| Space Use | Office |
| Build-Out | Full Build-Out |
| Available | Now |
Modern 14,150 square foot office space available May 1st, 2026.
- Lease rate does not include utilities, property expenses or building services
- Fully Built-Out as Standard Office
- 36 Private Offices
- 2 Conference Rooms
- Space is in Excellent Condition
- Reception Area
- Natural Light
- Includes two kitchens.
- Includes boardroom.
- Ample natural light.
4th Floor, Ste 450
| Size | 8,651 SF |
| Term | Negotiable |
| Rental Rate | Upon Request |
| Space Use | Office |
| Build-Out | Full Build-Out |
| Available | Now |
21 offices, kitchen, file storage and boardroom. Available immediately.
- Lease rate does not include utilities, property expenses or building services
- Fully Built-Out as Standard Office
- 21 Private Offices
- Kitchen
- Secure Storage
- Natural Light
- Emergency Lighting
- Trading Floor
- Accent Lighting
- New development.
- Office intensive layout.
- Ample natural light.
5th Floor, Ste 550
| Size | 12,847 SF |
| Term | Negotiable |
| Rental Rate | Upon Request |
| Space Use | Office |
| Build-Out | Shell Space |
| Available | Now |
Fully white boxed space. Ready for tenant improvements. Available now.
- Lease rate does not include utilities, property expenses or building services
- Open Floor Plan Layout
- Secure Storage
- Natural Light
- Emergency Lighting
- Accent Lighting
- High end glass doors.
- Secure storage space.
- Ample natural light.
6th Floor, Ste 600
| Size | 22,860 SF |
| Term | Negotiable |
| Rental Rate | Upon Request |
| Space Use | Office |
| Build-Out | Shell Space |
| Available | Now |
Fully white boxed space , ready for tenant improvements. Available now.
- Lease rate does not include utilities, property expenses or building services
- Open Floor Plan Layout
- Security System
- Natural Light
- Emergency Lighting
- Accent Lighting
- High end glass doors.
- Ample natural light.
10th Floor, Ste 1024
| Size | 6,711-6,722 SF |
| Term | Negotiable |
| Rental Rate | Upon Request |
| Space Use | Office |
| Build-Out | Full Build-Out |
| Available | September 01, 2026 |
6,722 square foot office space with 6 offices, boardroom, meeting room, kitchen, open area, and a reception.
- Lease rate does not include utilities, property expenses or building services
- Fully Built-Out as Standard Office
- Open Floor Plan Layout
- 6 Private Offices
- Conference Rooms
- Central Air and Heating
- Reception Area
- Natural Light
- Emergency Lighting
- Ample natural light.
- Meeting room and reception available.
10th Floor, Ste 1040
| Size | 8,140 SF |
| Term | Negotiable |
| Rental Rate | Upon Request |
| Space Use | Office |
| Build-Out | Shell Space |
| Available | Now |
Fully white boxed space - ready for tenant improvements. Available immediately.
- Lease rate does not include utilities, property expenses or building services
- Open Floor Plan Layout
- Central Air and Heating
- Natural Light
- Emergency Lighting
- Ample natural light.
14th Floor, Ste 1410
| Size | 11,735 SF |
| Term | Negotiable |
| Rental Rate | Upon Request |
| Space Use | Office |
| Build-Out | Full Build-Out |
| Available | Now |
Space to be demised featuring kitchen and 22 offices. Available immediately.
- Lease rate does not include utilities, property expenses or building services
- Fully Built-Out as Standard Office
- 22 Private Offices
- Central Air and Heating
- Kitchen
- Natural Light
- Emergency Lighting
- Ample natural light.
- Kitchen area.
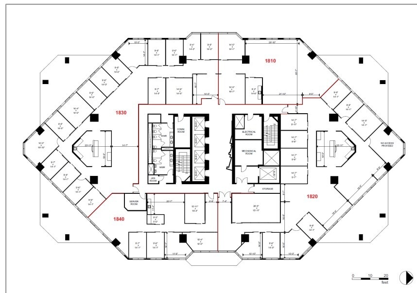
18th Floor, Ste 1800
| Size | 19,695 SF |
| Term | Negotiable |
| Rental Rate | Upon Request |
| Space Use | Office |
| Build-Out | Full Build-Out |
| Available | Now |
Currently 2 separate units. Suite 1810 - Kitchen, 1 office and open plan. Suite 1820 - 12 offices, boardroom, and kitchen. Available now.
- Lease rate does not include utilities, property expenses or building services
- Fully Built-Out as Standard Office
- Mostly Open Floor Plan Layout
- 28 Private Offices
- 1 Conference Room
- Central Air and Heating
- Kitchen
- Natural Light
- Emergency Lighting
- Kitchen.
- Open plan.
- Natural light.
Property Overview
This 435,00 SF 23-storey office tower is situated prominently in Calgary's downtown office district. Overlooking the Bow River, Livingston Place is one of Calgary's premier office complexes.
- Bus Line
- Conferencing Facility
- Fitness Center
- Plus 15
- Outdoor Seating
Property Facts
Sustainability
Sustainability
LEED Certification Led by the Canada Green Building Council (CAGBC), the Leadership in Energy and Environmental Design (LEED) is a green building certification program focused on the design, construction, operation, and maintenance of green buildings, homes, and neighborhoods, which aims to help building owners and operators be environmentally responsible and use resources efficiently. LEED certification is a globally recognized symbol of sustainability achievement and leadership. To achieve LEED certification, a project earns points by adhering to prerequisites and credits that address carbon, energy, water, waste, transportation, materials, health and indoor environmental quality. Projects go through a verification and review process and are awarded points that correspond to a level of LEED certification: Platinum (80+ points) Gold (60-79 points) Silver (50-59 points) Certified (40-49 points)
Presented by
Livingston Place South Tower | 222 3rd Ave SW
Hmm, there seems to have been an error sending your message. Please try again.
Thanks! Your message was sent.















