Your email has been sent.
Park Highlights
- Busy Business Park with heavy customer traffic
- 24 hour access
- Security cameras
- Conveniently located minutes from I-45 with easy access to the highway
- Monument signage
- 3-phase 480 electrical in the warehouse
Park Facts
Features and Amenities
- 24 Hour Access
- Dedicated Turn Lane
- Restaurant
- Signage
- Monument Signage
Display Rental Rate as
- Space
- Size
- Term
- Rental Rate
- Space Use
- Build-Out
- Available
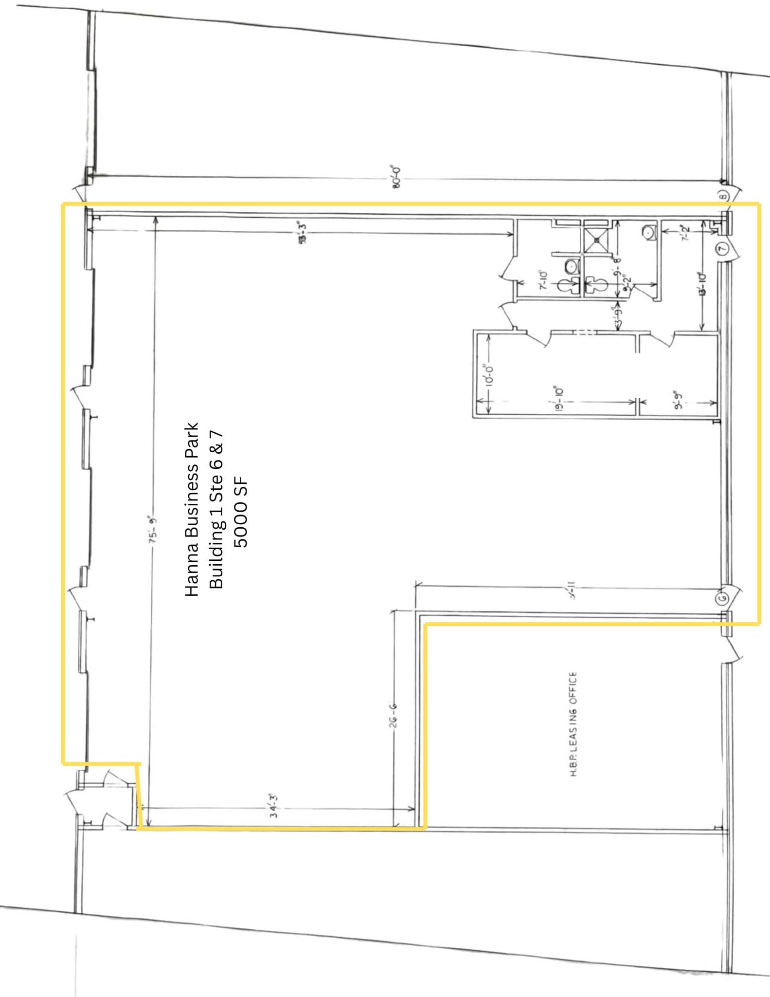
*Price Reduction* Office/Warehouse/Flex - 5,000 SF Building 1 Ste. 6 & 7 is approximately 650 SF of office build-out and 4,350 SF of warehouse space. It offers a reception area, 2 offices, and 2 ADA restrooms, one with a shower. It has 3 grade level roll-up doors. The lease rate is: Base Rate: $.80 / SF + $.46 / SF NNN = $1.26/SF = $6,300.00 per month. (NNN Lease) TI available
- Lease rate does not include utilities, property expenses or building services
- 3 Drive Ins
- Reception Area
- Secure Storage
- Shower Facilities
- Wheelchair Accessible
- Includes 650 SF of dedicated office space
- Central Air and Heating
- Private Restrooms
- Emergency Lighting
- After Hours HVAC Available
| Space | Size | Term | Rental Rate | Space Use | Build-Out | Available |
| 1st Floor - 106 & 107 | 5,000 SF | 3-10 Years | $9.60 /SF/YR $0.80 /SF/MO $48,000 /YR $4,000 /MO | Flex | Full Build-Out | Now |
26797 Hanna Rd - 1st Floor - 106 & 107
- Space
- Size
- Term
- Rental Rate
- Space Use
- Build-Out
- Available
Office/Warehouse – 2,000 SF - Building 2 Suite 4 is approximately 575 SF of office and 1,425 SF of warehouse space. It has a reception, 2 offices, a kitchenette and a restroom. *The warehouse is fully air-conditioned.* The lease rate is: $.85 / SF Base + $.43 / SF NNN = $1.28/SF = $2,560.00 per month. *First full month free*
- Lease rate does not include utilities, property expenses or building services
- 1 Drive Bay
- Reception Area
- Secure Storage
- Emergency Lighting
- After Hours HVAC Available
- Includes 575 SF of dedicated office space
- Central Air and Heating
- Private Restrooms
- Drop Ceilings
- High Ceilings
- Exposed Ceiling
Office/Warehouse – 4,000 SF Building 2 Ste 5 & 6 is approximately 3,070 SF of updated office space with a reception, large break area, enormous bullpen, two bathrooms, six offices, one executive office and approximately 930 SF warehouse space. It has two grade-level roll-up doors. The lease rate is: $.90 / SF Base + .43 / SF NNN = $1.33 = $5,320 per month. *First full month free*
- Lease rate does not include utilities, property expenses or building services
- Space is in Excellent Condition
- Central Air and Heating
- Private Restrooms
- Emergency Lighting
- Conference Rooms
- Includes 3,070 SF of dedicated office space
- 2 Drive Ins
- Reception Area
- Drop Ceilings
- After Hours HVAC Available
| Space | Size | Term | Rental Rate | Space Use | Build-Out | Available |
| 1st Floor - 4 | 2,000 SF | 3-10 Years | $10.20 /SF/YR $0.85 /SF/MO $20,400 /YR $1,700 /MO | Flex | Full Build-Out | Now |
| 1st Floor - 5 & 6 | 4,000 SF | 3-10 Years | $10.80 /SF/YR $0.90 /SF/MO $43,200 /YR $3,600 /MO | Flex | Full Build-Out | Now |
26797 Hanna Rd - 1st Floor - 4
26797 Hanna Rd - 1st Floor - 5 & 6
- Space
- Size
- Term
- Rental Rate
- Space Use
- Build-Out
- Available
*Sub-Lease* Building 6 Ste. 605 Office/Warehouse - 3,000 SF – It is approximately 600 SF of office and 2,400 SF of warehouse space. It has a reception, 2 offices, kitchenette, and ADA restroom. It has 1 grade level roll-up door. The Modified-Gross Sub-lease rate is: $3,660.00 per month – Sub-lease ends 9/30/2026 The NNN lease rate beginning 10/1/2026 is: $0.90 / SF Base + $.44 / SF NNN = $1.34/SF = $4,020.00 per month.
- Listed rate may not include certain utilities, building services and property expenses
- Space is in Excellent Condition
- Central Air and Heating
- Reception Area
- Secure Storage
- Emergency Lighting
- After Hours HVAC Available
- Includes 600 SF of dedicated office space
- 1 Drive Bay
- Partitioned Offices
- Private Restrooms
- Drop Ceilings
- High Ceilings
- Exposed Ceiling
| Space | Size | Term | Rental Rate | Space Use | Build-Out | Available |
| 1st Floor - 605 | 3,000 SF | Negotiable | $14.64 /SF/YR $1.22 /SF/MO $43,920 /YR $3,660 /MO | Flex | Full Build-Out | June 01, 2026 |
26803 Hanna Rd - 1st Floor - 605
- Space
- Size
- Term
- Rental Rate
- Space Use
- Build-Out
- Available
Office/Warehouse – 2,250 SF – This space will be available for lease on August 1, 2026. Building 9 Ste 901 is approximately 1,269 SF of office and 981 SF of warehouse space. Currently operating as a catering kitchen, this space provides a reception, large bullpen area, 12 X 12 office and ADA restroom. It has 1 grade level roll-up door in the front of the suite. While this space can be leased as a kitchen, the current tenant is removing all kitchen-specific equipment. The lease rate is: $1.00 / SF Base + $.42 / SF NNN = $1.42/SF = $3,195.00 per month. TI available *First full month free* This space will be available for lease on August 1, 2026.
- Lease rate does not include utilities, property expenses or building services
- 1 Drive Bay
- Includes 1,269 SF of dedicated office space
Building 9 Ste. 902 Office/Warehouse - 2,250 SF Approximately 522 SF of office and 1,728 SF of warehouse space. Has a reception, bullpen/open concept office area, data center, kitchenette, and ADA restroom. Provides multiple access points into the warehouse. Has 1 grade level roll-up door in the front of the suite. Lease rate is: $1.00 / SF Base + $.42 / SF NNN = $1.42/SF = $3,195.00 per month. *First full month free*
- Lease rate does not include utilities, property expenses or building services
- 1 Drive Bay
- Reception Area
- Secure Storage
- Emergency Lighting
- After Hours HVAC Available
- Includes 522 SF of dedicated office space
- Central Air and Heating
- Private Restrooms
- Drop Ceilings
- High Ceilings
- Exposed Ceiling
| Space | Size | Term | Rental Rate | Space Use | Build-Out | Available |
| 1st Floor - 901 | 2,250 SF | 3-10 Years | $12.00 /SF/YR $1.00 /SF/MO $27,000 /YR $2,250 /MO | Flex | Full Build-Out | August 01, 2026 |
| 1st Floor - 902 | 2,250 SF | 3-10 Years | $12.00 /SF/YR $1.00 /SF/MO $27,000 /YR $2,250 /MO | Flex | Full Build-Out | Now |
26803 Hanna Rd - 1st Floor - 901
26803 Hanna Rd - 1st Floor - 902
- Space
- Size
- Term
- Rental Rate
- Space Use
- Build-Out
- Available
*Price Reduction* Office/Warehouse/Flex - 5,000 SF Building 1 Ste. 6 & 7 is approximately 650 SF of office build-out and 4,350 SF of warehouse space. It offers a reception area, 2 offices, and 2 ADA restrooms, one with a shower. It has 3 grade level roll-up doors. The lease rate is: Base Rate: $.80 / SF + $.46 / SF NNN = $1.26/SF = $6,300.00 per month. (NNN Lease) TI available
- Lease rate does not include utilities, property expenses or building services
- 3 Drive Ins
- Reception Area
- Secure Storage
- Shower Facilities
- Wheelchair Accessible
- Includes 650 SF of dedicated office space
- Central Air and Heating
- Private Restrooms
- Emergency Lighting
- After Hours HVAC Available
| Space | Size | Term | Rental Rate | Space Use | Build-Out | Available |
| 1st Floor - 106 & 107 | 5,000 SF | 3-10 Years | $9.60 /SF/YR $0.80 /SF/MO $48,000 /YR $4,000 /MO | Flex | Full Build-Out | Now |
26797 Hanna Rd - 1st Floor - 106 & 107
- Space
- Size
- Term
- Rental Rate
- Space Use
- Build-Out
- Available
Office/Warehouse – 2,000 SF - Building 2 Suite 4 is approximately 575 SF of office and 1,425 SF of warehouse space. It has a reception, 2 offices, a kitchenette and a restroom. *The warehouse is fully air-conditioned.* The lease rate is: $.85 / SF Base + $.43 / SF NNN = $1.28/SF = $2,560.00 per month. *First full month free*
- Lease rate does not include utilities, property expenses or building services
- 1 Drive Bay
- Reception Area
- Secure Storage
- Emergency Lighting
- After Hours HVAC Available
- Includes 575 SF of dedicated office space
- Central Air and Heating
- Private Restrooms
- Drop Ceilings
- High Ceilings
- Exposed Ceiling
Office/Warehouse – 4,000 SF Building 2 Ste 5 & 6 is approximately 3,070 SF of updated office space with a reception, large break area, enormous bullpen, two bathrooms, six offices, one executive office and approximately 930 SF warehouse space. It has two grade-level roll-up doors. The lease rate is: $.90 / SF Base + .43 / SF NNN = $1.33 = $5,320 per month. *First full month free*
- Lease rate does not include utilities, property expenses or building services
- Space is in Excellent Condition
- Central Air and Heating
- Private Restrooms
- Emergency Lighting
- Conference Rooms
- Includes 3,070 SF of dedicated office space
- 2 Drive Ins
- Reception Area
- Drop Ceilings
- After Hours HVAC Available
| Space | Size | Term | Rental Rate | Space Use | Build-Out | Available |
| 1st Floor - 4 | 2,000 SF | 3-10 Years | $10.20 /SF/YR $0.85 /SF/MO $20,400 /YR $1,700 /MO | Flex | Full Build-Out | Now |
| 1st Floor - 5 & 6 | 4,000 SF | 3-10 Years | $10.80 /SF/YR $0.90 /SF/MO $43,200 /YR $3,600 /MO | Flex | Full Build-Out | Now |
26797 Hanna Rd - 1st Floor - 4
26797 Hanna Rd - 1st Floor - 5 & 6
- Space
- Size
- Term
- Rental Rate
- Space Use
- Build-Out
- Available
Retail/Office – 13,500 SF – Building 5, Ste 501 This space will be available for lease on June 1, 2027. Currently leased and fitted as a beautiful dance studio, this space provides a reception, large common areas, multiple large rooms and offices, 4 bathrooms (one with a locker room area), storage room, and kitchenette/breakroom. It has 3 grade level roll-up doors. While this space can be leased as a dance studio, the current tenant will be removing the dance floors (floated & marley), mirrors, and ballet barres from the dance rooms. The rest of the buildout will remain. This space can be refitted to a fully retail space. It is located at the front of the business park, with frontage on Hanna Road and directly next to the new Oak Ridge North Plaza District, currently being developed. Rate: $1.29 / SF Base + $.46 / SF NNN = $1.75/SF = $23,625.00 per month. TI available *First full month free* This space will be available for lease on March 1, 2027.
- Lease rate does not include utilities, property expenses or building services
- Highly Desirable End Cap Space
- Central Air and Heating
- Corner Space
- After Hours HVAC Available
- Fully Built-Out as Specialty Space
- Space is in Excellent Condition
- Private Restrooms
- Emergency Lighting
| Space | Size | Term | Rental Rate | Space Use | Build-Out | Available |
| 1st Floor, Ste 501-506 | 13,500 SF | 3-10 Years | $15.48 /SF/YR $1.29 /SF/MO $208,980 /YR $17,415 /MO | Retail | Full Build-Out | March 01, 2027 |
26803 Hanna Rd - 1st Floor - Ste 501-506
- Space
- Size
- Term
- Rental Rate
- Space Use
- Build-Out
- Available
*Sub-Lease* Building 6 Ste. 605 Office/Warehouse - 3,000 SF – It is approximately 600 SF of office and 2,400 SF of warehouse space. It has a reception, 2 offices, kitchenette, and ADA restroom. It has 1 grade level roll-up door. The Modified-Gross Sub-lease rate is: $3,660.00 per month – Sub-lease ends 9/30/2026 The NNN lease rate beginning 10/1/2026 is: $0.90 / SF Base + $.44 / SF NNN = $1.34/SF = $4,020.00 per month.
- Listed rate may not include certain utilities, building services and property expenses
- Space is in Excellent Condition
- Central Air and Heating
- Reception Area
- Secure Storage
- Emergency Lighting
- After Hours HVAC Available
- Includes 600 SF of dedicated office space
- 1 Drive Bay
- Partitioned Offices
- Private Restrooms
- Drop Ceilings
- High Ceilings
- Exposed Ceiling
| Space | Size | Term | Rental Rate | Space Use | Build-Out | Available |
| 1st Floor - 605 | 3,000 SF | Negotiable | $14.64 /SF/YR $1.22 /SF/MO $43,920 /YR $3,660 /MO | Flex | Full Build-Out | June 01, 2026 |
26803 Hanna Rd - 1st Floor - 605
- Space
- Size
- Term
- Rental Rate
- Space Use
- Build-Out
- Available
Office/Warehouse – 2,250 SF – This space will be available for lease on August 1, 2026. Building 9 Ste 901 is approximately 1,269 SF of office and 981 SF of warehouse space. Currently operating as a catering kitchen, this space provides a reception, large bullpen area, 12 X 12 office and ADA restroom. It has 1 grade level roll-up door in the front of the suite. While this space can be leased as a kitchen, the current tenant is removing all kitchen-specific equipment. The lease rate is: $1.00 / SF Base + $.42 / SF NNN = $1.42/SF = $3,195.00 per month. TI available *First full month free* This space will be available for lease on August 1, 2026.
- Lease rate does not include utilities, property expenses or building services
- 1 Drive Bay
- Includes 1,269 SF of dedicated office space
Building 9 Ste. 902 Office/Warehouse - 2,250 SF Approximately 522 SF of office and 1,728 SF of warehouse space. Has a reception, bullpen/open concept office area, data center, kitchenette, and ADA restroom. Provides multiple access points into the warehouse. Has 1 grade level roll-up door in the front of the suite. Lease rate is: $1.00 / SF Base + $.42 / SF NNN = $1.42/SF = $3,195.00 per month. *First full month free*
- Lease rate does not include utilities, property expenses or building services
- 1 Drive Bay
- Reception Area
- Secure Storage
- Emergency Lighting
- After Hours HVAC Available
- Includes 522 SF of dedicated office space
- Central Air and Heating
- Private Restrooms
- Drop Ceilings
- High Ceilings
- Exposed Ceiling
| Space | Size | Term | Rental Rate | Space Use | Build-Out | Available |
| 1st Floor - 901 | 2,250 SF | 3-10 Years | $12.00 /SF/YR $1.00 /SF/MO $27,000 /YR $2,250 /MO | Flex | Full Build-Out | August 01, 2026 |
| 1st Floor - 902 | 2,250 SF | 3-10 Years | $12.00 /SF/YR $1.00 /SF/MO $27,000 /YR $2,250 /MO | Flex | Full Build-Out | Now |
26803 Hanna Rd - 1st Floor - 901
26803 Hanna Rd - 1st Floor - 902
26797 Hanna Rd - 1st Floor - 106 & 107
| Size | 5,000 SF |
| Term | 3-10 Years |
| Rental Rate | $9.60 /SF/YR |
| Space Use | Flex |
| Build-Out | Full Build-Out |
| Available | Now |
*Price Reduction* Office/Warehouse/Flex - 5,000 SF Building 1 Ste. 6 & 7 is approximately 650 SF of office build-out and 4,350 SF of warehouse space. It offers a reception area, 2 offices, and 2 ADA restrooms, one with a shower. It has 3 grade level roll-up doors. The lease rate is: Base Rate: $.80 / SF + $.46 / SF NNN = $1.26/SF = $6,300.00 per month. (NNN Lease) TI available
- Lease rate does not include utilities, property expenses or building services
- Includes 650 SF of dedicated office space
- 3 Drive Ins
- Central Air and Heating
- Reception Area
- Private Restrooms
- Secure Storage
- Emergency Lighting
- Shower Facilities
- After Hours HVAC Available
- Wheelchair Accessible
26797 Hanna Rd - 1st Floor - 4
| Size | 2,000 SF |
| Term | 3-10 Years |
| Rental Rate | $10.20 /SF/YR |
| Space Use | Flex |
| Build-Out | Full Build-Out |
| Available | Now |
Office/Warehouse – 2,000 SF - Building 2 Suite 4 is approximately 575 SF of office and 1,425 SF of warehouse space. It has a reception, 2 offices, a kitchenette and a restroom. *The warehouse is fully air-conditioned.* The lease rate is: $.85 / SF Base + $.43 / SF NNN = $1.28/SF = $2,560.00 per month. *First full month free*
- Lease rate does not include utilities, property expenses or building services
- Includes 575 SF of dedicated office space
- 1 Drive Bay
- Central Air and Heating
- Reception Area
- Private Restrooms
- Secure Storage
- Drop Ceilings
- Emergency Lighting
- High Ceilings
- After Hours HVAC Available
- Exposed Ceiling
26797 Hanna Rd - 1st Floor - 5 & 6
| Size | 4,000 SF |
| Term | 3-10 Years |
| Rental Rate | $10.80 /SF/YR |
| Space Use | Flex |
| Build-Out | Full Build-Out |
| Available | Now |
Office/Warehouse – 4,000 SF Building 2 Ste 5 & 6 is approximately 3,070 SF of updated office space with a reception, large break area, enormous bullpen, two bathrooms, six offices, one executive office and approximately 930 SF warehouse space. It has two grade-level roll-up doors. The lease rate is: $.90 / SF Base + .43 / SF NNN = $1.33 = $5,320 per month. *First full month free*
- Lease rate does not include utilities, property expenses or building services
- Includes 3,070 SF of dedicated office space
- Space is in Excellent Condition
- 2 Drive Ins
- Central Air and Heating
- Reception Area
- Private Restrooms
- Drop Ceilings
- Emergency Lighting
- After Hours HVAC Available
- Conference Rooms
26803 Hanna Rd - 1st Floor - Ste 501-506
| Size | 13,500 SF |
| Term | 3-10 Years |
| Rental Rate | $15.48 /SF/YR |
| Space Use | Retail |
| Build-Out | Full Build-Out |
| Available | March 01, 2027 |
Retail/Office – 13,500 SF – Building 5, Ste 501 This space will be available for lease on June 1, 2027. Currently leased and fitted as a beautiful dance studio, this space provides a reception, large common areas, multiple large rooms and offices, 4 bathrooms (one with a locker room area), storage room, and kitchenette/breakroom. It has 3 grade level roll-up doors. While this space can be leased as a dance studio, the current tenant will be removing the dance floors (floated & marley), mirrors, and ballet barres from the dance rooms. The rest of the buildout will remain. This space can be refitted to a fully retail space. It is located at the front of the business park, with frontage on Hanna Road and directly next to the new Oak Ridge North Plaza District, currently being developed. Rate: $1.29 / SF Base + $.46 / SF NNN = $1.75/SF = $23,625.00 per month. TI available *First full month free* This space will be available for lease on March 1, 2027.
- Lease rate does not include utilities, property expenses or building services
- Fully Built-Out as Specialty Space
- Highly Desirable End Cap Space
- Space is in Excellent Condition
- Central Air and Heating
- Private Restrooms
- Corner Space
- Emergency Lighting
- After Hours HVAC Available
26803 Hanna Rd - 1st Floor - 605
| Size | 3,000 SF |
| Term | Negotiable |
| Rental Rate | $14.64 /SF/YR |
| Space Use | Flex |
| Build-Out | Full Build-Out |
| Available | June 01, 2026 |
*Sub-Lease* Building 6 Ste. 605 Office/Warehouse - 3,000 SF – It is approximately 600 SF of office and 2,400 SF of warehouse space. It has a reception, 2 offices, kitchenette, and ADA restroom. It has 1 grade level roll-up door. The Modified-Gross Sub-lease rate is: $3,660.00 per month – Sub-lease ends 9/30/2026 The NNN lease rate beginning 10/1/2026 is: $0.90 / SF Base + $.44 / SF NNN = $1.34/SF = $4,020.00 per month.
- Listed rate may not include certain utilities, building services and property expenses
- Includes 600 SF of dedicated office space
- Space is in Excellent Condition
- 1 Drive Bay
- Central Air and Heating
- Partitioned Offices
- Reception Area
- Private Restrooms
- Secure Storage
- Drop Ceilings
- Emergency Lighting
- High Ceilings
- After Hours HVAC Available
- Exposed Ceiling
26803 Hanna Rd - 1st Floor - 901
| Size | 2,250 SF |
| Term | 3-10 Years |
| Rental Rate | $12.00 /SF/YR |
| Space Use | Flex |
| Build-Out | Full Build-Out |
| Available | August 01, 2026 |
Office/Warehouse – 2,250 SF – This space will be available for lease on August 1, 2026. Building 9 Ste 901 is approximately 1,269 SF of office and 981 SF of warehouse space. Currently operating as a catering kitchen, this space provides a reception, large bullpen area, 12 X 12 office and ADA restroom. It has 1 grade level roll-up door in the front of the suite. While this space can be leased as a kitchen, the current tenant is removing all kitchen-specific equipment. The lease rate is: $1.00 / SF Base + $.42 / SF NNN = $1.42/SF = $3,195.00 per month. TI available *First full month free* This space will be available for lease on August 1, 2026.
- Lease rate does not include utilities, property expenses or building services
- Includes 1,269 SF of dedicated office space
- 1 Drive Bay
26803 Hanna Rd - 1st Floor - 902
| Size | 2,250 SF |
| Term | 3-10 Years |
| Rental Rate | $12.00 /SF/YR |
| Space Use | Flex |
| Build-Out | Full Build-Out |
| Available | Now |
Building 9 Ste. 902 Office/Warehouse - 2,250 SF Approximately 522 SF of office and 1,728 SF of warehouse space. Has a reception, bullpen/open concept office area, data center, kitchenette, and ADA restroom. Provides multiple access points into the warehouse. Has 1 grade level roll-up door in the front of the suite. Lease rate is: $1.00 / SF Base + $.42 / SF NNN = $1.42/SF = $3,195.00 per month. *First full month free*
- Lease rate does not include utilities, property expenses or building services
- Includes 522 SF of dedicated office space
- 1 Drive Bay
- Central Air and Heating
- Reception Area
- Private Restrooms
- Secure Storage
- Drop Ceilings
- Emergency Lighting
- High Ceilings
- After Hours HVAC Available
- Exposed Ceiling
Park Overview
Hanna Business Park has been developed to meet the needs of the Woodlands and Oak Ridge North's industrial, office and flex-space demands. It is in an office-like setting due to landscaping and design, but is a full-service office warehouse facility. HBP provides retail space at the entrance with a restaurant, esthetician, barber shop and dance studio. There is also a full -service gym, a physical therapy studio, and 2 children's play centers located at Hanna Business Park.
Presented by
Hanna Business Park | Conroe, TX 77385
Hmm, there seems to have been an error sending your message. Please try again.
Thanks! Your message was sent.





















