Your email has been sent.
Highlights
- Prime Location: Situated on N 7th Avenue, providing easy access and high visibility
- Close proximity to Dignity Health St. Joseph's Hospital and Medical Center
- Open Floor Plan: Flexible layout suitable for various medical office needs
- Convenient access to I-10, I-17 and SR-51
- Signage Opportunity
All Available Space(1)
Display Rental Rate as
- Space
- Size
- Term
- Rental Rate
- Space Use
- Build-Out
- Available
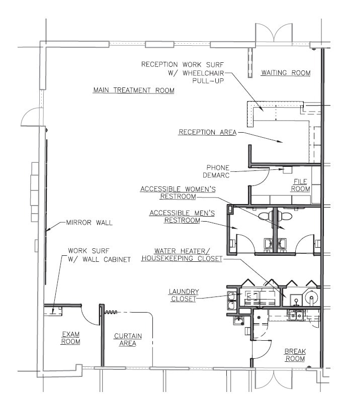
This versatile medical office building offers a prime location perfect for any user in need of an open floor plan. The space features a welcoming reception area, a private room for patient consultations, two restrooms, a break area, and a convenient laundry hookup. Ideal for medical professionals looking for a functional and well-located office space in the heart of Phoenix.
- Lease rate does not include utilities, property expenses or building services
- Fits 7 - 20 People
- Reception Area
- Break Area
- Flexible open floor plan adaptable to various me
- Open Floor Plan Layout
- Space is in Excellent Condition
- Private Restrooms
- Prime location on N 7th
| Space | Size | Term | Rental Rate | Space Use | Build-Out | Available |
| 1st Floor, Ste 101 | 2,413 SF | Negotiable | $20.00 /SF/YR $1.67 /SF/MO $48,260 /YR $4,022 /MO | Office/Medical | Partial Build-Out | Now |
1st Floor, Ste 101
| Size |
| 2,413 SF |
| Term |
| Negotiable |
| Rental Rate |
| $20.00 /SF/YR $1.67 /SF/MO $48,260 /YR $4,022 /MO |
| Space Use |
| Office/Medical |
| Build-Out |
| Partial Build-Out |
| Available |
| Now |
1st Floor, Ste 101
| Size | 2,413 SF |
| Term | Negotiable |
| Rental Rate | $20.00 /SF/YR |
| Space Use | Office/Medical |
| Build-Out | Partial Build-Out |
| Available | Now |
This versatile medical office building offers a prime location perfect for any user in need of an open floor plan. The space features a welcoming reception area, a private room for patient consultations, two restrooms, a break area, and a convenient laundry hookup. Ideal for medical professionals looking for a functional and well-located office space in the heart of Phoenix.
- Lease rate does not include utilities, property expenses or building services
- Open Floor Plan Layout
- Fits 7 - 20 People
- Space is in Excellent Condition
- Reception Area
- Private Restrooms
- Break Area
- Prime location on N 7th
- Flexible open floor plan adaptable to various me
Property Overview
Close proximity to Dignity Health St. Joseph's Hospital and Medical Center, Banner University Medical Center, and Phoenix Children's Hospital.
- Air Conditioning
Property Facts
Presented by
The Med | 2942 N 7th Ave
Hmm, there seems to have been an error sending your message. Please try again.
Thanks! Your message was sent.






