Your email has been sent.
Investment Highlights
- 13,078 sq ft ± shop & office – modern SE Edmonton facility
- (4) grade-level doors, 400 Amp 3-phase – efficient access & power
- Fits fabrication, machining, oilfield, logistics & contractors
- 25 ft clear height, crane-ready (3T–5T) – built for heavy industry
- 6,000 sq ft ± fenced yard w/ concrete loading – secure & functional
Executive Summary
MUNICIPAL ADDRESS 3804 56 Ave NW, Edmonton, AB LEGAL DESCRIPTION Plan: 1120694; Units; 7 & 8 ZONING IM (Medium Industrial) NEIGHBOURHOOD Pylypow Industrial BUILDING SIZE 13,078 sq ft ± SITE SIZE 3.37 acres ± YEAR BUILT 2011 CONSTRUCTION TYPE Steel frame and metal clad POWER 400 Amp per unit at 120/208 volts and (TBC) 3 phase, 4 wire ROOF Tar and gravel YARD IMPROVEMENTS Concrete loading and marshaling area, 100 ft deep with catch basins OUTDOOR 6,000 sq ft ± of fenced and gated STRUCTURES graveled compound PARKING 16 stalls (TBC) FIRE SUPPRESSION Sprinklers SIGNAGE Building POSSESSION 60 days negotiable
1 Unit Available
Unit 7 & 8
| Unit Size | 13,078 SF | Condo Use | Industrial |
| Price | $2,458,613 USD | Sale Type | Owner User |
| Price Per SF | $188.00 USD | No. Parking Spaces | 16 |
| Unit Size | 13,078 SF |
| Price | $2,458,613 USD |
| Price Per SF | $188.00 USD |
| Condo Use | Industrial |
| Sale Type | Owner User |
| No. Parking Spaces | 16 |
Description
Shop Details
CEILING HEIGHT (CLEAR) Truss: 25’ ±, Deck: 27’8” ±
CRANES Unit 7: Rails only (3T capacity ±), Run is 138’ ± x 41’ ±,Unit 8: Rails only, (5T capacity ±), Run is 103’ ± x 45’ ±
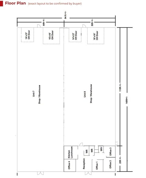
LOADING Grade-level, energized overhead doors: (2) 16 ft (h) x 16 ft (w), (2) 14 ft (h) x 12 ft (w
HEATING Radiant tube, ceiling fans and exhaust ports
LIGHTING LED
DRAINAGE (2) sumps
WASHROOM Locker room and lunch room in office area
Office Details
CEILING HEIGHT Main: 8’ 11” ±
HEATING & COOLING HVAC
LIGHTING Fluorescent
LAYOUT Offices (4), Reception (1), Kitchen / Lunchroom (1), Washrooms (2), Server/Storage (1)
Main
E facing along 56 ave
N facing along 56 ave
W facing along 56 ave
S facing aerial showing loading yard
Clear ceiling height of 25ft, LED lighting, crane rales for 3T - 5T bridge cranes
Sump, exhaust ports, and sprinklers
Craneway of 138ft x 41ft for 3-5T bridge crane
Washroom, handicap accesible
Free span 140ft x 44ft shop area
Reception or meeting area
IMG_4127
IMG_4101
IMG_4095
IMG_4115
Fenced & gated gravel compound
Overhead doors, 16ft x 16ft and 14ft x 12ft energized
Floorplan
Property Facts
| Total Building Size | 57,000 SF | Typical Floor Size | 50,000 SF |
| Property Type | Flex (Condo) | Year Built | 2010 |
| Building Class | B | Lot Size | 2.76 AC |
| Floors | 2 | Parking Ratio | 0.65/1,000 SF |
| Zoning | IM - Medium Industrial | ||
| Total Building Size | 57,000 SF |
| Property Type | Flex (Condo) |
| Building Class | B |
| Floors | 2 |
| Typical Floor Size | 50,000 SF |
| Year Built | 2010 |
| Lot Size | 2.76 AC |
| Parking Ratio | 0.65/1,000 SF |
| Zoning | IM - Medium Industrial |
Amenities
- Fenced Lot
- Signage
- Yard
Utilities
- Lighting - Fluorescent
Presented by
3804-3836 56 Av NW
Hmm, there seems to have been an error sending your message. Please try again.
Thanks! Your message was sent.




