Your email has been sent.
Park Highlights
- Indoor/Outdoor Work & Event Spaces: World-renowned Noguchi sculpture garden, indoor-outdoor conferencing, fire pit and game area.
- Move-in Ready HQ Options: Large blocks of contiguous space, full-building opportunity, and building top/freeway signage build your brand.
- OC Culture District: Chef-inspired cuisine, internationally-acclaimed shopping, world-class entertainment & arts district, and luxury living.
- Engaging Amenities: Kinetic Fitness center, Mastro's Steakhouse, on-site cafe, and a lounge & game room.
- Flexible Lease Options: Get the outsized advantage of Irvine Company, on terms that work for your business.
- Industry-Leading Owner: Lease with confidence from a financially stable, private owner who stands by customers today, tomorrow and beyond.
Park Facts
| Total Space Available | 122,541 SF | Park Type | Office Park |
| Max. Contiguous | 26,328 SF | Features | 24 Hour Access |
| Total Space Available | 122,541 SF |
| Max. Contiguous | 26,328 SF |
| Park Type | Office Park |
| Features | 24 Hour Access |
All Available Spaces(20)
Display Rental Rate as
- Space
- Size
- Term
- Rental Rate
- Space Use
- Build-Out
- Available
Suite Description : $2/SF Broker Bonus for 5+ year lease deals & $1/SF Broker Bonus for 3+ year lease deals for NEW customers. Exclusions apply. Expires 6/30/2025
- Rate includes utilities, building services and property expenses
- Mostly Open Floor Plan Layout
- Fully Built-Out as Standard Office
| Space | Size | Term | Rental Rate | Space Use | Build-Out | Available |
| 1st Floor, Ste 100 | 4,151 SF | Negotiable | $38.40 /SF/YR $3.20 /SF/MO $159,398 /YR $13,283 /MO | Office | Full Build-Out | Now |
3210 Park Center Dr - 1st Floor - Ste 100
- Space
- Size
- Term
- Rental Rate
- Space Use
- Build-Out
- Available
New tenants can receive a broker bonus of $2 per square foot for lease deals of five years or more and $1 per square foot for lease deals of three years or more. Exclusions apply. This offer expires on June 30, 2025.
- Rate includes utilities, building services and property expenses
- Mostly Open Floor Plan Layout
- Fully Carpeted
- Partially Built-Out as Standard Office
- 2 Private Offices
Suite Description : $2/SF Broker Bonus for 5+ year lease deals & $1/SF Broker Bonus for 3+ year lease deals for NEW customers. Exclusions apply. Expires 6/30/2026 / This is a Flex Workspace+tm suite : Yes
- Rate includes utilities, building services and property expenses
Suite Description : $2/SF Broker Bonus for 5+ year lease deals & $1/SF Broker Bonus for 3+ year lease deals for NEW customers. Exclusions apply. Expires 12/31/2025 / This is a Flex Workspace+tm suite : Yes
- Rate includes utilities, building services and property expenses
- Mostly Open Floor Plan Layout
- Fully Built-Out as Standard Office
$2/SF Broker Bonus for 5+ year lease deals & $1/SF Broker Bonus for 3+ year lease deals for NEW customers. Exclusions apply. Expires 6/30/2026
- Rate includes utilities, building services and property expenses
Suite Description : $2/SF Broker Bonus for 5+ year lease deals & $1/SF Broker Bonus for 3+ year lease deals for NEW customers. Exclusions apply. Expires 12/31/2025 / This is a Flex Workspace+tm suite : Yes
- Rate includes utilities, building services and property expenses
- Mostly Open Floor Plan Layout
- Fully Built-Out as Standard Office
Suite Description : $2/SF Broker Bonus for 5+ year lease deals & $1/SF Broker Bonus for 3+ year lease deals for NEW customers. Exclusions apply. Expires 12/31/2025
- Rate includes utilities, building services and property expenses
- Mostly Open Floor Plan Layout
- Fully Built-Out as Standard Office
| Space | Size | Term | Rental Rate | Space Use | Build-Out | Available |
| 1st Floor, Ste 125 | 4,272 SF | Negotiable | $39.60 /SF/YR $3.30 /SF/MO $169,171 /YR $14,098 /MO | Office | Partial Build-Out | September 01, 2026 |
| 2nd Floor, Ste 210 | 1,675 SF | Negotiable | $37.80 /SF/YR $3.15 /SF/MO $63,315 /YR $5,276 /MO | Office | - | Now |
| 3rd Floor, Ste 360 | 3,937 SF | Negotiable | $37.80 /SF/YR $3.15 /SF/MO $148,819 /YR $12,402 /MO | Office | Full Build-Out | Now |
| 5th Floor, Ste 560 | 2,146 SF | Negotiable | $40.80 /SF/YR $3.40 /SF/MO $87,557 /YR $7,296 /MO | Office | - | June 01, 2026 |
| 7th Floor, Ste 720 | 5,473 SF | Negotiable | $39.60 /SF/YR $3.30 /SF/MO $216,731 /YR $18,061 /MO | Office | Full Build-Out | May 01, 2026 |
| 11th Floor, Ste 1150 | 3,895 SF | Negotiable | $40.20 /SF/YR $3.35 /SF/MO $156,579 /YR $13,048 /MO | Office | Full Build-Out | May 15, 2026 |
3200 Park Center Dr - 1st Floor - Ste 125
3200 Park Center Dr - 2nd Floor - Ste 210
3200 Park Center Dr - 3rd Floor - Ste 360
3200 Park Center Dr - 5th Floor - Ste 560
3200 Park Center Dr - 7th Floor - Ste 720
3200 Park Center Dr - 11th Floor - Ste 1150
- Space
- Size
- Term
- Rental Rate
- Space Use
- Build-Out
- Available
Suite Description : $2/SF Broker Bonus for 5+ year lease deals & $1/SF Broker Bonus for 3+ year lease deals for NEW customers. Exclusions apply. Expires 12/31/2025
- Rate includes utilities, building services and property expenses
- Can be combined with additional space(s) for up to 26,328 SF of adjacent space
Suite Description : $2/SF Broker Bonus for 5+ year lease deals & $1/SF Broker Bonus for 3+ year lease deals for NEW customers. Exclusions apply. Expires 12/31/2025
- Rate includes utilities, building services and property expenses
- Can be combined with additional space(s) for up to 26,328 SF of adjacent space
| Space | Size | Term | Rental Rate | Space Use | Build-Out | Available |
| 2nd Floor, Ste 200 | 13,164 SF | Negotiable | $38.40 /SF/YR $3.20 /SF/MO $505,498 /YR $42,125 /MO | Office | - | September 01, 2026 |
| 3rd Floor, Ste 300 | 13,164 SF | Negotiable | $38.40 /SF/YR $3.20 /SF/MO $505,498 /YR $42,125 /MO | Office | - | Now |
675 Anton Blvd - 2nd Floor - Ste 200
675 Anton Blvd - 3rd Floor - Ste 300
- Space
- Size
- Term
- Rental Rate
- Space Use
- Build-Out
- Available
$2/SF Broker Bonus for 5+ year lease deals & $1/SF Broker Bonus for 3+ year lease deals for NEW customers. Exclusions apply. Expires 12/31/2025
- Rate includes utilities, building services and property expenses
- Mostly Open Floor Plan Layout
- Fully Built-Out as Standard Office
Suite Description : $2/SF Broker Bonus for 5+ year lease deals & $1/SF Broker Bonus for 3+ year lease deals for NEW customers. Exclusions apply. Expires 6/30/2026
- Rate includes utilities, building services and property expenses
New tenants can receive a broker bonus of $2 per square foot for lease deals of five years or more and $1 per square foot for lease deals of three years or more. Exclusions apply. This offer expires on June 30, 2025. This is a Flex Workspace+tm suite.
- Fully Built-Out as Standard Office
- Mostly Open Floor Plan Layout
$2/SF Broker Bonus for 5+ year lease deals & $1/SF Broker Bonus for 3+ year lease deals for NEW customers. Exclusions apply. Expires 12/31/2025
- Rate includes utilities, building services and property expenses
- Mostly Open Floor Plan Layout
$2/SF Broker Bonus for 5+ year lease deals & $1/SF Broker Bonus for 3+ year lease deals for NEW customers. Exclusions apply. Expires 12/31/2025
- Rate includes utilities, building services and property expenses
- Mostly Open Floor Plan Layout
- Fully Built-Out as Standard Office
| Space | Size | Term | Rental Rate | Space Use | Build-Out | Available |
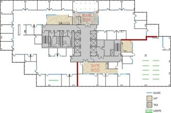
| 3rd Floor, Ste 300 | 15,277 SF | Negotiable | $39.60 /SF/YR $3.30 /SF/MO $604,969 /YR $50,414 /MO | Office | Full Build-Out | Now |
| 6th Floor, Ste 640 | 5,724 SF | Negotiable | $39.60 /SF/YR $3.30 /SF/MO $226,670 /YR $18,889 /MO | Office | - | August 01, 2026 |
| 7th Floor, Ste 720 | 2,751 SF | Negotiable | $39.60 /SF/YR $3.30 /SF/MO $108,940 /YR $9,078 /MO | Office | Full Build-Out | Now |
| 7th Floor, Ste 780 | 2,050 SF | Negotiable | $39.60 /SF/YR $3.30 /SF/MO $81,180 /YR $6,765 /MO | Office | Spec Suite | Now |
| 8th Floor, Ste 800 | 7,628 SF | Negotiable | $39.60 /SF/YR $3.30 /SF/MO $302,069 /YR $25,172 /MO | Office | Full Build-Out | Now |
3200 Bristol St - 3rd Floor - Ste 300
3200 Bristol St - 6th Floor - Ste 640
3200 Bristol St - 7th Floor - Ste 720
3200 Bristol St - 7th Floor - Ste 780
3200 Bristol St - 8th Floor - Ste 800
- Space
- Size
- Term
- Rental Rate
- Space Use
- Build-Out
- Available
New tenants can receive a broker bonus of $2 per square foot for lease deals of five years or more and $1 per square foot for lease deals of three years or more. Exclusions apply. This offer expires on June 30, 2025.
- Rate includes utilities, building services and property expenses
- Mostly Open Floor Plan Layout
- Fully Built-Out as Professional Services Office
Suite Description : $2/SF Broker Bonus for 5+ year lease deals & $1/SF Broker Bonus for 3+ year lease deals for NEW customers. Exclusions apply. Expires 6/30/2026 / This is a Flex Workspace+tm suite : Yes
- Rate includes utilities, building services and property expenses
- Rate includes utilities, building services and property expenses
- Mostly Open Floor Plan Layout
- Fully Built-Out as Standard Office
$2/SF Broker Bonus for 5+ year lease deals & $1/SF Broker Bonus for 3+ year lease deals for NEW customers. Exclusions apply. Expires 12/31/2025
- Rate includes utilities, building services and property expenses
$2/SF Broker Bonus for 5+ year lease deals & $1/SF Broker Bonus for 3+ year lease deals for NEW customers. Exclusions apply. Expires 12/31/2025
- Rate includes utilities, building services and property expenses
$2/SF Broker Bonus for 5+ year lease deals & $1/SF Broker Bonus for 3+ year lease deals for NEW customers. Exclusions apply. Expires 12/31/2025
- Rate includes utilities, building services and property expenses
| Space | Size | Term | Rental Rate | Space Use | Build-Out | Available |
| 6th Floor, Ste 600 | 13,643 SF | Negotiable | $40.80 /SF/YR $3.40 /SF/MO $556,634 /YR $46,386 /MO | Office | Full Build-Out | Now |
| 6th Floor, Ste 620 | 3,610 SF | Negotiable | $40.20 /SF/YR $3.35 /SF/MO $145,122 /YR $12,094 /MO | Office | - | July 01, 2026 |
| 7th Floor, Ste 700 | 4,361 SF | Negotiable | $40.80 /SF/YR $3.40 /SF/MO $177,929 /YR $14,827 /MO | Office | Full Build-Out | September 01, 2026 |
| 7th Floor, Ste 720 | 6,023 SF | Negotiable | $40.80 /SF/YR $3.40 /SF/MO $245,738 /YR $20,478 /MO | Office | - | September 01, 2026 |
| 7th Floor, Ste 740 | 3,258 SF | Negotiable | $40.80 /SF/YR $3.40 /SF/MO $132,926 /YR $11,077 /MO | Office | - | September 01, 2026 |
| 7th Floor, Ste 750 | 6,339 SF | Negotiable | $40.80 /SF/YR $3.40 /SF/MO $258,631 /YR $21,553 /MO | Office | - | September 01, 2026 |
611 Anton Blvd - 6th Floor - Ste 600
611 Anton Blvd - 6th Floor - Ste 620
611 Anton Blvd - 7th Floor - Ste 700
611 Anton Blvd - 7th Floor - Ste 720
611 Anton Blvd - 7th Floor - Ste 740
611 Anton Blvd - 7th Floor - Ste 750
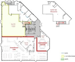
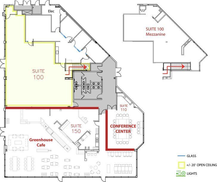
3210 Park Center Dr - 1st Floor - Ste 100
| Size | 4,151 SF |
| Term | Negotiable |
| Rental Rate | $38.40 /SF/YR |
| Space Use | Office |
| Build-Out | Full Build-Out |
| Available | Now |
Suite Description : $2/SF Broker Bonus for 5+ year lease deals & $1/SF Broker Bonus for 3+ year lease deals for NEW customers. Exclusions apply. Expires 6/30/2025
- Rate includes utilities, building services and property expenses
- Fully Built-Out as Standard Office
- Mostly Open Floor Plan Layout
3200 Park Center Dr - 1st Floor - Ste 125
| Size | 4,272 SF |
| Term | Negotiable |
| Rental Rate | $39.60 /SF/YR |
| Space Use | Office |
| Build-Out | Partial Build-Out |
| Available | September 01, 2026 |
New tenants can receive a broker bonus of $2 per square foot for lease deals of five years or more and $1 per square foot for lease deals of three years or more. Exclusions apply. This offer expires on June 30, 2025.
- Rate includes utilities, building services and property expenses
- Partially Built-Out as Standard Office
- Mostly Open Floor Plan Layout
- 2 Private Offices
- Fully Carpeted
3200 Park Center Dr - 2nd Floor - Ste 210
| Size | 1,675 SF |
| Term | Negotiable |
| Rental Rate | $37.80 /SF/YR |
| Space Use | Office |
| Build-Out | - |
| Available | Now |
Suite Description : $2/SF Broker Bonus for 5+ year lease deals & $1/SF Broker Bonus for 3+ year lease deals for NEW customers. Exclusions apply. Expires 6/30/2026 / This is a Flex Workspace+tm suite : Yes
- Rate includes utilities, building services and property expenses
3200 Park Center Dr - 3rd Floor - Ste 360
| Size | 3,937 SF |
| Term | Negotiable |
| Rental Rate | $37.80 /SF/YR |
| Space Use | Office |
| Build-Out | Full Build-Out |
| Available | Now |
Suite Description : $2/SF Broker Bonus for 5+ year lease deals & $1/SF Broker Bonus for 3+ year lease deals for NEW customers. Exclusions apply. Expires 12/31/2025 / This is a Flex Workspace+tm suite : Yes
- Rate includes utilities, building services and property expenses
- Fully Built-Out as Standard Office
- Mostly Open Floor Plan Layout
3200 Park Center Dr - 5th Floor - Ste 560
| Size | 2,146 SF |
| Term | Negotiable |
| Rental Rate | $40.80 /SF/YR |
| Space Use | Office |
| Build-Out | - |
| Available | June 01, 2026 |
$2/SF Broker Bonus for 5+ year lease deals & $1/SF Broker Bonus for 3+ year lease deals for NEW customers. Exclusions apply. Expires 6/30/2026
- Rate includes utilities, building services and property expenses
3200 Park Center Dr - 7th Floor - Ste 720
| Size | 5,473 SF |
| Term | Negotiable |
| Rental Rate | $39.60 /SF/YR |
| Space Use | Office |
| Build-Out | Full Build-Out |
| Available | May 01, 2026 |
Suite Description : $2/SF Broker Bonus for 5+ year lease deals & $1/SF Broker Bonus for 3+ year lease deals for NEW customers. Exclusions apply. Expires 12/31/2025 / This is a Flex Workspace+tm suite : Yes
- Rate includes utilities, building services and property expenses
- Fully Built-Out as Standard Office
- Mostly Open Floor Plan Layout
3200 Park Center Dr - 11th Floor - Ste 1150
| Size | 3,895 SF |
| Term | Negotiable |
| Rental Rate | $40.20 /SF/YR |
| Space Use | Office |
| Build-Out | Full Build-Out |
| Available | May 15, 2026 |
Suite Description : $2/SF Broker Bonus for 5+ year lease deals & $1/SF Broker Bonus for 3+ year lease deals for NEW customers. Exclusions apply. Expires 12/31/2025
- Rate includes utilities, building services and property expenses
- Fully Built-Out as Standard Office
- Mostly Open Floor Plan Layout
675 Anton Blvd - 2nd Floor - Ste 200
| Size | 13,164 SF |
| Term | Negotiable |
| Rental Rate | $38.40 /SF/YR |
| Space Use | Office |
| Build-Out | - |
| Available | September 01, 2026 |
Suite Description : $2/SF Broker Bonus for 5+ year lease deals & $1/SF Broker Bonus for 3+ year lease deals for NEW customers. Exclusions apply. Expires 12/31/2025
- Rate includes utilities, building services and property expenses
- Can be combined with additional space(s) for up to 26,328 SF of adjacent space
675 Anton Blvd - 3rd Floor - Ste 300
| Size | 13,164 SF |
| Term | Negotiable |
| Rental Rate | $38.40 /SF/YR |
| Space Use | Office |
| Build-Out | - |
| Available | Now |
Suite Description : $2/SF Broker Bonus for 5+ year lease deals & $1/SF Broker Bonus for 3+ year lease deals for NEW customers. Exclusions apply. Expires 12/31/2025
- Rate includes utilities, building services and property expenses
- Can be combined with additional space(s) for up to 26,328 SF of adjacent space
3200 Bristol St - 3rd Floor - Ste 300
| Size | 15,277 SF |
| Term | Negotiable |
| Rental Rate | $39.60 /SF/YR |
| Space Use | Office |
| Build-Out | Full Build-Out |
| Available | Now |
$2/SF Broker Bonus for 5+ year lease deals & $1/SF Broker Bonus for 3+ year lease deals for NEW customers. Exclusions apply. Expires 12/31/2025
- Rate includes utilities, building services and property expenses
- Fully Built-Out as Standard Office
- Mostly Open Floor Plan Layout
3200 Bristol St - 6th Floor - Ste 640
| Size | 5,724 SF |
| Term | Negotiable |
| Rental Rate | $39.60 /SF/YR |
| Space Use | Office |
| Build-Out | - |
| Available | August 01, 2026 |
Suite Description : $2/SF Broker Bonus for 5+ year lease deals & $1/SF Broker Bonus for 3+ year lease deals for NEW customers. Exclusions apply. Expires 6/30/2026
- Rate includes utilities, building services and property expenses
3200 Bristol St - 7th Floor - Ste 720
| Size | 2,751 SF |
| Term | Negotiable |
| Rental Rate | $39.60 /SF/YR |
| Space Use | Office |
| Build-Out | Full Build-Out |
| Available | Now |
New tenants can receive a broker bonus of $2 per square foot for lease deals of five years or more and $1 per square foot for lease deals of three years or more. Exclusions apply. This offer expires on June 30, 2025. This is a Flex Workspace+tm suite.
- Fully Built-Out as Standard Office
- Mostly Open Floor Plan Layout
3200 Bristol St - 7th Floor - Ste 780
| Size | 2,050 SF |
| Term | Negotiable |
| Rental Rate | $39.60 /SF/YR |
| Space Use | Office |
| Build-Out | Spec Suite |
| Available | Now |
$2/SF Broker Bonus for 5+ year lease deals & $1/SF Broker Bonus for 3+ year lease deals for NEW customers. Exclusions apply. Expires 12/31/2025
- Rate includes utilities, building services and property expenses
- Mostly Open Floor Plan Layout
3200 Bristol St - 8th Floor - Ste 800
| Size | 7,628 SF |
| Term | Negotiable |
| Rental Rate | $39.60 /SF/YR |
| Space Use | Office |
| Build-Out | Full Build-Out |
| Available | Now |
$2/SF Broker Bonus for 5+ year lease deals & $1/SF Broker Bonus for 3+ year lease deals for NEW customers. Exclusions apply. Expires 12/31/2025
- Rate includes utilities, building services and property expenses
- Fully Built-Out as Standard Office
- Mostly Open Floor Plan Layout
611 Anton Blvd - 6th Floor - Ste 600
| Size | 13,643 SF |
| Term | Negotiable |
| Rental Rate | $40.80 /SF/YR |
| Space Use | Office |
| Build-Out | Full Build-Out |
| Available | Now |
New tenants can receive a broker bonus of $2 per square foot for lease deals of five years or more and $1 per square foot for lease deals of three years or more. Exclusions apply. This offer expires on June 30, 2025.
- Rate includes utilities, building services and property expenses
- Fully Built-Out as Professional Services Office
- Mostly Open Floor Plan Layout
611 Anton Blvd - 6th Floor - Ste 620
| Size | 3,610 SF |
| Term | Negotiable |
| Rental Rate | $40.20 /SF/YR |
| Space Use | Office |
| Build-Out | - |
| Available | July 01, 2026 |
Suite Description : $2/SF Broker Bonus for 5+ year lease deals & $1/SF Broker Bonus for 3+ year lease deals for NEW customers. Exclusions apply. Expires 6/30/2026 / This is a Flex Workspace+tm suite : Yes
- Rate includes utilities, building services and property expenses
611 Anton Blvd - 7th Floor - Ste 700
| Size | 4,361 SF |
| Term | Negotiable |
| Rental Rate | $40.80 /SF/YR |
| Space Use | Office |
| Build-Out | Full Build-Out |
| Available | September 01, 2026 |
- Rate includes utilities, building services and property expenses
- Fully Built-Out as Standard Office
- Mostly Open Floor Plan Layout
611 Anton Blvd - 7th Floor - Ste 720
| Size | 6,023 SF |
| Term | Negotiable |
| Rental Rate | $40.80 /SF/YR |
| Space Use | Office |
| Build-Out | - |
| Available | September 01, 2026 |
$2/SF Broker Bonus for 5+ year lease deals & $1/SF Broker Bonus for 3+ year lease deals for NEW customers. Exclusions apply. Expires 12/31/2025
- Rate includes utilities, building services and property expenses
611 Anton Blvd - 7th Floor - Ste 740
| Size | 3,258 SF |
| Term | Negotiable |
| Rental Rate | $40.80 /SF/YR |
| Space Use | Office |
| Build-Out | - |
| Available | September 01, 2026 |
$2/SF Broker Bonus for 5+ year lease deals & $1/SF Broker Bonus for 3+ year lease deals for NEW customers. Exclusions apply. Expires 12/31/2025
- Rate includes utilities, building services and property expenses
611 Anton Blvd - 7th Floor - Ste 750
| Size | 6,339 SF |
| Term | Negotiable |
| Rental Rate | $40.80 /SF/YR |
| Space Use | Office |
| Build-Out | - |
| Available | September 01, 2026 |
$2/SF Broker Bonus for 5+ year lease deals & $1/SF Broker Bonus for 3+ year lease deals for NEW customers. Exclusions apply. Expires 12/31/2025
- Rate includes utilities, building services and property expenses
Park Overview
Pacific Arts Plaza is where OC culture meets workplace experience. The centrally-located campus with four distinctive high-rise and mid-rise buildings features the world-renowned, 1.6 acre Noguchi sculpture garden “California Scenario” as its centerpiece. Flexible lease options put more of what matters within reach for your business, including large blocks of contiguous workspace, a full building opportunity, and a variety of branded signage options. Choose the terms that work for your business today with options for tomorrow. Designed for indoor/outdoor appeal, the engaging on-site amenities include a work-ready outdoor relaxation space, lounge & game room, and a new Venue Meetings & Events, Kinetic Fitness center, Moongoat Greenhouse and the onsite Mastro's, an upscale steakhouse. On-site conveniences include an ATM, car wash and detailing, Customer Resource Center, dry cleaning, EV charging, package services and secure storage solutions. Enjoy walkable access to entertainment, culture and cuisine, including the acclaimed Segerstrom Center for the Arts, South Coast Plaza and the OC Museum of Art, plus luxury living. Pacific Arts Plaza offers direct access to interstates 405 and 5 and highway 55 and is one mile from the John Wayne Airport.
- 24 Hour Access
Sustainability
Sustainability
LEED Certification Developed by the U.S. Green Building Council (USGBC), the Leadership in Energy and Environmental Design (LEED) is a green building certification program focused on the design, construction, operation, and maintenance of green buildings, homes, and neighborhoods, which aims to help building owners and operators be environmentally responsible and use resources efficiently. LEED certification is a globally recognized symbol of sustainability achievement and leadership. To achieve LEED certification, a project earns points by adhering to prerequisites and credits that address carbon, energy, water, waste, transportation, materials, health and indoor environmental quality. Projects go through a verification and review process and are awarded points that correspond to a level of LEED certification: Platinum (80+ points) Gold (60-79 points) Silver (50-59 points) Certified (40-49 points)
Presented by
Pacific Arts Plaza | Costa Mesa, CA 92626
Hmm, there seems to have been an error sending your message. Please try again.
Thanks! Your message was sent.






































