Your email has been sent.
Sublease Highlights
- Easy freeway access to both freeways with multiple freeway entrances/exits within close proximity at SW 72nd Ave, Kruse Way, and Carman Dr
- Call for quote
- A multitude of amenities are located nearby including restaurants and retail providing convenient support services for your business
Features
All Available Space(1)
Display Rental Rate as
- Space
- Size
- Term
- Rental Rate
- Space Use
- Build-Out
- Available
- Sublease space available from current tenant
- 1 Drive Bay
- 20' Clear Height
- End Cap Unit
- Includes 1,813 SF of dedicated office space
- 2 Loading Docks
- Fully Sprinklered
| Space | Size | Term | Rental Rate | Space Use | Build-Out | Available |
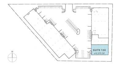
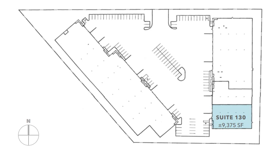
| 1st Floor - 130 | 9,375 SF | Aug 2028 | Upon Request Upon Request Upon Request Upon Request | Industrial | - | Now |
1st Floor - 130
| Size |
| 9,375 SF |
| Term |
| Aug 2028 |
| Rental Rate |
| Upon Request Upon Request Upon Request Upon Request |
| Space Use |
| Industrial |
| Build-Out |
| - |
| Available |
| Now |
1st Floor - 130
| Size | 9,375 SF |
| Term | Aug 2028 |
| Rental Rate | Upon Request |
| Space Use | Industrial |
| Build-Out | - |
| Available | Now |
- Sublease space available from current tenant
- Includes 1,813 SF of dedicated office space
- 1 Drive Bay
- 2 Loading Docks
- 20' Clear Height
- Fully Sprinklered
- End Cap Unit
Property Overview
Southwest Commerce Center is a two-building, 93,750 SF, multi-tenant industrial park located in the south Tigard submarket near the confluence of the I-5 freeway and Hwy 217. The premier location offers the project easy freeway access to both freeways with multiple freeway entrances/exits within close proximity at SW 72nd Ave, Kruse Way, and Carman Dr. A multitude of amenities are located nearby including restaurants and retail providing convenient support services for your business. Excellent Tigard location with nearby access to I-5 at Carmen Dr or SW 72nd Ave as well as Hwy 217 at SW 72nd Ave.
Warehouse Facility Facts
Presented by
Bldg A | 7500 SW Tech Center Dr
Hmm, there seems to have been an error sending your message. Please try again.
Thanks! Your message was sent.







