Your email has been sent.
805 1st St SW
Calgary, AB T2P 7N2
Alberta Block · Office Property For Lease
·
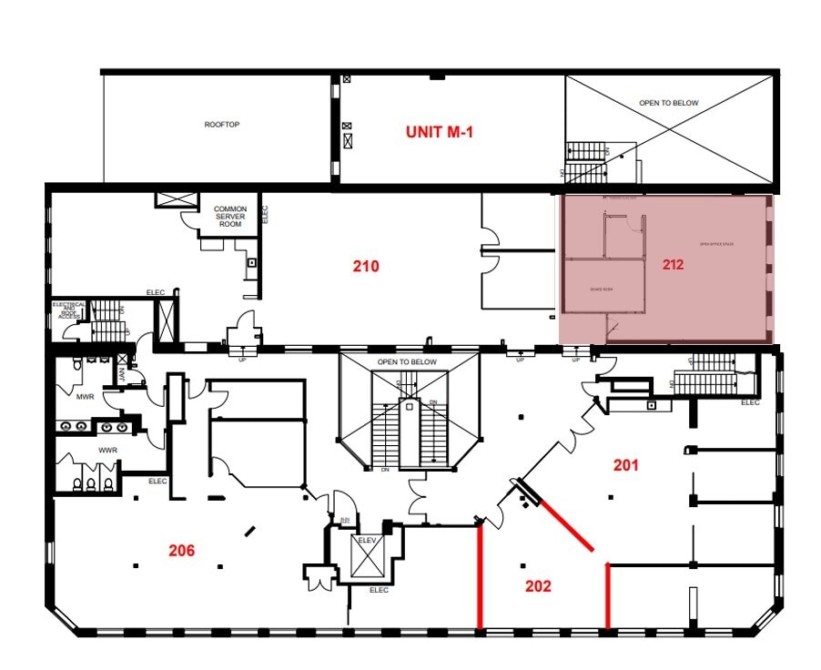
3,847 SF


Highlights
- Historic Charm: Iconic Edwardian-style building with original architectural details and modern upgrades.
- Renovated for Today: Blends classic character with contemporary amenities for retail and office use.
- Prime Downtown Location: Situated on Stephen Avenue Mall, steps from LRT and +15 connections.
Property Facts
| Total Space Available | 3,847 SF | Gross Leasable Area | 31,634 SF |
| Property Type | Retail | Year Built/Renovated | 1900/2009 |
| Property Subtype | Storefront Retail/Office |
| Total Space Available | 3,847 SF |
| Property Type | Retail |
| Property Subtype | Storefront Retail/Office |
| Gross Leasable Area | 31,634 SF |
| Year Built/Renovated | 1900/2009 |
About the Property
805 1st St SW in Calgary, AB—also known as the historic Alberta Block—is a beautifully preserved early-1900s Edwardian-style commercial building located on the iconic Stephen Avenue pedestrian mall at the corner of 1st Street and 8th Avenue SW. It spans approximately 31,600 sqft of retail and office space, featuring ornate metal cornices, original friezes, and striking floor-to-ceiling windows that enhance street presence and natural light. The property was thoughtfully renovated in 2008–2009, blending its classic architectural charm with modern amenities. Just steps from an LRT station and offering accessible +15 downtown connections, it is surrounded by a dynamic mix of shops, eateries, and professional services, making it an ideal, high-profile environment for tenants seeking both character and exposure in Calgary’s vibrant core.
