Your email has been sent.
69006 Lyon 2,185 SF Flex Condo Unit Offered at $767,152



Some information has been automatically translated.
Description
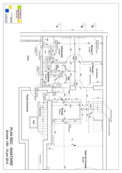
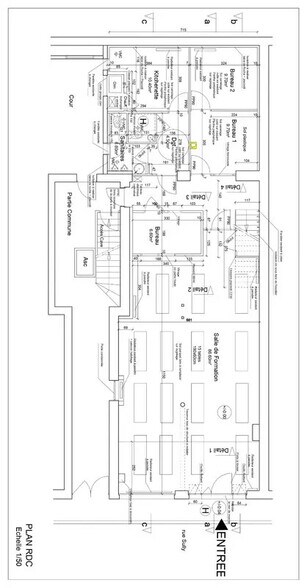
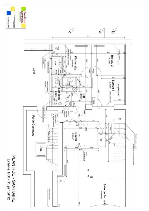
Sale of Building in Lyon 6th - Physical Therapy Training Center - 6 Main Rooms - Built in 1900 191 m² - €650,000 (Agency Fees Included) Commercial Space / Office / Real Estate 24 Rue Sully, 69006 Lyon Year of Construction: 1900 Total Carrez Law Surface: 191.04 m² Total Floor Area: 203.98 m² Premises Surface: 200 m² Ground Floor: Training room, office, box, kitchenette, restrooms. Mezzanine: Training room, office. Capacity: 50 people + 2 staff members, including 30 people on the ground floor and 20 upstairs. Current Activity: Physical Therapy Training Center Close to Metro Line A (Foch), bus stops, shops, and schools. Price: €650,000 (Agency Fees Included) Annual Property Tax: €2,050 Annual Rental Charges: €1,200 2023 Revenue: €33,600 Annual Rent: €32,400 Condominium Fees: €2,135 per year Multi-risk Insurance: €309.19 Complete Description: 6 Main Rooms, Total of 14 Rooms Features: - Reversible air conditioning, thermostat, electric shutters - Bicycle storage in the courtyard Carrez Surface Details: - Bathroom: 2.75 m² - Restroom 1: 1.12 m² - Restroom 2: 1.91 m² - Hallway: 12.21 m² (including door frame and steps) - Office 1: 8.2 m² - Room 1: 75.5 m² (height under 1.80 m) - Hallway: 4.07 m² - Kitchen: 11.9 m² - Office 2: 11.63 m² - Office 3: 7.5 m² - Landing: 2.31 m² - Room 2: 36.6 m² (height under 1.80 m) - Room 3: 15.35 m² - Attic/Loft: 8.15 m² (less than 8 m² with height over 1.80 m) Basement - Cellar: 40.9 m² Number of condominium lots: 1 Average annual share of charges (estimated budget): €2,135, or €177 per month. Agency fees are the responsibility of the seller. Information on risks associated with this property is available on the Géorisques website: www.georisques.gouv.fr Contact: Esther BOMPARD, Independent Entrepreneur, Commercial Agent with OptimHome (RSAC No. 813 332 483, Lyon Registry) Phone: +33 7 45 05 51 25 (Ref. 587953)
Property Facts
| Price | $767,152 | Property Type | Flex (Condo) |
| Unit Size | 2,185 SF | Sale Type | Owner User |
| No. Units | 1 |
| Price | $767,152 |
| Unit Size | 2,185 SF |
| No. Units | 1 |
| Property Type | Flex (Condo) |
| Sale Type | Owner User |
1 Unit Available
| Unit Size | 2,185 SF | Condo Use | Flex |
| Price | $767,152 | Sale Type | Owner User |
| Price Per SF | $351.10 | Property Tax | $1.10 /SF/YR |
| Unit Size | 2,185 SF |
| Price | $767,152 |
| Price Per SF | $351.10 |
| Condo Use | Flex |
| Sale Type | Owner User |
| Property Tax | $1.10 /SF/YR |
Presented by
Optimhome
"69006 Lyon"
Hmm, there seems to have been an error sending your message. Please try again.
Thanks! Your message was sent.
