Log In/Sign Up
Your email has been sent.
91400 Saclay 2,519 SF Office Building $493,711 ($196.01/SF)



Some information has been automatically translated.
SALE NOTES
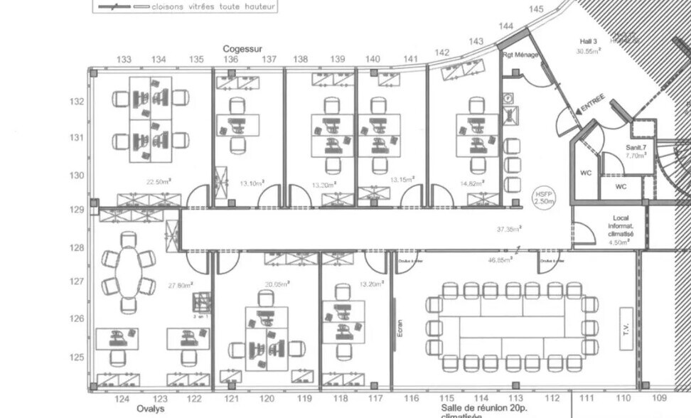
EXCLUSIVE AGPI.immo – OFFICES FOR SALE – SACLAY (91400) Your local agency AGPI.immo offers exclusively a set of bright and flexible offices with a usable area of approximately 234 m², ideally located on René Razel Street, in the heart of the Saclay Plateau. The premises consist of several closed offices, an open space, a large meeting room, and social areas. They boast numerous features: air conditioning, fiber optics, relaxation and waiting areas, modern furniture, cleaning services, enhanced security (alarm and coded gate), as well as 8 private parking spaces. Accessibility is optimal thanks to the road networks (N118, A10, A86). The upcoming arrival of line 18 of the Grand Paris Express, connecting Saclay to Orly, Massy, Versailles, and Saint-Quentin-en-Yvelines, is a major asset for value enhancement. In terms of investment, the current charges amount to €1,291/quarter (or €5,164/year). A rare opportunity in a booming sector within the Paris-Saclay cluster. Sale price: €420,000 including agency fees. Available immediately – visits by appointment with your AGPI agency, real estate expert in Saclay and its surroundings.
Fees included of 3.2% at the buyer's expense. Price excluding fees €406,977. In a condominium of 59 lots. No ongoing procedures. Energy performance certificate blank. Information on the risks to which this property is exposed is available on the Géorisques website: georisques.gouv.fr.
Fees included of 3.2% at the buyer's expense. Price excluding fees €406,977. In a condominium of 59 lots. No ongoing procedures. Energy performance certificate blank. Information on the risks to which this property is exposed is available on the Géorisques website: georisques.gouv.fr.
PROPERTY FACTS
Sale Type
Owner User
Property Type
Office
Building Size
2,519 SF
Price
$493,711
Price Per SF
$196.01
1 1
1 of 9
VIDEOS
MATTERPORT 3D EXTERIOR
MATTERPORT 3D TOUR
PHOTOS
STREET VIEW
STREET
MAP
1 of 1
Presented by
"91400 Saclay"
Already a member? Log In
Hmm, there seems to have been an error sending your message. Please try again.
Thanks! Your message was sent.
