Your email has been sent.
Belmar Plaza Office Condominiums 215 S Wadsworth Blvd 1,146 - 2,962 SF of Office Space Available in Lakewood, CO 80226



Highlights
- Partially furnished suites and move in ready
- Incredible views
- Abundant surface parking
- Newly renovated units
- Secure building
- Easy access and visibility
All Available Spaces(2)
Display Rental Rate as
- Space
- Size
- Term
- Rental Rate
- Space Use
- Build-Out
- Available
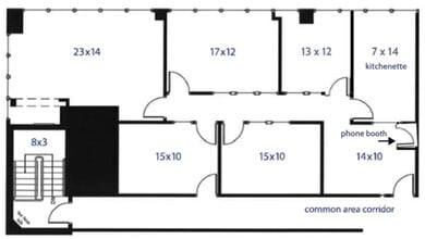
Located in the heart of Lakewood, Colorado at Belmar, these two office suites are newly renovated with new LVT flooring, LED lighting, new kitchen cabinetry/ counters, and paint. The building provides a high security environment with plenty of surface parking and 24-hour access. This is a plug and play opportunity with furniture provided. The panoramic views are spectacular!
- Rate includes utilities, building services and property expenses
- Fits 3 - 10 People
- Reception Area
- Partially Built-Out as Standard Office
- 3 Private Offices
Located in the heart of Lakewood, Colorado at Belmar, these two office suites are newly renovated with new LVT flooring, LED lighting, new kitchen cabinetry/ counters, and paint. The building provides a high security environment with plenty of surface parking and 24-hour access. This is a plug and play opportunity with furniture provided. The panoramic views are spectacular!
- Rate includes utilities, building services and property expenses
- Office intensive layout
- Plug & Play
- Partially Built-Out as Standard Office
- Fits 5 - 15 People
| Space | Size | Term | Rental Rate | Space Use | Build-Out | Available |
| 5th Floor, Ste 500 | 1,146 SF | Negotiable | $24.50 /SF/YR $2.04 /SF/MO $28,077 /YR $2,340 /MO | Office | Partial Build-Out | Now |
| 5th Floor, Ste 550 | 1,816 SF | Negotiable | $25.00 /SF/YR $2.08 /SF/MO $45,400 /YR $3,783 /MO | Office | Partial Build-Out | Now |
5th Floor, Ste 500
| Size |
| 1,146 SF |
| Term |
| Negotiable |
| Rental Rate |
| $24.50 /SF/YR $2.04 /SF/MO $28,077 /YR $2,340 /MO |
| Space Use |
| Office |
| Build-Out |
| Partial Build-Out |
| Available |
| Now |
5th Floor, Ste 550
| Size |
| 1,816 SF |
| Term |
| Negotiable |
| Rental Rate |
| $25.00 /SF/YR $2.08 /SF/MO $45,400 /YR $3,783 /MO |
| Space Use |
| Office |
| Build-Out |
| Partial Build-Out |
| Available |
| Now |
5th Floor, Ste 500
| Size | 1,146 SF |
| Term | Negotiable |
| Rental Rate | $24.50 /SF/YR |
| Space Use | Office |
| Build-Out | Partial Build-Out |
| Available | Now |
Located in the heart of Lakewood, Colorado at Belmar, these two office suites are newly renovated with new LVT flooring, LED lighting, new kitchen cabinetry/ counters, and paint. The building provides a high security environment with plenty of surface parking and 24-hour access. This is a plug and play opportunity with furniture provided. The panoramic views are spectacular!
- Rate includes utilities, building services and property expenses
- Partially Built-Out as Standard Office
- Fits 3 - 10 People
- 3 Private Offices
- Reception Area
5th Floor, Ste 550
| Size | 1,816 SF |
| Term | Negotiable |
| Rental Rate | $25.00 /SF/YR |
| Space Use | Office |
| Build-Out | Partial Build-Out |
| Available | Now |
Located in the heart of Lakewood, Colorado at Belmar, these two office suites are newly renovated with new LVT flooring, LED lighting, new kitchen cabinetry/ counters, and paint. The building provides a high security environment with plenty of surface parking and 24-hour access. This is a plug and play opportunity with furniture provided. The panoramic views are spectacular!
- Rate includes utilities, building services and property expenses
- Partially Built-Out as Standard Office
- Office intensive layout
- Fits 5 - 15 People
- Plug & Play
Features and Amenities
- 24 Hour Access
- Atrium
- Banking
- Bus Line
- Basement
- Natural Light
- Air Conditioning
- Smoke Detector
Property Facts
Select Tenants
- Floor
- Tenant Name
- Industry
- 4th
- Allstate Insurance: William Langer
- Finance and Insurance
- 1st
- Bank of Montreal
- Finance and Insurance
- Unknown
- Chariot Financial LLC
- Finance and Insurance
- 3rd
- Edward Jones
- Finance and Insurance
- 3rd
- Federal Communications Commission
- Public Administration
- 2nd
- General Management
- Real Estate
- 4th
- Green Mountain Chiropractic Inc
- Health Care and Social Assistance
- 5th
- Millennium Group Computing
- Professional, Scientific, and Technical Services
- 4th
- The Bagley Law Firm
- Professional, Scientific, and Technical Services
- 3rd
- Your Castle Real Estate
- Real Estate
Presented by
Belmar Plaza Office Condominiums | 215 S Wadsworth Blvd
Hmm, there seems to have been an error sending your message. Please try again.
Thanks! Your message was sent.





