Your email has been sent.
Highlights
- Great , Best Corner on 71st
- Opportunity to remodel
- Heavy car traffic
- Open floor plan , high ceilings
- Miami Beach
Space Availability (1)
Display Rental Rate as
- Space
- Size
- Term
- Rental Rate
- Rent Type
| Space | Size | Term | Rental Rate | Rent Type | ||
| 1st Floor, Ste 940 | 850-4,200 SF | 1-5 Years | $35.00 /SF/YR $2.92 /SF/MO $147,000 /YR $12,250 /MO | Triple Net (NNN) |
1st Floor, Ste 940
Currently in shell condition, this restaurant facility belongs to the second generation and needs renovation. It provides an empty canvas on which you may design the inside to your specifications. Having the infrastructure for your restaurant already in place will give you a good start on designing the perfect dining space. This area offers a fantastic chance for a comprehensive makeover to realize your restaurant idea. price range from $35-$60 per sqft
- Lease rate does not include utilities, property expenses or building services
- Space In Need of Renovation
- Central Air Conditioning
- Corner location
- Flexible layout
- Potential opportunity
Rent Types
The rent amount and type that the tenant (lessee) will be responsible to pay to the landlord (lessor) throughout the lease term is negotiated prior to both parties signing a lease agreement. The rent type will vary depending upon the services provided. For example, triple net rents are typically lower than full service rents due to additional expenses the tenant is required to pay in addition to the base rent. Contact the listing broker for a full understanding of any associated costs or additional expenses for each rent type.
1. Full Service: A rental rate that includes normal building standard services as provided by the landlord within a base year rental.
2. Double Net (NN): Tenant pays for only two of the building expenses; the landlord and tenant determine the specific expenses prior to signing the lease agreement.
3. Triple Net (NNN): A lease in which the tenant is responsible for all expenses associated with their proportional share of occupancy of the building.
4. Modified Gross: Modified Gross is a general type of lease rate where typically the tenant will be responsible for their proportional share of one or more of the expenses. The landlord will pay the remaining expenses. See the below list of common Modified Gross rental rate structures: 4. Plus All Utilities: A type of Modified Gross Lease where the tenant is responsible for their proportional share of utilities in addition to the rent. 4. Plus Cleaning: A type of Modified Gross Lease where the tenant is responsible for their proportional share of cleaning in addition to the rent. 4. Plus Electric: A type of Modified Gross Lease where the tenant is responsible for their proportional share of the electrical cost in addition to the rent. 4. Plus Electric & Cleaning: A type of Modified Gross Lease where the tenant is responsible for their proportional share of the electrical and cleaning cost in addition to the rent. 4. Plus Utilities and Char: A type of Modified Gross Lease where the tenant is responsible for their proportional share of the utilities and cleaning cost in addition to the rent. 4. Industrial Gross: A type of Modified Gross lease where the tenant pays one or more of the expenses in addition to the rent. The landlord and tenant determine these prior to signing the lease agreement.
5. Tenant Electric: The landlord pays for all services and the tenant is responsible for their usage of lights and electrical outlets in the space they occupy.
6. Negotiable or Upon Request: Used when the leasing contact does not provide the rent or service type.
7. TBD: To be determined; used for buildings for which no rent or service type is known, commonly utilized when the buildings are not yet built.
Property Facts
| Total Space Available | 4,200 SF | Property Subtype | Storefront |
| Min. Divisible | 850 SF | Gross Leasable Area | 5,313 SF |
| Property Type | Retail | Year Built/Renovated | 1938/1950 |
| Total Space Available | 4,200 SF |
| Min. Divisible | 850 SF |
| Property Type | Retail |
| Property Subtype | Storefront |
| Gross Leasable Area | 5,313 SF |
| Year Built/Renovated | 1938/1950 |
About the Property
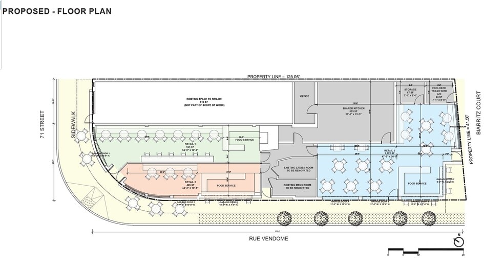
The best most visible corner on 71st !! This was a 2nd generation restaurant, now the space is gutted and ready for a new restaurant. There are design plans that have approved by the City, see attached. We have a couple of different options for you to rent from 850 sf to 4000 sf or any combination. • Space/Retail 1 identified as the “green area” in the proposed floor plan, offers approximately 1093 sqft, including common areas, with a base rent of $35-$60 per sqft/yr plus cam $10.98 pr sf/yr under a Modified -NNN Lease. Thanks to its amazing street frontage, Space 1 offers an opportunity for outdoor sitting area and high visibility on one of the main roads. • Space/Retail 2 identified as the “pink area” in the proposed floor plan, offers approximately 850 sqft, including common areas, with a base rent of $35-$60 per sqft/yr plus cam $10.16 pr sf/yr under a Modified -NNN Lease. Additionally, its central location between the other two spaces offers high visibility along with outdoor sitting area opportunity, attracting customers. • Space/Retail 3 identified as the “blue area” in the proposed floor plan, offers approximately 1,800 sqft, including common areas, with a base rent of $35-$60 per sqft/yr plus cam $12 pr sf/yr under a Modified -NNN Lease. This space being the most opened and large area creates value for any type of business, offering adaptable layout, outdoor sitting area and opportunity to satisfy any potential needs. LEASE TERM ARE NEGOTIABLE , OWNER WILL BEAT ANY DEAL AND WE PAY FULL COMMISSIONS Cars come right at it. This is one of the main roads that lead to and from Miami Beach. With a lot of national retailers nearby such Family Dollar, Sherwin William, Advance Auto and many local restaurants offers the perfect opportunity for your business. Local Owners will create and beat any deal in the Area Exceptional opportunity to lease a 2nd generation restaurant in a high- visibility location. Situated on a bustling thoroughfare in the central area of Normandy Isle and 71st, this property offers prime potential for diverse opportunities. Owners are local, Full commissions paid to brokers LEASE TERM ARE NEGOTIABLE , OWNER WILL BEAT ANY DEAL AND WE PAY FULL COMMISSIONS
- Bus Line
- Corner Lot
- Signalized Intersection
Nearby Major Retailers
Presented by
940 71st St
Hmm, there seems to have been an error sending your message. Please try again.
Thanks! Your message was sent.






