Share This Listing

Message

949 characters remaining

Hmm, there seems to have been an error sending your message. Please try again.

Your email has been sent.

1002 Walnut St
Boulder, CO 80302
Walnut Court · Office Property For Sale · 23,535 SF

1 Unit Available

Unit 300

Unit Size 4,948 SF
Condo Use Office
Sale Type Owner User
No. Parking Spaces 5
Description

Discover an exceptional 4,948 SF office penthouse suite in the heart of Downtown Boulder. Located on the third floor of 1002 Walnut Street, this premier workspace combines sophisticated contemporary finishes with an unparalleled location. Offering expansive views of Boulder’s vibrant cityscape as well, as Flatiron views from the office (!!), this private suite is designed for productivity and prestige. With exclusive access to the entire space and premium amenities, this office is a distinguished choice for businesses seeking a dynamic and inspiring environment.

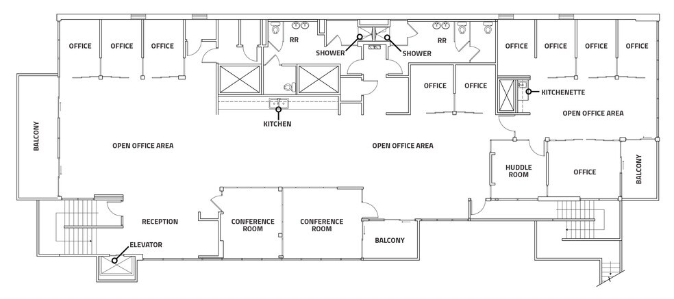
1002-Walnut-Street_FloorPlan_09-02-2025-Suite300
View Photo 1002-Walnut-Street_FloorPlan_09-02-2025-Suite300

Property Facts

The following property facts apply to the entire building. Details for individual condo units may vary and are listed in the unit information above.
Total Building Size 23,535 SF
Property Type Office (Condo)
Building Class B
Floors 3
Typical Floor Size 7,845 SF
Year Built 1979
Lot Size 0.32 AC
Zoning DT-5 - Downtown 5
  • Listing ID: 37509459

  • Date on Market: 9/2/2025

  • Last Updated:

  • Address: 1002 Walnut St, Boulder, CO 80302

Link copied
Your LoopNet account has been created!

Please Share Your Feedback

We welcome any feedback on how we can improve LoopNet to better serve your needs.
X
{{ getErrorText(feedbackForm.starRating, "rating") }}
255 character limit ({{ remainingChars() }} charactercharacters remainingover)
{{ getErrorText(feedbackForm.msg, "rating") }}
{{ getErrorText(feedbackForm.fname, "first name") }}
{{ getErrorText(feedbackForm.lname, "last name") }}
{{ getErrorText(feedbackForm.phone, "phone number") }}
{{ getErrorText(feedbackForm.phonex, "phone extension") }}
{{ getErrorText(feedbackForm.email, "email address") }}